Warm home
作品详情
  • Details of the work 标题横线
    头像或者logo
    图片 颜居设计 室内设计联盟特约推荐
    城市:北京
    公司:颜居设计
    参赛作品: 暖家
    空间类型:公寓(150㎡以下)
    个人/公司简介:
    颜居设计成立于2021年,致力于为每一位客户提供个性化、有温度的设计服务。我们深知每一个家都承载着业主朋友们的梦想和期望,因此我们始终坚持以“好设计 + 好服务”的理念,与业主朋友共同打造他们的理想家。   我们相信,设计能够改变生活,好的设计不仅能够展现出美学和品味,更能够让人们在生活中感受到舒适和幸福。因此,我们的设计师团队始终坚持创新和实用性相结合,注重细节和功能的考虑,以满足每一位客户的需求和期望。
    设计说明 | Design Instruction
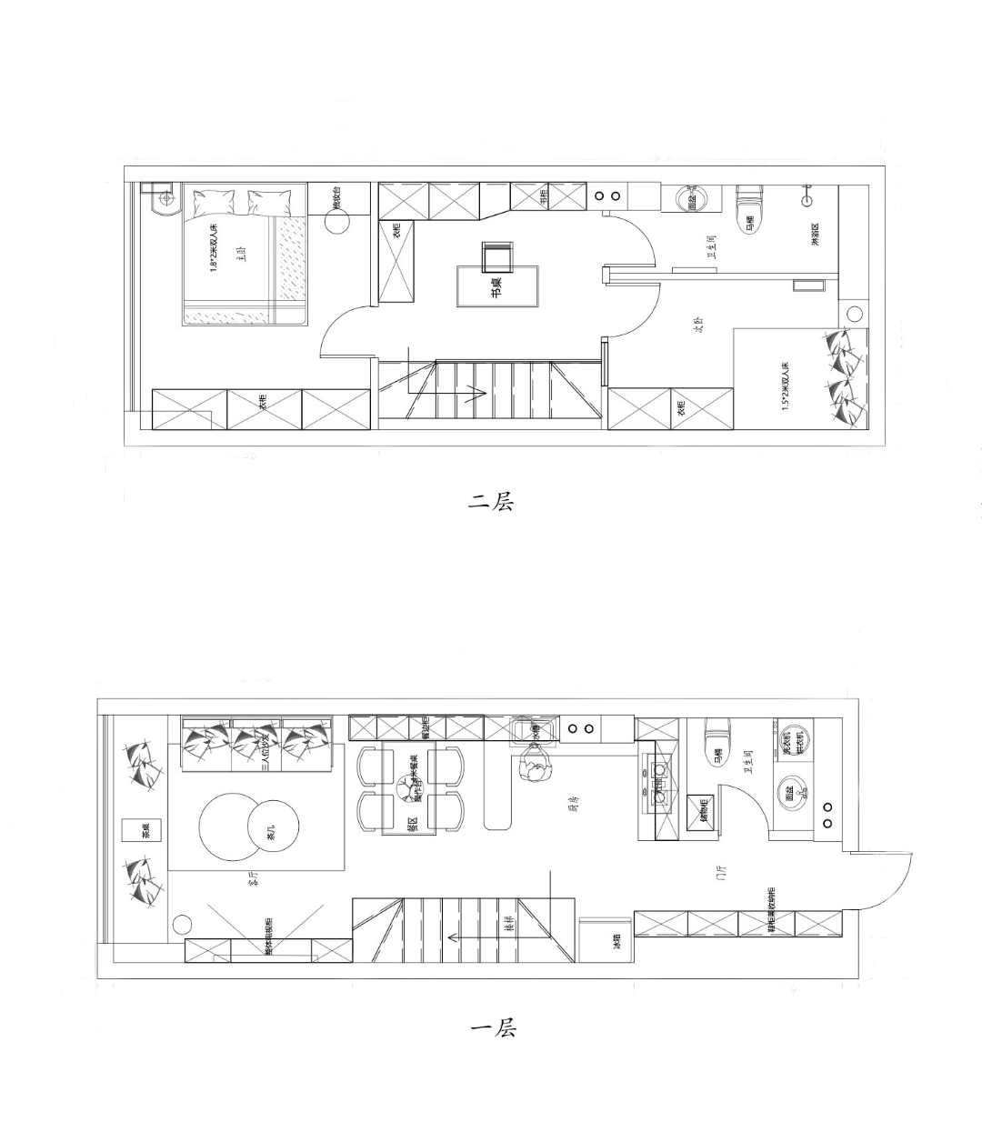
  • 注重功能与形式的平衡,追求简洁而不简单,时尚而不浮华。在满足基本居住需求的同时,更加注重舒适度、品质感和人性化设计。通过合理布局、优化采光、增加通风等方式,提高居住环境的舒适度;通过高品质的家具、材料和细节处理,提升家居品质感;通过人性化的照明、储物和无障碍设计,满足业主的实际需求和体验。 具体设计特点如下: 1. 开放式设计:复式设计使上下两层空间相互贯通,增强视觉效果和空间感。同时,开放式设计使光线充分渗透,让室内更加明亮、温馨。 2. 灵活布局:在满足基本功能需求的前提下,灵活运用空间,实现室内功能的优化组合。设置多功能区域,以满足业主不同生活场景的需求。 3. 自然元素:通过引入自然光线、植物和材质,使室内与室外相融合。例如,利用大面积的窗户引入自然光,选择天然材质的家具和装饰品,以及设置室内花园等。 4. 人性化细节:充分考虑业主的生活习惯和需求,注重人性化细节设计。例如,设置便捷的储物空间、无障碍通道、智能家居设备等,提升生活的舒适度和便利性。 5. 艺术氛围:通过挂画、装饰品、精美包包的陈设,营造出浓厚的艺术氛围。这不仅增加了空间的美感,也展现了业主的艺术品味和修养。
  • 图片
  • 图片
  • 图片
  • 图片
  • 图片
  • 图片
  • 图片
  • 图片
  • 图片
  • 图片
  • 图片
  • 图片
  • 图片
  • 图片
  • 图片
  • 图片
  • 图片
  • 上一个 下一个
    《金腾奖优秀作品年鉴》 私宅丨地产丨餐饮丨酒店丨办公丨商业丨公共丨产品丨公益丨人气 jintengAWARD(小金_金腾奖组委会) 广州市海珠区琶洲大道68号华新中心21楼
    金腾奖视频号 金腾奖小红书号 监制:闫虹
    统筹:吴佳佳
    运营:朱倩仪 王赫萱 张芷莹 胡岚恩 小金
    新媒体:王贝贝 严洁 侯乐 鹅姐
    经纪:刘译遥 石征 曹凯月
    技术:张桐 黄天佑
    最终解释权归金腾奖主办方所有