The Realm of Dwelling in the Heart
作品详情
  • Details of the work 标题横线
    头像或者logo
    图片 董翠 华耐设计基金特约推荐
    城市:青岛
    公司: 资深高级设计师
    参赛作品: 栖心之境
    空间类型:公寓(150㎡以下)
    个人/公司简介:
    •设计师: 董 翠 •资深高端别墅设计师 •从业时间:16年 •设计理念:细节决定品质,平和永恒的设计才是豪华高雅的内涵。 •主要作品 澳门花园、凯景花园、麦岛金岸、颐山源墅、龙湖滟澜海岸、世茂十二府、丽山国际、绿城玫瑰园、晓港名城、保利漫月山、霖泉潭山庄、石湾山庄、迪生山庄、青岛小镇别墅、海信依云小镇、波尔多小镇、海德堡、青建悦廷、海逸天成、网鱼网咖、LABEL CLUB裂街等。 •个人简介: CIID注册中国高级室内建筑师 CIDA注册高级建筑装饰工程设计师 IAAPC国际注册软装陈设设计师 中国建筑学会室内设计会员 青岛资深室内设计师 2014年同济大学室内装饰设计高级进修班进修 2017年清华美院教授周浩明带队欧洲游学 嘉俊建筑空间摄影作品展 一等奖 第十届国际空间设计大奖——艾特奖 2020年金腾奖设计风尚奖 2021年度金鹰设计年度精英设计师 2021年红鼎设计大赛视觉奖TOP10
    设计说明 | Design Instruction
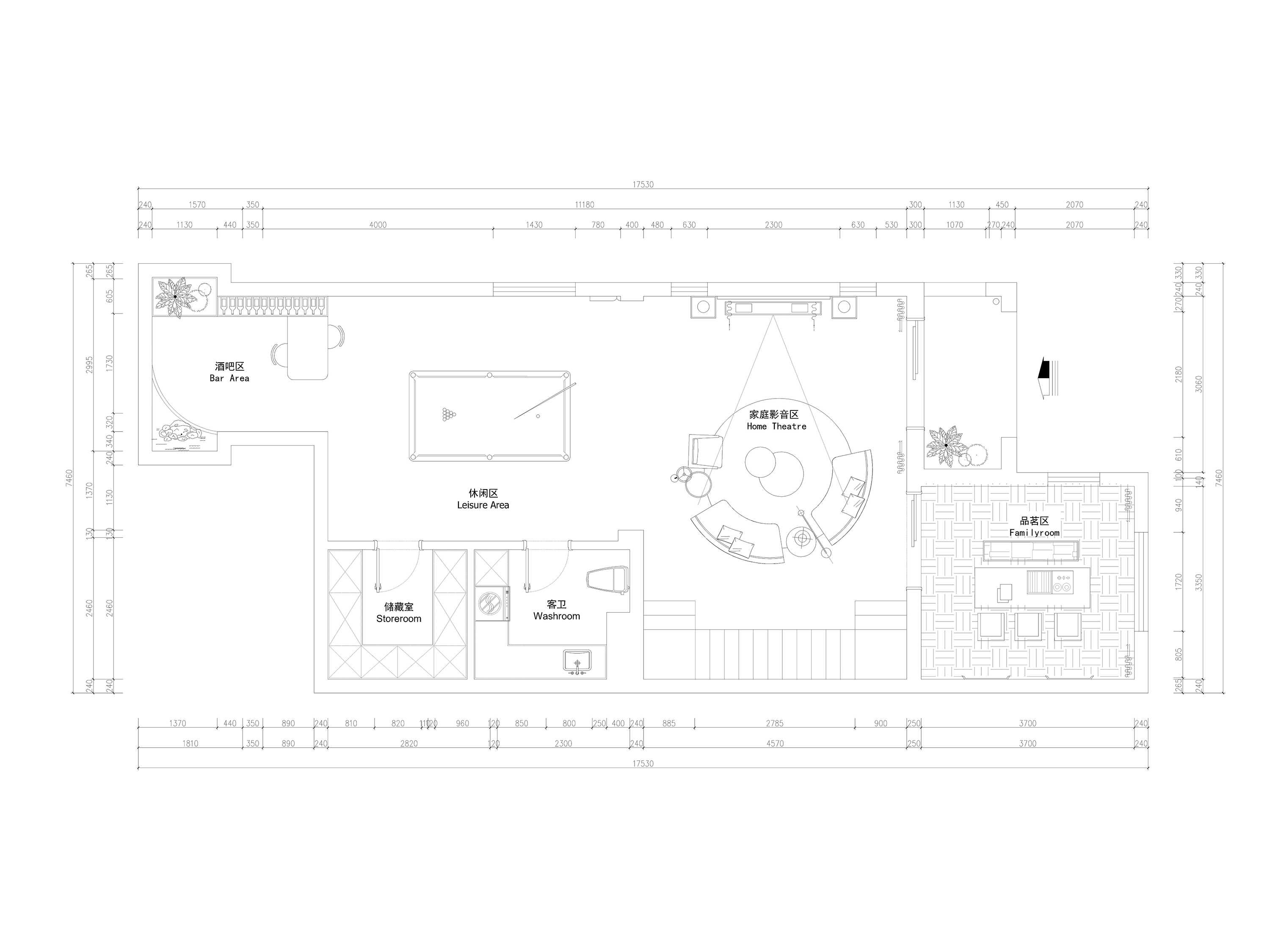
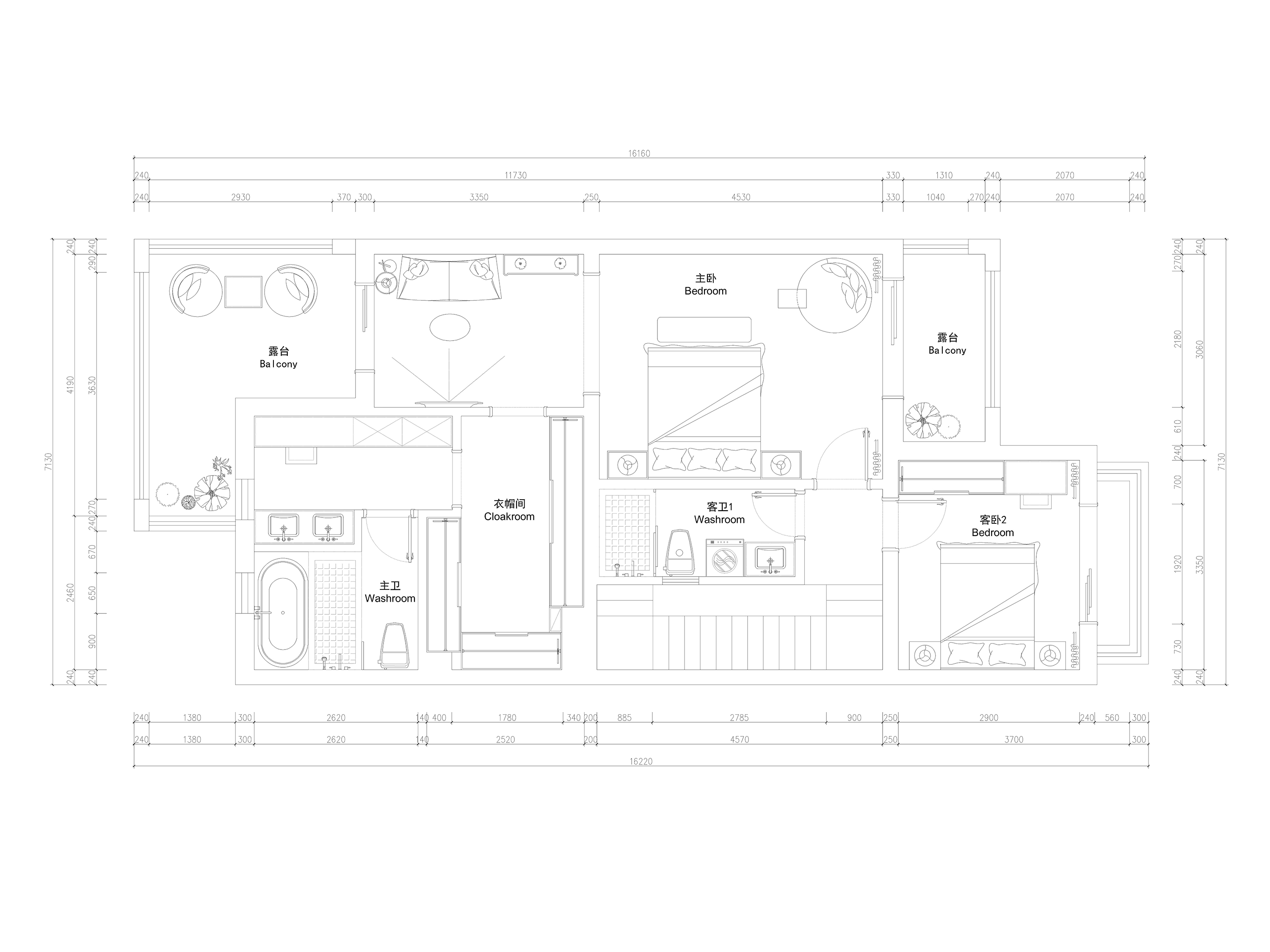
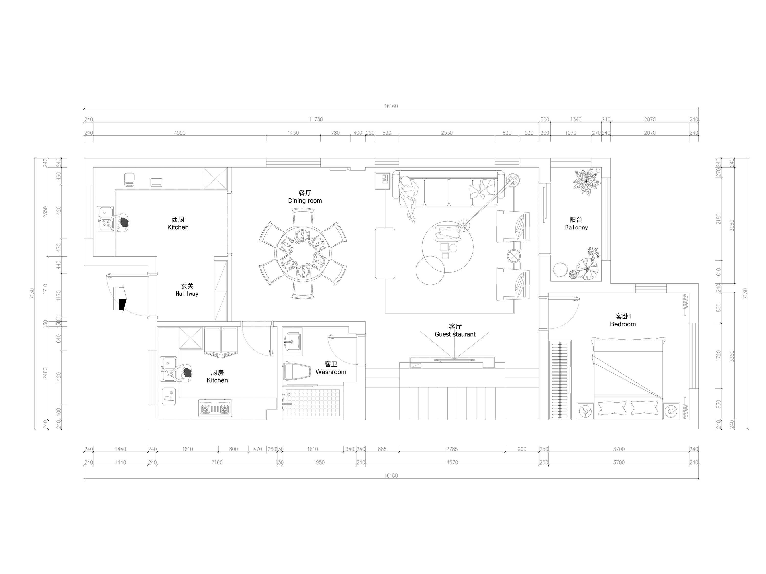
  • 设计的意义和价值藏匿在生活之中,是生活中的美,也是生活中的实用,在细节处,也在整体的布局上,生活和设计本就是两个交融的领域,因为彼此的存在,才更加的优秀。只因原木色过分美丽,并非只侧重美观感受,更关注切合实用性和本身的价值,没有过于浮夸的设计营造,更多出一份接地气的浪漫香氛。在精致主义盛行的当下,反其道而行之,在舍弃了物质欲念之后,创一处可供精神休息的场域。 设计师以现代的风格带有精雕细琢的细节,来呈现这个温馨的居所。入户区的创新端景恰到好处,通过设置现代家具和软装搭配营造出大气的状态。穿过优雅的门厅来到开放式的西厨区,它没有用封闭式隔断,而是留了一定的通道来拓宽整个空间区域,与餐厅区域自然相连。关于餐厅的设计,增添的金属元素以简洁的线条灯管搭配着大面积的石材,整体色彩传递出层层的暖意和食欲。 再来到客厅实现了通透可见,同时采用子衿灰和暗苔绿的搭配将奢华的气质显现出来。为了让空间没有那么无趣和乏味,设计师摆置了挂画,使空间的艺术氛围一下子得到提升,而且水墨的大理石丰富了色彩之间的层次感。磁吸灯极具现代主义手法,整体高度层次变得更为丰富,为空间画龙点睛。空间中复古面料的单椅与整体化的皮质沙发,形成了细节元素的繁简对比。上下错层的叠几关系构成视觉递进关系。自然的痕迹融入其中。天然材质的磨砺与岁月的留痕,赋予空间独特的层次感与探索性。经过一条长廊,动线上的节奏悄然变化,让居所的动静分离达到一种更理想的平衡状态,不同维度上营造出空间上的延伸感。 空间增设了迷你吧功能,吧台与沙发弧线完美结合,高低错落的视觉关系,丰富了空间的层次。餐厅岛台与餐桌的整体化设计,增强了就餐环境的仪式感,岛台下方纳入恒温酒柜功能。厨房的烹饪区左侧做了嵌入式蒸箱烤箱,黑白的配色和就餐区以及岛台区颜色一致,餐厨区看着更和谐、有秩序性,保证公区的视觉美感。厨房的烹饪区左侧做了嵌入式蒸箱烤箱,餐厨区看着更和谐、有秩序性,保证公区的视觉美感。复古的水晶吊灯,墙面装饰画等元素,形成了空间的艺术表现力。 沿着板式楼梯来到负一层,这里是家居活动娱乐空间,追求极简主义,为此给客户设计了影院、茶室、台球和酒窖,无主灯设计可以为空间增添了足够的明亮度,力求将每个区域的独特性和舒适性展现出来,并融合温馨雅致的氛围。 二层空间为业主的私密性住所,儒雅寂静的灯光弥漫着整个卧室和衣帽间,温润的木材质感贯穿整个空间, 一切不着痕迹顺其自然, 空间整体彰显沉稳基调。我们希望的居住空间,是一处相对“留白”的所在,将更多空间留给日后的生活,慢慢填满。一个家,从清冷,至热烈;从空旷,至满溢。其间不断丰盈的,是空间的生命力与情感。
  • 图片
  • 图片
  • 图片
  • 图片
  • 图片
  • 图片
  • 图片
  • 图片
  • 图片
  • 图片
  • 图片
  • 图片
  • 图片
  • 图片
  • 图片
  • 上一个 下一个
    《金腾奖优秀作品年鉴》 私宅丨地产丨餐饮丨酒店丨办公丨商业丨公共丨产品丨公益丨人气 jintengAWARD(小金_金腾奖组委会) 广州市海珠区琶洲大道68号华新中心21楼
    金腾奖视频号 金腾奖小红书号 监制:闫虹
    统筹:吴佳佳
    运营:朱倩仪 王赫萱 张芷莹 胡岚恩 小金
    新媒体:王贝贝 严洁 侯乐 鹅姐
    经纪:刘译遥 石征 曹凯月
    技术:张桐 黄天佑
    最终解释权归金腾奖主办方所有