天下皆知美之为美
作品详情
  • Details of the work 标题横线
    头像或者logo
    图片 王德龙 华耐设计基金特约推荐
    城市:青岛
    公司: 青岛珑玥建筑设计事务所
    参赛作品: 天下皆知美之为美
    空间类型:公寓(150㎡以下)
    个人/公司简介:
    青岛珑玥建筑设计事务所 设计总监          荣誉奖项: 中国注册室内设计师(编号 QD21400366) 2014年被评为青岛市装饰协会(优秀家居设计师) 2014年青岛第十一届室内设计大赛 银奖 优秀奖 2014年华仁.欧典商苑杯首届软装大赛 金奖 2016年'' IDEA-TOPS艾特奖'' 国际空间设计大赛 公寓设计 最佳样板房设计奖 2017年'' IDEA-TOPS艾特奖'' 国际空间设计大赛 别墅设计奖 2019年第六届中国装饰设计奖(CBDA设计奖)银奖 2019年 “中央美术学院”高级研修毕业 2019年 第六届中国装饰设计奖(CBDA设计奖)银奖 青岛珑玥建筑设计事务所有限公司是一家从事高端别墅技术匠心以及艺术美学的专业化全案设计公司 从事设计原创、设计落地、甄选国际化产品全方位为客户打造高品质的公司
    设计说明 | Design Instruction
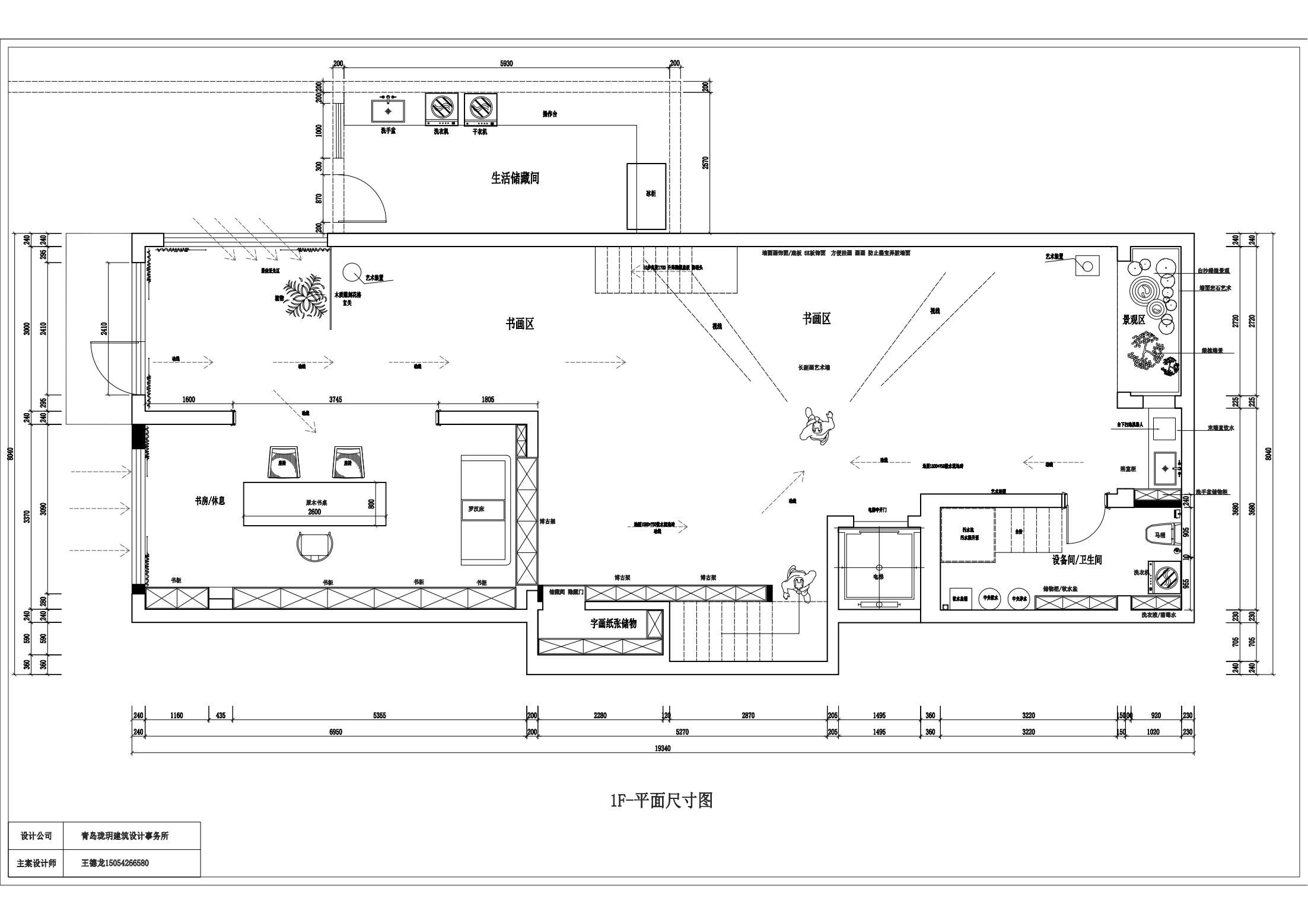
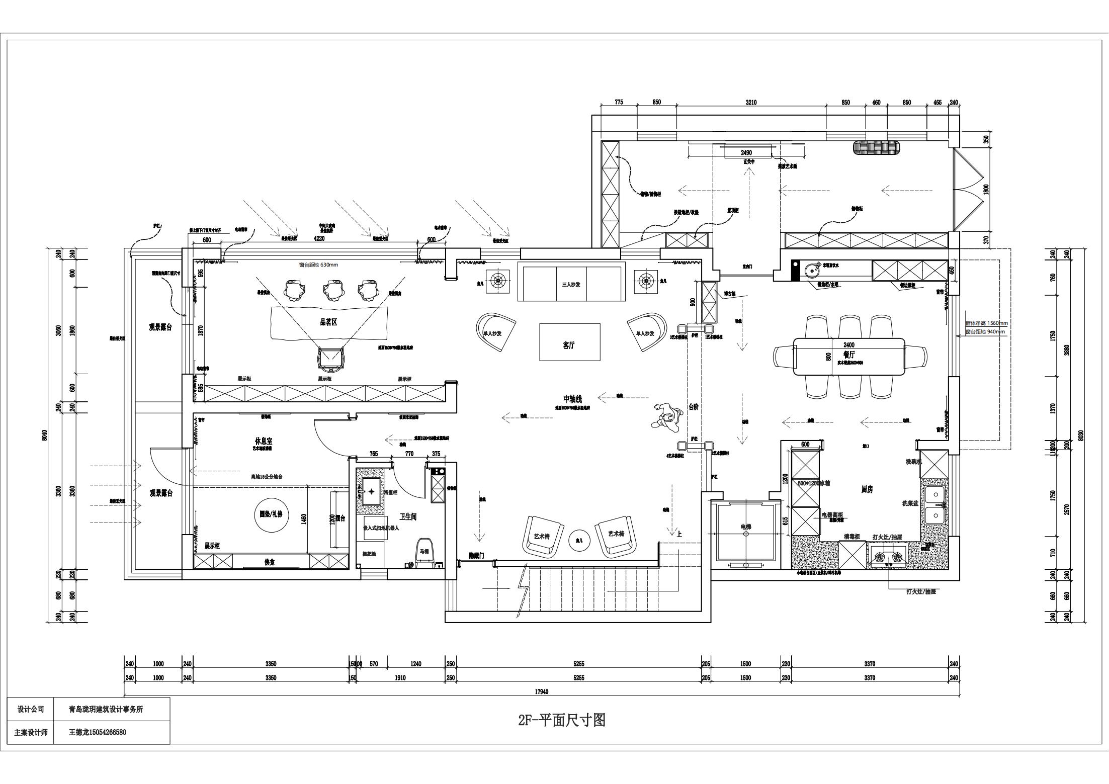
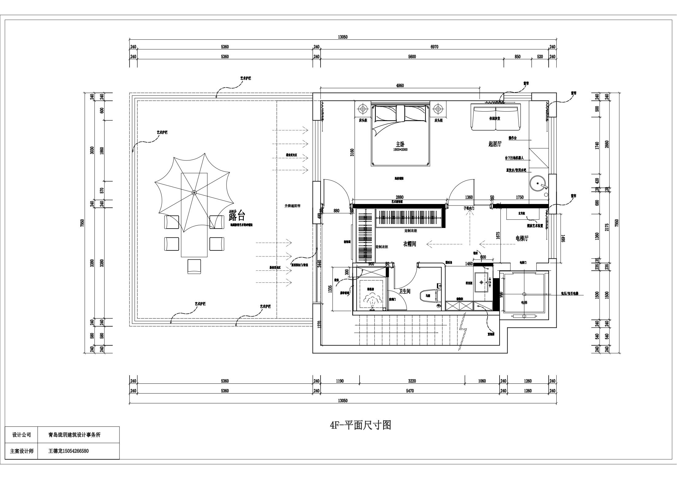
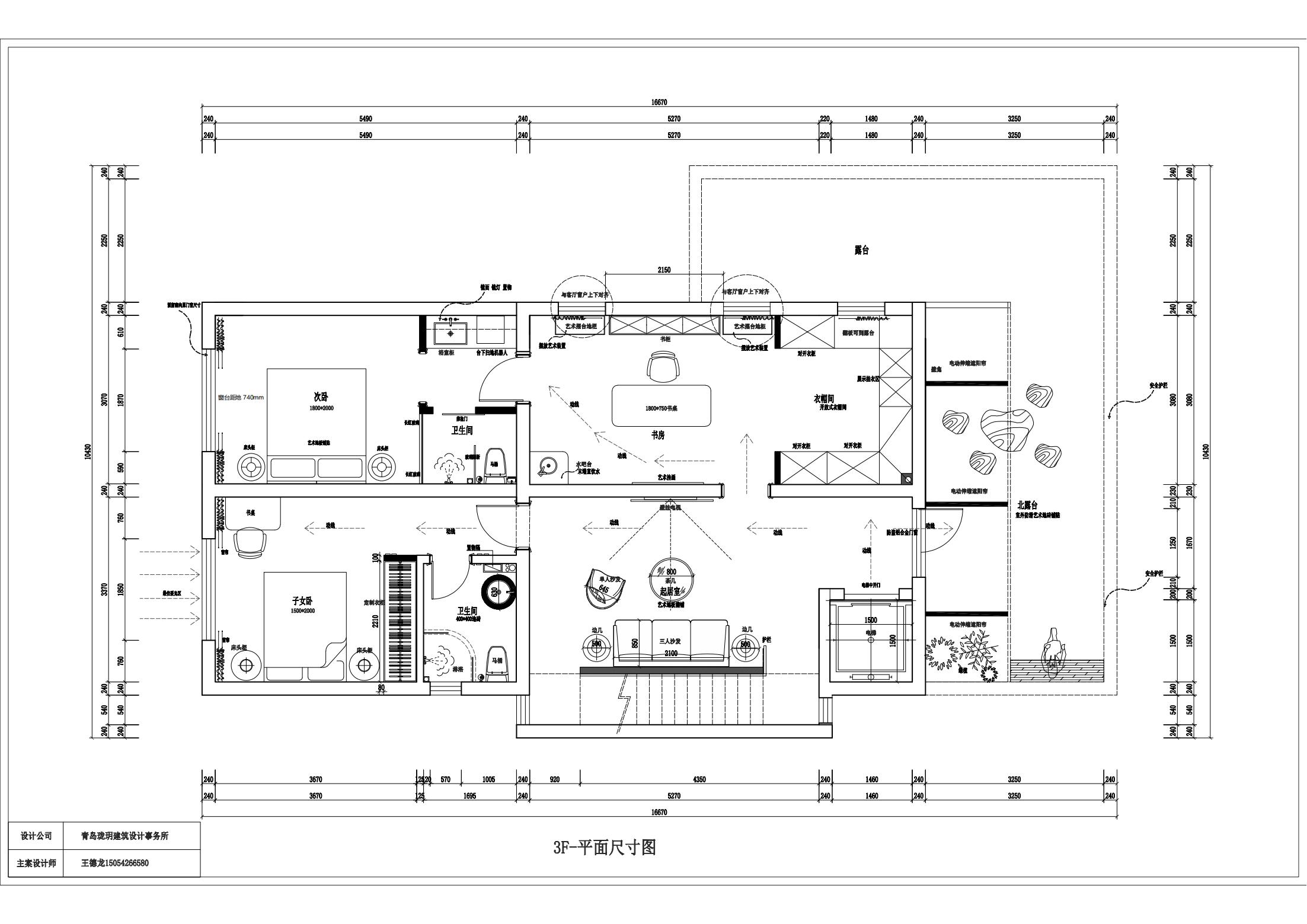
  • 本案设计小区:风水之别墅(六合庄园) 道家自然无为之设计理念 取之自然 利之于民 上善若水,水利万物而不争,故莫能与之争 上善若水 效法自然之道,以“水”比喻有品德的人,居善地,心善渊。 居住之地以自照、自知、自处,本案设计容纳了道家以及佛家观水则是谈圣洁明净,不染一物,何去何从选择自己利于万物的家。 “水善利万物而不争”,水滋养万物、养育万物,却不压迫和争夺万物。老子用水来比喻最高的智慧和道德品质,我们要理解最高的智慧和道德品质就要看看水的七大特性。 本案重点绘制了水德之居 庭院层区私人艺术展示,道家之水形,水之流线趋势,从有到无,玄妙无穷尽之势。 一楼层区展示了中国传统文化,象形文化,客厅以弧线线条灯描绘着“川’S形 水德之居处处皆是,千古才女之才气,宋朝古文化之山水秀丽,这就是最好的风水书香之家。 不可忘德传统文化和现代生活灯光及动线形式,国粹之经典,中国之骄傲,取自山川之瓷砖花色用花纹诉说了山水 水之柔情 水德之居演绎了水之大德 水之无形有形 要有海纳百川的胸怀;对人对物一视同仁宅心仁厚,处众人之所恶,故几于道,居善地。 男主人常常提示自己水的无形无状乃至无穷无尽之尽头,以“水德”居住此宅,生活柔和通顺。
  • 图片
  • 图片
  • 图片
  • 图片
  • 图片
  • 图片
  • 图片
  • 图片
  • 图片
  • 图片
  • 图片
  • 图片
  • 图片
  • 图片
  • 图片
  • 图片
  • 图片
  • 图片
  • 图片
  • 图片
  • 图片
  • 图片
  • 图片
  • 图片
  • 图片
  • 上一个 下一个
    《金腾奖优秀作品年鉴》 私宅丨地产丨餐饮丨酒店丨办公丨商业丨公共丨产品丨公益丨人气 jintengAWARD(小金_金腾奖组委会) 广州市海珠区琶洲大道68号华新中心21楼
    金腾奖视频号 金腾奖小红书号 监制:闫虹
    统筹:吴佳佳
    运营:朱倩仪 王赫萱 张芷莹 胡岚恩 小金
    新媒体:王贝贝 严洁 侯乐 鹅姐
    经纪:刘译遥 石征 曹凯月
    技术:张桐 黄天佑
    最终解释权归金腾奖主办方所有