Growing Time
作品详情
  • Details of the work 标题横线
    头像或者logo
    图片 谢培威 华耐设计基金特约推荐
    城市:广州
    公司: 独立设计师
    参赛作品: 成长的时光
    空间类型:公寓(150㎡以下)
    个人/公司简介:
    2019年 成为中国室内装饰协会注册设计师 2021年 被中国建筑装饰协会评为中国杰出中青年住宅室内设计师 2022年 评为广东省十佳住宅设计师 设计理念:设计是基于居住者本质的前提下,优化居住者的生活环境与生活品质,让居住者获得不一样的体验感
    设计说明 | Design Instruction
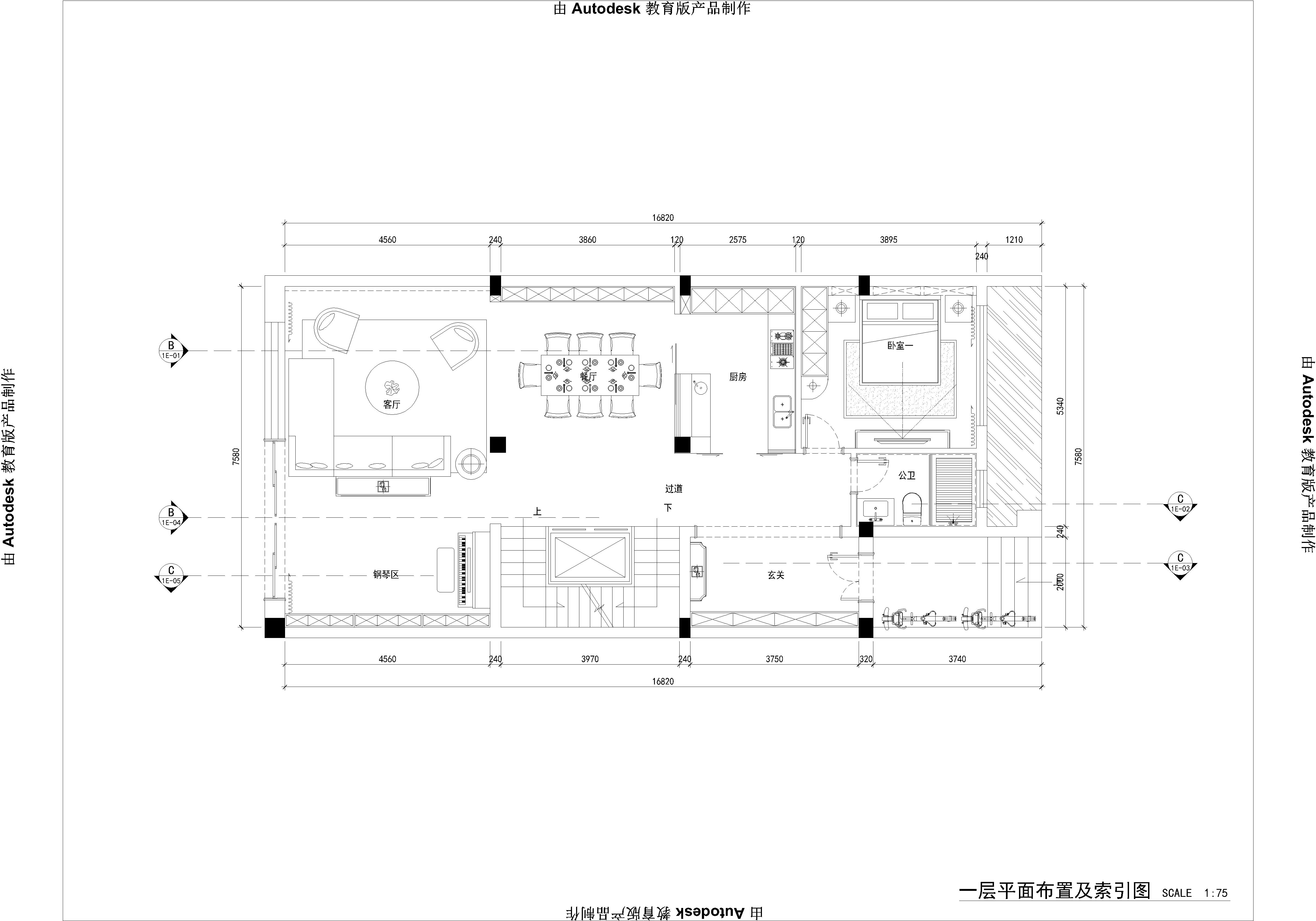
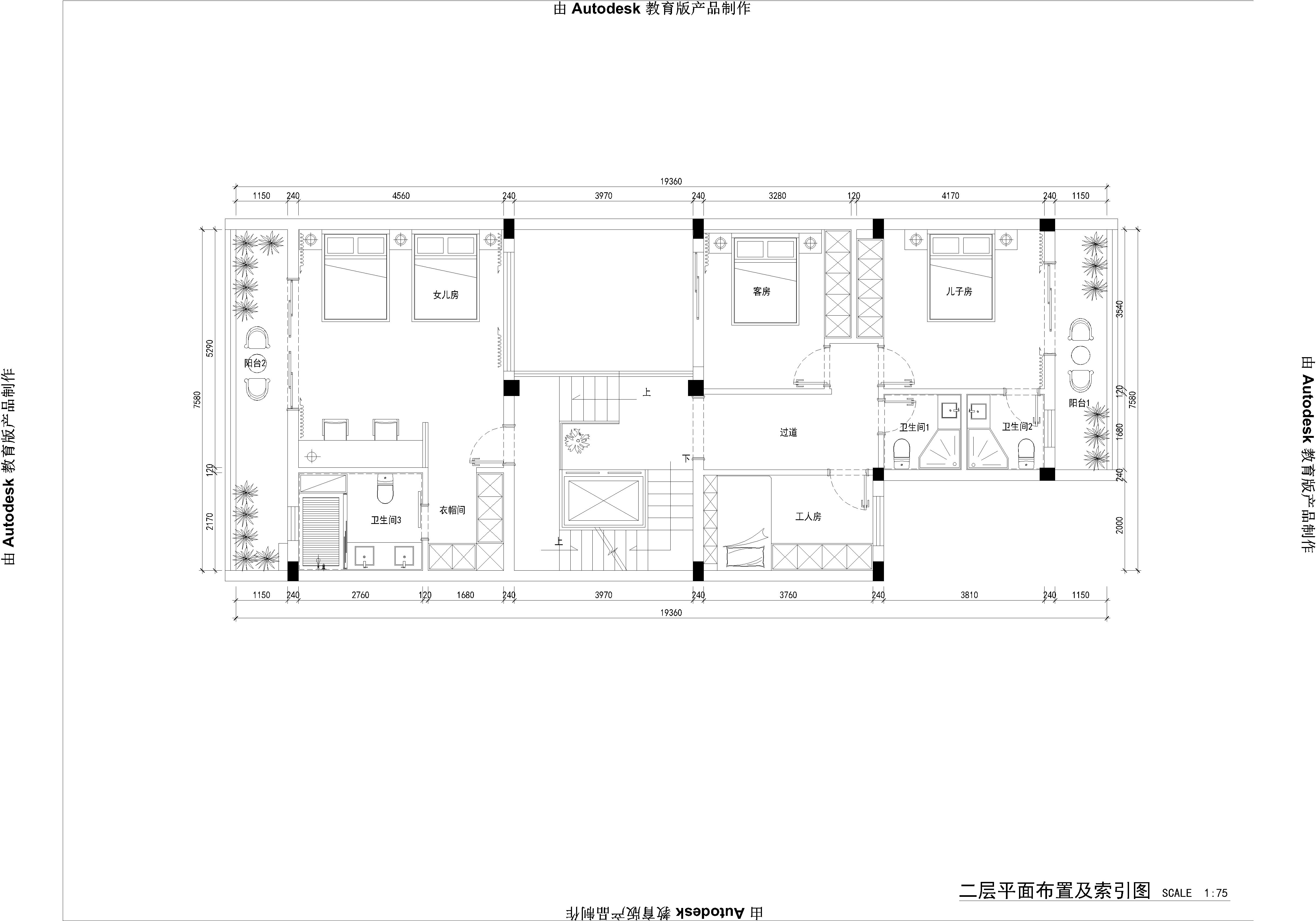
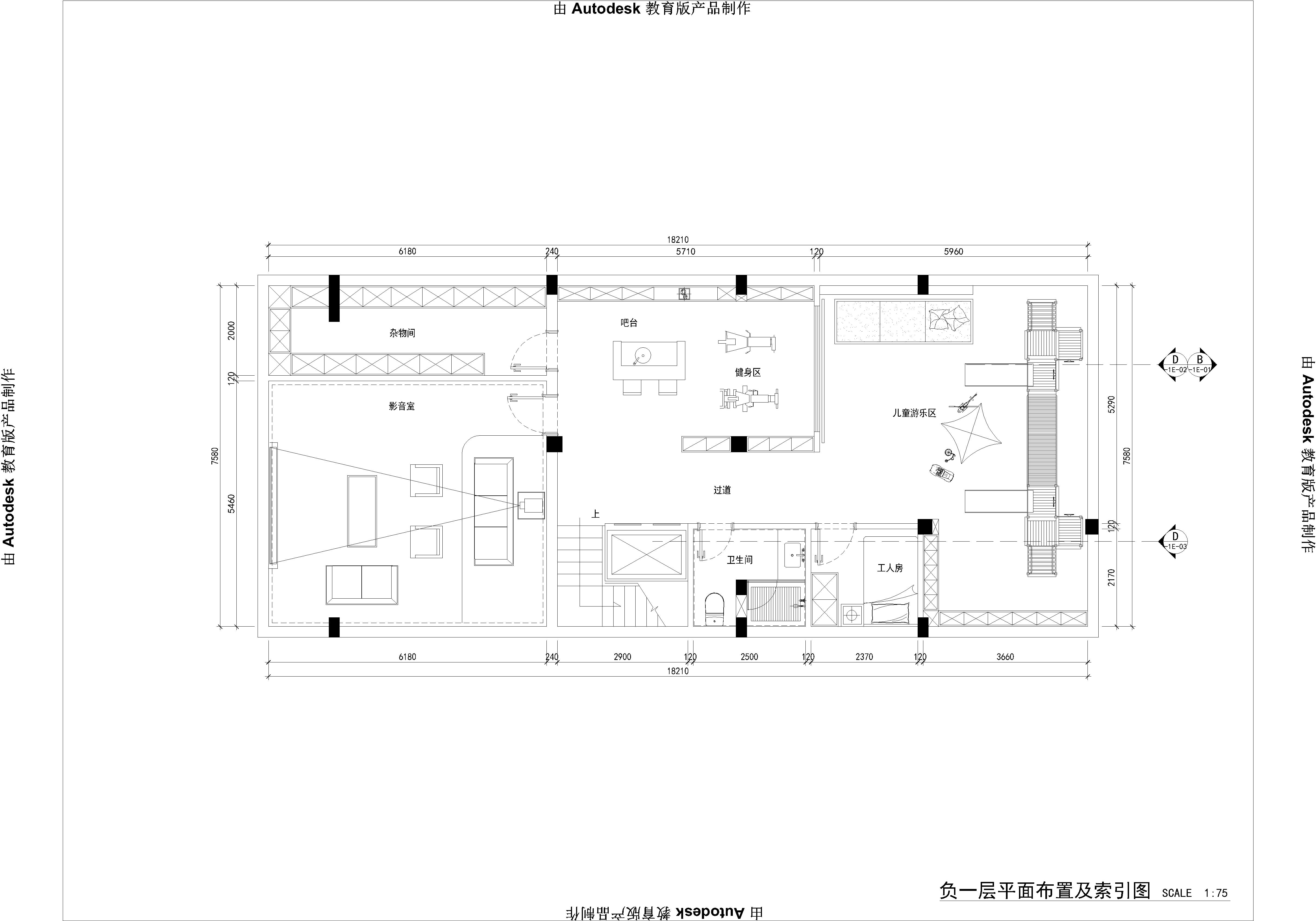
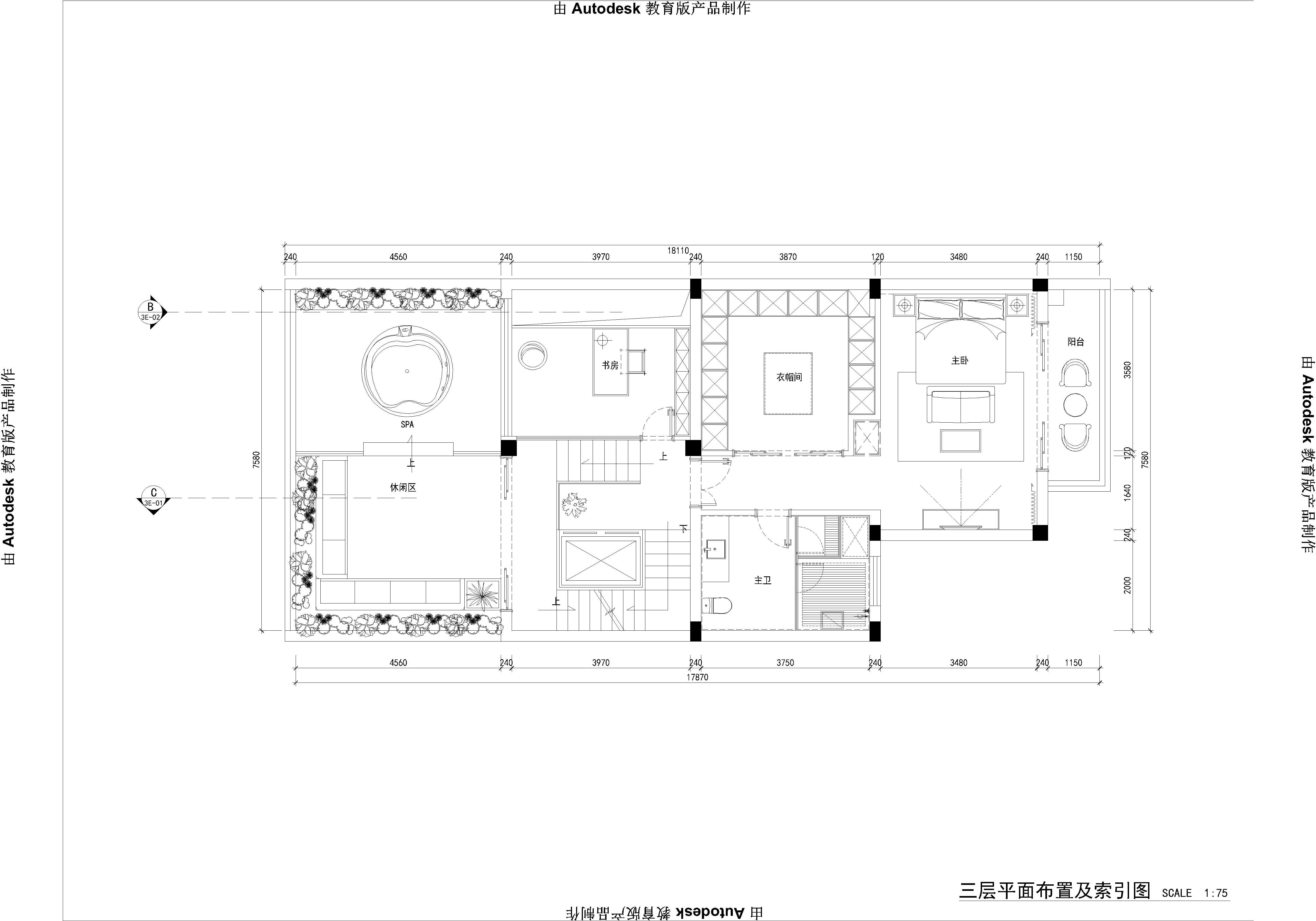
  • 设计理念:本案为广州增城一个毛坯别墅项目,先说下业主家庭情况,除业主夫妻外,还有三个小孩子(两女一儿),因为三个小孩年龄都偏小,所以这次别墅装修希望可以围绕小孩来考虑,希望有个可以专属小孩玩乐的空间。另一方面业主比较好客会经常有些聚会的情况,所以也要兼顾着聚会的功能来综合考虑全屋的设计。功能分区来说,我们把聚会娱乐的功能设计在负一层,日常就餐会客在首层,而二层为小孩子卧室,三层为主卧,这样负一聚会才不会影响到楼上的睡眠,我们始终坚信好的设计肯定是以居住者为中心去为他们量身打造专属他们的家,这样才能让整个空间活跃起来。 设计特色:我们利用了原有中空位设计出一个室内景观点亮整个设计,让园林真正引到房间来
  • 图片
  • 图片
  • 图片
  • 图片
  • 图片
  • 图片
  • 图片
  • 图片
  • 图片
  • 图片
  • 图片
  • 图片
  • 图片
  • 图片
  • 图片
  • 图片
  • 图片
  • 图片
  • 图片
  • 图片
  • 图片
  • 图片
  • 图片
  • 图片
  • 图片
  • 图片
  • 图片
  • 图片
  • 图片
  • 图片
  • 图片
  • 图片
  • 图片
  • 图片
  • 图片
  • 图片
  • 图片
  • 图片
  • 图片
  • 图片
  • 图片
  • 上一个 下一个
    《金腾奖优秀作品年鉴》 私宅丨地产丨餐饮丨酒店丨办公丨商业丨公共丨产品丨公益丨人气 jintengAWARD(小金_金腾奖组委会) 广州市海珠区琶洲大道68号华新中心21楼
    金腾奖视频号 金腾奖小红书号 监制:闫虹
    统筹:吴佳佳
    运营:朱倩仪 王赫萱 张芷莹 胡岚恩 小金
    新媒体:王贝贝 严洁 侯乐 鹅姐
    经纪:刘译遥 石征 曹凯月
    技术:张桐 黄天佑
    最终解释权归金腾奖主办方所有