Xian Su
作品详情
  • Details of the work 标题横线
    头像或者logo
    图片 刘凌 华耐设计基金特约推荐
    城市:哈尔滨
    公司: 哈尔滨大树装饰工程设计有限公司
    参赛作品: 见.素
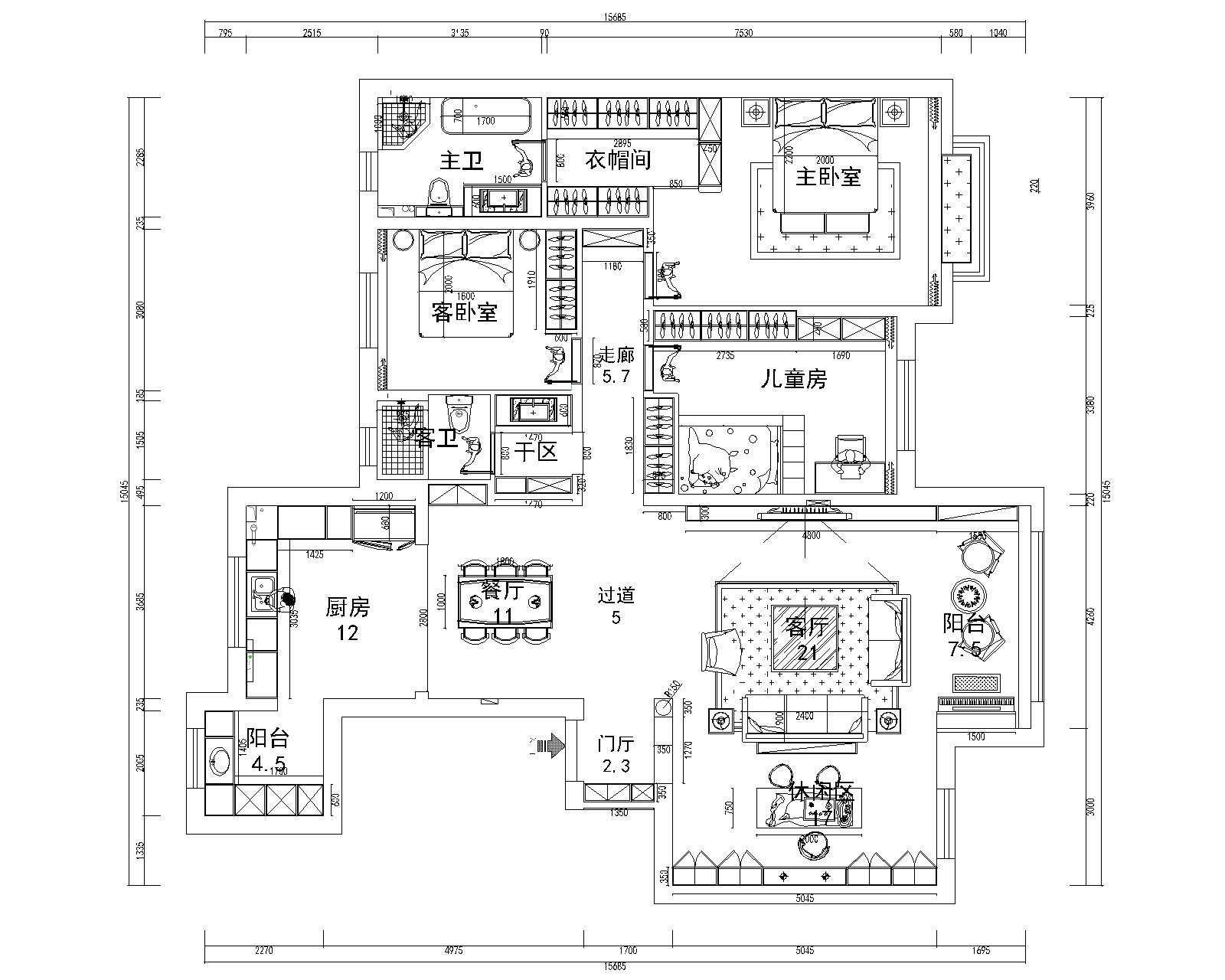
    空间类型:公寓(150㎡以下)
    个人/公司简介:
    > 设计感悟 设计是一种感受.一种态度.一种舒适开心的生活方式。以人为本.创造功能合理舒适.优美满足人们精神生活所需要的室内环境 1.2015年荣获中国建筑设计协会优秀室内设计师资质 2.2015年荣获哈尔滨市民最喜欢的 3.2016年荣获哈尔滨生活报杯设计十佳 4.2017年荣获新闻晚报杯新悦设计师称号 5.2018年荣获大树装饰设计师返单吉尼斯纪录奖 6.2019年荣获中国(黑龙江)设计杰出青年奖 7.2019年荣获大树装饰首届葵树杯设计大赛金钻奖 8.2020年荣获广州设计周奖杯承制木里木外 9.2020年荣获<英树杯>四维设计最佳人气奖 10.2021年荣获中国(哈尔滨)设计杰出青年奖 11.2022年荣获中国(哈尔滨)设计杰出青年奖
    设计说明 | Design Instruction
  • 见·素 rXian Su “见素抱朴、绝学无忧、少私寡欲”是老子《道德经》中的人生哲学感悟! “见:现,呈现,推出。素: 没有染色的生丝。这里比喻品质纯洁。朴: 没有加工的原木。这里比喻合乎然法则的社会规律。” 给作品取名“见素”也是想要表达作者对于空间设计个人的一些理解。作者希望给到空间一定色彩的同时通过材料的质感对比来表达“返朴归真,删繁就简”的意境。从空间最终的呈现可以看出,作者对于形式的克制,以及对每个装饰元素的运用都希望做到相辅相成。中性柔和的色调中跳脱出的蓝色和墨绿色让家居空间简单却不乏该有的温馨与舒适。
  • 图片
  • 图片
  • 图片
  • 图片
  • 图片
  • 图片
  • 图片
  • 图片
  • 图片
  • 图片
  • 图片
  • 图片
  • 图片
  • 图片
  • 图片
  • 图片
  • 图片
  • 上一个 下一个
    《金腾奖优秀作品年鉴》 私宅丨地产丨餐饮丨酒店丨办公丨商业丨公共丨产品丨公益丨人气 jintengAWARD(小金_金腾奖组委会) 广州市海珠区琶洲大道68号华新中心21楼
    金腾奖视频号 金腾奖小红书号 监制:闫虹
    统筹:吴佳佳
    运营:朱倩仪 王赫萱 张芷莹 胡岚恩 小金
    新媒体:王贝贝 严洁 侯乐 鹅姐
    经纪:刘译遥 石征 曹凯月
    技术:张桐 黄天佑
    最终解释权归金腾奖主办方所有