suiyueran
作品详情
  • Details of the work 标题横线
    头像或者logo
    图片 高佳伟
    城市:广州
    公司: 华浔品味装饰集团
    参赛作品: 随遇而安
    空间类型:公寓(150㎡以下)
    个人/公司简介:
    高佳伟:设计总监 中央电视台《交换空间》特邀设计师 荣获“设计源·世界观”华南年度精英人物 IFI国际室内建筑师设计师团体联盟中国代表团 台湾亚洲大学广东新设计力量代表 广东房产频道设计最前沿特邀设计师 设空间计理念: 空间哲学 源于生活—致力打造有思想的 宜居空间
    设计说明 | Design Instruction
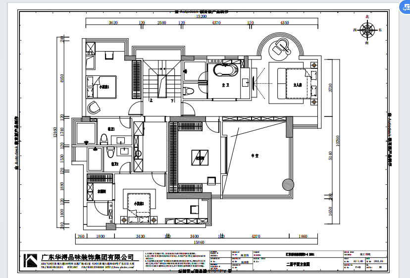
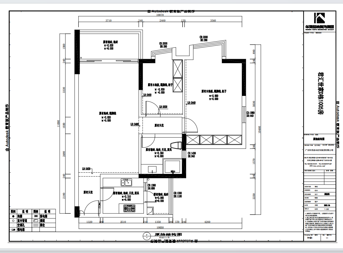
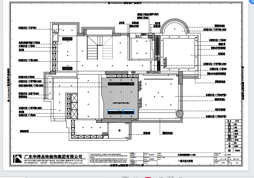
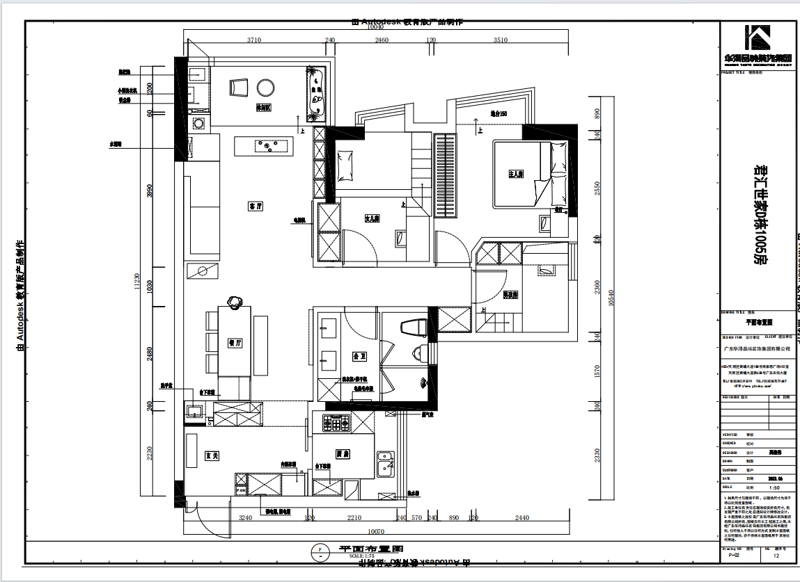
  • 案例—随意而安 前言:随意是属于对服装的内涵有深刻理解之上的一种自然流露。 因为没有无形规范的约束,一开始总是错位,而接下来随意组合。 ----------速写 设计说明:本案是在精确度控制下张弛有度的一种状态。进门方块自由的组合搭配随意生长的绿植,着实让人体会到一种被设计过的一种随意。客厅的大玻璃承载着光影的沐浴。弧形楼梯,室内水池,园林小景的出现都体现着一种生活状态,随性,自然,和谐。主卧天花的挑空,客厅中空窗户的随意伸展更为空间增添了趣味,体现着生活的态度。随意的表象下隐藏着很多新的视点,体现细微的变化所带来的改变。 基本信息:本案是位于市中心的一个300平方两层复式,四房三厅一厨四卫。
  • 图片
  • 图片
  • 图片
  • 图片
  • 图片
  • 图片
  • 图片
  • 图片
  • 图片
  • 图片
  • 图片
  • 图片
  • 图片
  • 图片
  • 图片
  • 图片
  • 图片
  • 图片
  • 图片
  • 图片
  • 图片
  • 图片
  • 图片
  • 图片
  • 图片
  • 图片
  • 图片
  • 图片
  • 图片
  • 图片
  • 图片
  • 图片
  • 图片
  • 图片
  • 上一个 下一个
    《金腾奖优秀作品年鉴》 私宅丨地产丨餐饮丨酒店丨办公丨商业丨公共丨产品丨公益丨人气 jintengAWARD(小金_金腾奖组委会) 广州市海珠区琶洲大道68号华新中心21楼
    金腾奖视频号 金腾奖小红书号 监制:闫虹
    统筹:吴佳佳
    运营:朱倩仪 王赫萱 张芷莹 胡岚恩 小金
    新媒体:王贝贝 严洁 侯乐 鹅姐
    经纪:刘译遥 石征 曹凯月
    技术:张桐 黄天佑
    最终解释权归金腾奖主办方所有