Xinrunhuayuan
作品详情
  • Details of the work 标题横线
    头像或者logo
    图片 梁璟堂
    城市:广州
    公司: 华浔品味装饰集团
    参赛作品: 鑫润花园
    空间类型:公寓(150㎡以下)
    个人/公司简介:
    梁璟堂:设计总监 所属公司:广州 从业经验:15年以上经验 擅长风格:现代简约,新中式,简欧 案例作品:16套 个人简介:富力设计中心三部总监中国注册室内设计师中国室内建筑协会分会会员毕业院校:广州美术学院2011年第四届广州建筑装饰设计大赛一办公空间“美穂杯”银奖2011年首届全国“金马克杯”室内设计大赛住宅空间金奖作品多次发表于广州日报 城市住宅家居主张新居有礼等杂志。 ヘ 设计理念:生活追求的是简单,我们不能用某一种风格来束缚我们所要的生活而固步自封,因每种风格都有自己的文化渊源。每一个家庭也都有自己的生活方式,态度和理想。只有在满足了人在家居生活中的
    设计说明 | Design Instruction
  • 设计师: 梁璟堂 设计理念:生活追求的是简单,我们不能用某一种风格来束缚我们所要的生活而固步自封,因每种风格都有自己的文化渊源。每一个家庭也都有自己的生活方式,态度和理想。 项目:鑫润花园 风格:现代轻奢 户型:复式楼 面积:220方 设计说明: 该户型是一楼的复式楼,男业主爱喝茶交友,女业主是个资深手办迷,是设计师的老客户,所以梁工非常熟悉客户的需求,整个房子户型方正,一楼规划了客厅、厨房,茶室,楼梯放在最里面,楼梯下的空间规划了收纳区,二楼最光亮的地方是主卧,同时规划了工作室和书房等,整个空间设计合理又多变,满足了业主所有的需求! 风格上,采用了现在流行的高级灰的现代简约风格,整个空间简单大气,舒适安静,业主也充分采纳设计师的意见,采购了全屋的家具软配,最后呈现出这一个美好又满足的空间! 一楼靠落地窗的位置并排规划了客厅和喝茶区,餐桌位,连贯串通,大大的落地窗带来整屋的光亮,全屋采用时尚的平吊天花配无主灯,通铺灰色大砖,灰色的墙板,高级简洁的沙发,茶几,时尚造型的电视背景墙,落地的同色灰系窗帘,整个客厅的空间时尚大气,安静舒适,业主的高品位一览无余! 背靠沙发的位置安置了餐厅,通铺整个客厅的大灰砖真是太美了,餐边桌也用了灰色柜面加黑色格子,摆上业主喜爱的饰品,再加上简单有型的餐厅灯,整个空间真的是简洁又高级时尚。 现代风的楼梯也遵循简约时尚的原则,玻璃+不锈钢的围栏,黑色大理石踏步,静静的放置在角落里,楼梯后面做了储物间,另一端是厨房,楼梯与厨房的转角处巧妙的做了一个吧台,非常合理的用上了这处空间,落地的灰色储物柜呼应了餐边柜,加上氛围灯,摆上美酒咖啡,这个小小的空间没有打扰客厅,确紧密相连,贯穿动静结合的场景,同时也贯穿了餐厅背后的品茶区,设计真的是巧妙之极! 顺着餐厅和吧台走过来,是一个宽敞明亮的茶室,简单的装修配上高等的中式整套家私,从极简灰系现代风跨越到传统中式风,没有显得突兀,反而一幅别有洞天的景观。男业主爱喝茶爱交友,茶从口中入, 道至心间生, 打造一个素雅简淡的中式茶室, 是每个爱茶的人心中所求。加上宽敞现代的客餐厅,美观小巧的吧台,中西文化的美食爱好都有了专属的空间,现代人高品质的生活得以完全实现! 二楼是更私密的空间,设计了大大的主套卧,铺上了温馨的实木地板,不用过多的硬装造型,简单舒适实用为主。衣帽间不算大,但是装修的很时尚和实用,美好的空间总是能愉悦身心的! 二楼最有特色的是设计了一个多功能房还有一个女业主专属的手办工作室。 多功能房有大大的书柜,按摩椅,投影仪,全套音箱,大地毯,舒缓的灯光,看书、看电影,听音乐,练瑜伽等等,你能想到的日常娱乐都可以在这不大的空间里实现,家有这么一处空间,周末的午后来坐坐,整个身心得以放松和滋养,这就是居家空间带给我们的价值! 这是女业主专属的空间,一间时尚功能齐全的手办工作室。大大的落地窗,简洁宽敞的工作桌,整屋的展示柜摆满了女主人收藏或者亲手制作的精美手办,还配有专属的灯光营造氛围,每件心爱的手办看起来都是精美绝伦的艺术品,走进这个空间,能深深的感受到女业主对生活的热爱,对自我的爱好的追求,让人羡慕和崇拜! 好的空间设计一定要具有沟通、共情的能力,不仅满足需求,更需要带来积极的作用,为每一个身处空间的人创造意想不到的价值,设计是有价值的!
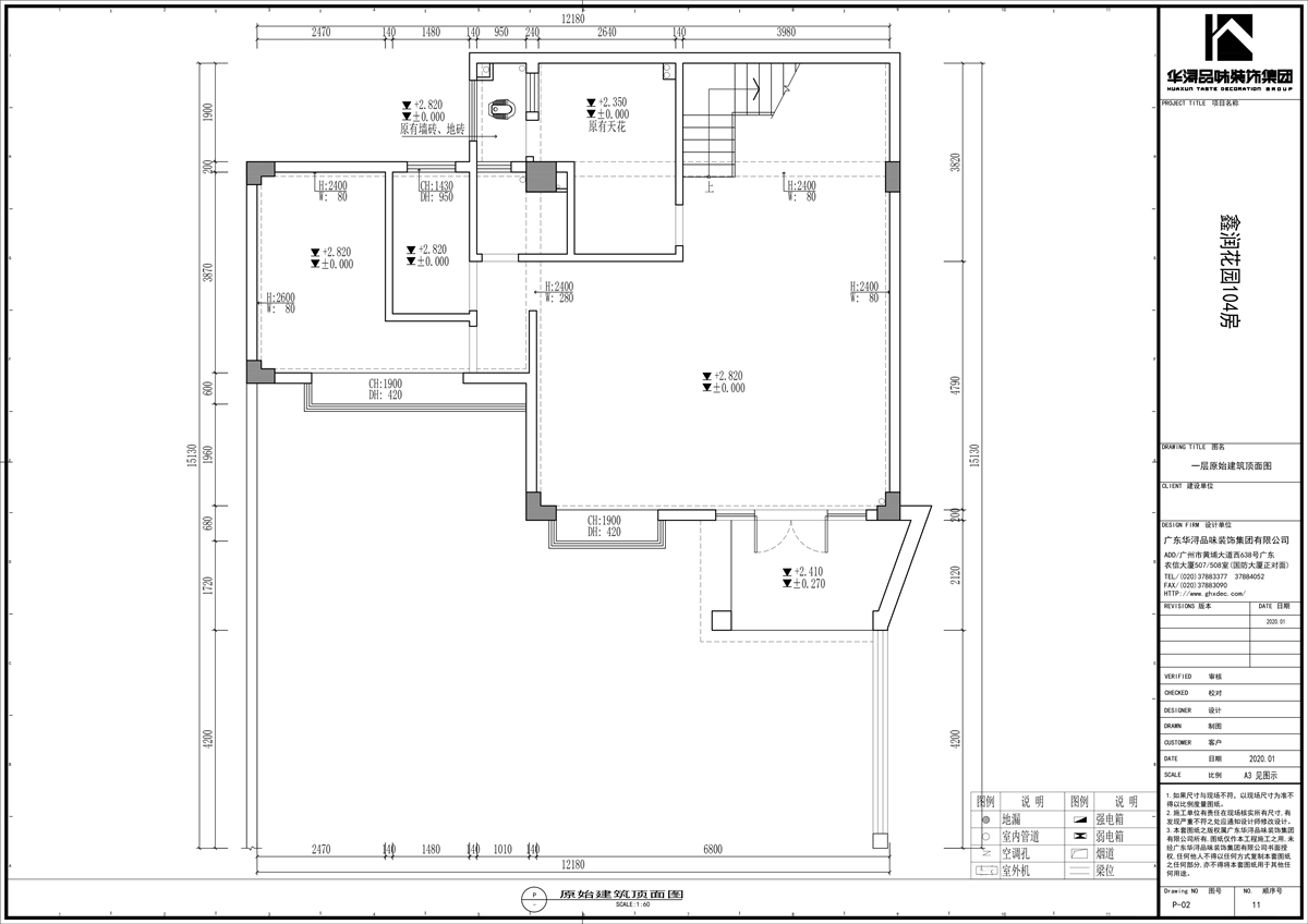
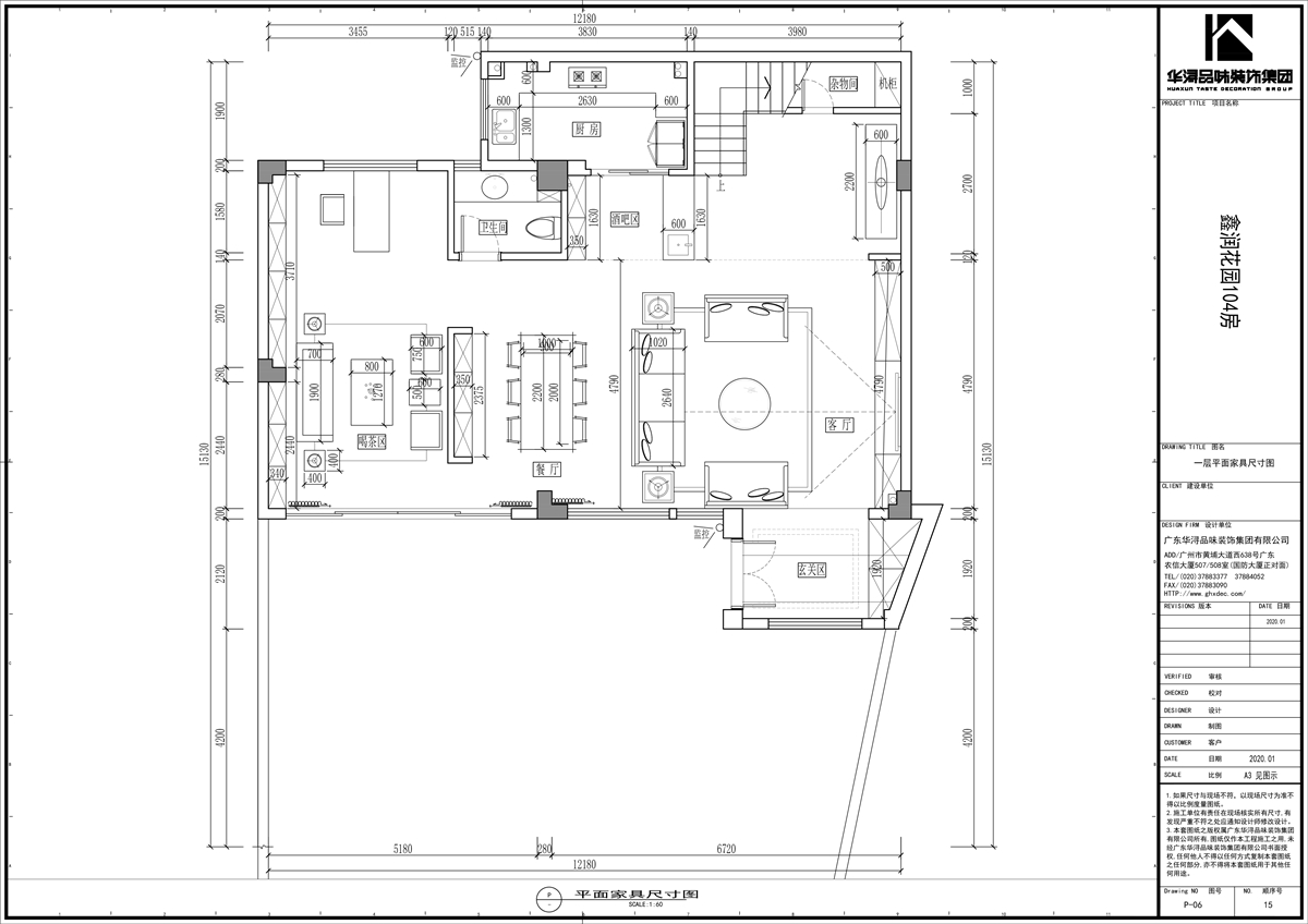
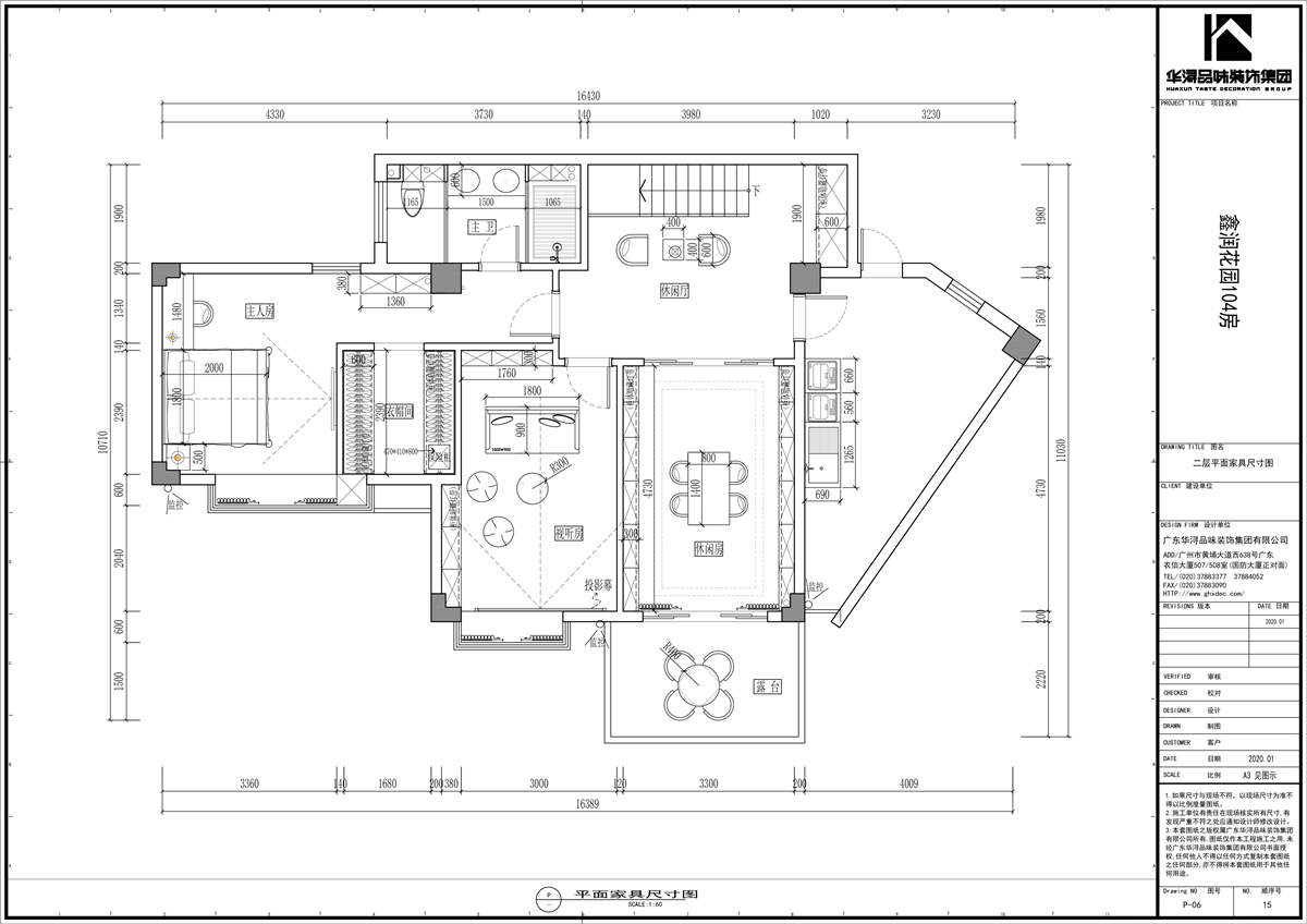
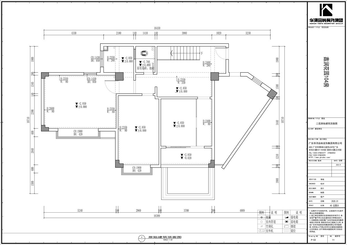
  • 图片
  • 图片
  • 图片
  • 图片
  • 图片
  • 图片
  • 图片
  • 图片
  • 图片
  • 图片
  • 图片
  • 图片
  • 图片
  • 图片
  • 图片
  • 图片
  • 图片
  • 图片
  • 上一个 下一个
    《金腾奖优秀作品年鉴》 私宅丨地产丨餐饮丨酒店丨办公丨商业丨公共丨产品丨公益丨人气 jintengAWARD(小金_金腾奖组委会) 广州市海珠区琶洲大道68号华新中心21楼
    金腾奖视频号 金腾奖小红书号 监制:闫虹
    统筹:吴佳佳
    运营:朱倩仪 王赫萱 张芷莹 胡岚恩 小金
    新媒体:王贝贝 严洁 侯乐 鹅姐
    经纪:刘译遥 石征 曹凯月
    技术:张桐 黄天佑
    最终解释权归金腾奖主办方所有