Shiguangjianying
作品详情
  • Details of the work 标题横线
    头像或者logo
    图片 兰超
    城市:长乐
    公司: 华浔品味装饰集团
    参赛作品: 时光剪影
    空间类型:公寓(150㎡以下)
    个人/公司简介:
    设计总监:兰 超 毕业院校:广州美术学院环境艺术系(昌岗校区) 从业年限:12年 曾任职华浔品味装饰集团总部设计师,2018年调任华浔品味装饰集团长乐分公司设计总监。 所获荣誉: 集团全国优秀设计师 第六届金马克杯设计大赛实景类银奖 第六届金马克杯设计大赛最佳公共空间奖 第六届金马克杯设计大赛年度陈设艺术类TOP50 2021年人居中国年度精英人物 第十八届年度国际环艺创新设计作品大赛金奖等奖项 2022年金堂奖入围全国杰出作品及福建城市十佳,并被推荐为“大宅影响力人物” 设计理念:人为的设计生活方式,是为了努力去创造一种更好的生活状态.
    设计说明 | Design Instruction
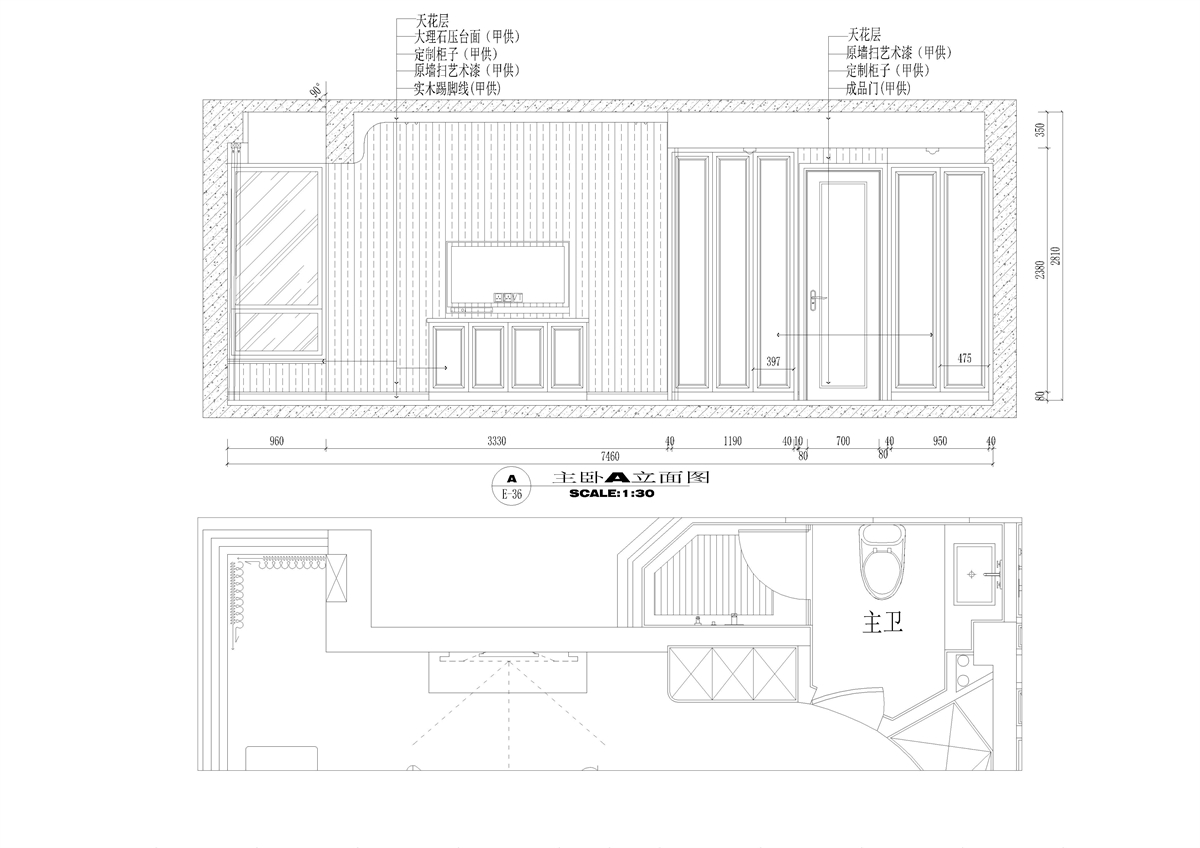
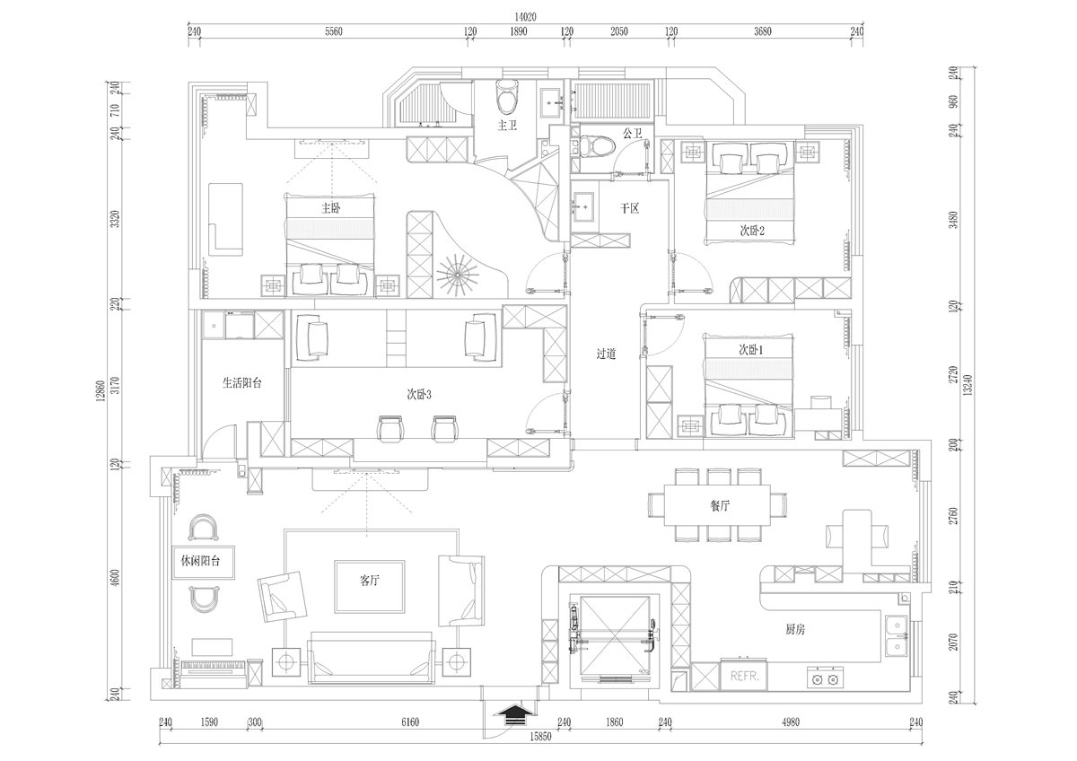
  • 项目名称:时光剪影 项目地址:福建省福州市长乐区万业锦江 项目面积:套内面积168平方。 项目风格:法式轻奢 四室两厅一厨两卫,建筑面积168平方。 本案的原结构动静分区非常清晰,优点是客厅方正偏大,有双阳台,四个卧室结构方正,采光通风都非常好,缺点是餐厅偏小偏暗,因此把原来在餐厅外的生活阳台拆除,变成一个小吧台区,扩大了餐厅的视觉空间,也增强了采光。厨房做成开放式,增添了厨房跟餐厅的交流,也让做饭变得更有趣味。原客厅的阳台拆除,做成钢琴区,这样不仅让客厅采光更好,也让孩子在练钢琴的同时,家长能时刻兼顾得到。那生活阳台改到南边的房间外,从客厅阳台开了一个小门,进出更加方便,给生活带来了非常大的便利性。主卧的衣帽间跟卫生间也是本案的一大亮点,卫生间利用了原来的空调主机位,让原来窄小的卫生间采光跟空间进行了更好的改善,衣帽间做成了圆弧形兼过道,最大的原因是因为床头的摆放问题,一是因为床头现在这样摆放,窗外的风景可以尽收眼底,二是因为中风传统的风水问题,床头更适合摆放在这边,那么房门没办法改动的情况下,就改变了衣帽间的做法,那这也是业主非常喜欢的设计方式,也成为了签单点。 业主对巴黎的浪漫与艺术情有独钟,法式的罗曼蒂克和充满美感的慢生活让人为之沉醉。因此,在新居整体风格的设计上,选择了业主钟爱的法式轻奢,希望将向往的生活方式带入家中。把焦糖橙与深灰色作为主色调,灰色给人以沉稳与时尚的感觉,焦糖橙的融入提升了房间整体活力,给人以耳目一新之感。 灰调质感的皮质沙发,散发出一丝丝暖暖的气息,橙色抱枕呼应了客厅的整体色调。清晨的阳光从大面积的窗户洒入室内,悄然增加舒适感,使整体空间更简洁温馨。
  • 图片
  • 图片
  • 图片
  • 图片
  • 图片
  • 图片
  • 图片
  • 图片
  • 图片
  • 图片
  • 图片
  • 图片
  • 图片
  • 图片
  • 图片
  • 图片
  • 图片
  • 图片
  • 图片
  • 图片
  • 图片
  • 图片
  • 图片
  • 图片
  • 图片
  • 图片
  • 图片
  • 图片
  • 图片
  • 图片
  • 图片
  • 图片
  • 图片
  • 图片
  • 图片
  • 图片
  • 上一个 下一个
    《金腾奖优秀作品年鉴》 私宅丨地产丨餐饮丨酒店丨办公丨商业丨公共丨产品丨公益丨人气 jintengAWARD(小金_金腾奖组委会) 广州市海珠区琶洲大道68号华新中心21楼
    金腾奖视频号 金腾奖小红书号 监制:闫虹
    统筹:吴佳佳
    运营:朱倩仪 王赫萱 张芷莹 胡岚恩 小金
    新媒体:王贝贝 严洁 侯乐 鹅姐
    经纪:刘译遥 石征 曹凯月
    技术:张桐 黄天佑
    最终解释权归金腾奖主办方所有