Dongfangyun
作品详情
  • Details of the work 标题横线
    头像或者logo
    图片 吉亮
    城市:长沙
    公司: 华浔品味装饰集团
    参赛作品: 拾光中的东方韵
    空间类型:公寓(150㎡以下)
    个人/公司简介:
    【设计总监】 吉亮 简介 毕业于中南林业科技大学工业设计类专业 擅长新中,美式,北欧,欧式,台式,现代等风格。 设计理念:设计源于生活。 从业经历 2010年8月——2013年12月 韶关华浔 主笔设计师 2014年3月——2015年12月 广东华浔 首席设计师 2016年4月——2017年11月 星沙华浔 首席设计师 2017年12月——至今 长沙华浔 设计总监 部分作品 碧桂园别墅,浏阳别墅,北辰中央公园别墅,金科山水洲别墅等 天宸原著叠墅,碧桂园御园,明昇壹城,中交中央公园等
    设计说明 | Design Instruction
  • 项目名称:拾光中的东方韵 项目地址:长沙·龙湖碧桂园天辰原著 设计主创:吉亮 设计时间 :2021.08 风格定位 :新中式+美式轻奢 项目面积 :350㎡ 设计说明: 近年来随着文化自信和精神需求的提高,中式不再局限于红木和雕花,本案屋主是一对有着二十多年的软装服务老板,购置了这套叠墅带屋顶花园的住宅,希望以简练的空间语言塑造东方美感的居住空间。 由于工作的特殊性,业主只对房子的风格做了硬性要求,一楼客餐厅、长辈房和三楼茶室做成新中式,主人房是美式轻奢。布局方面满足功能,把大门外移,改变之前拥挤的门厅,形成玄关及换鞋区。主人房采用转角衣帽间,满足储藏又有隐私性。花园有水景绿植,休闲聚餐烧烤开Party。设计上一步一景,中式元素的造型,加上艺术涂料结合精致的软装搭配,最后呈现出自己想要的结果。
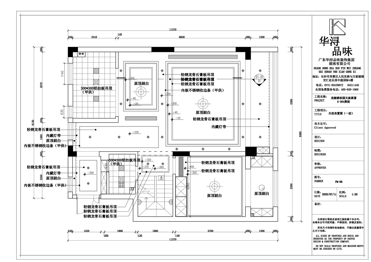
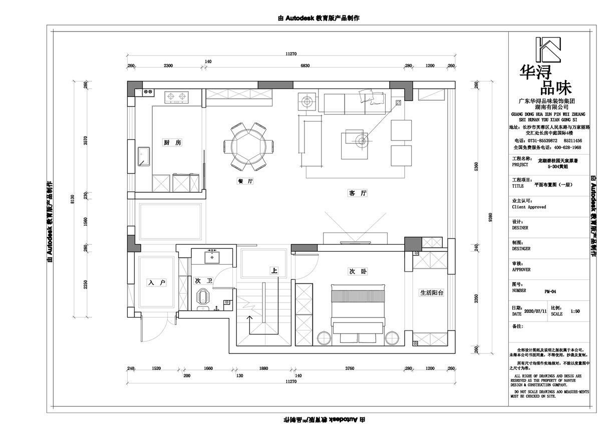
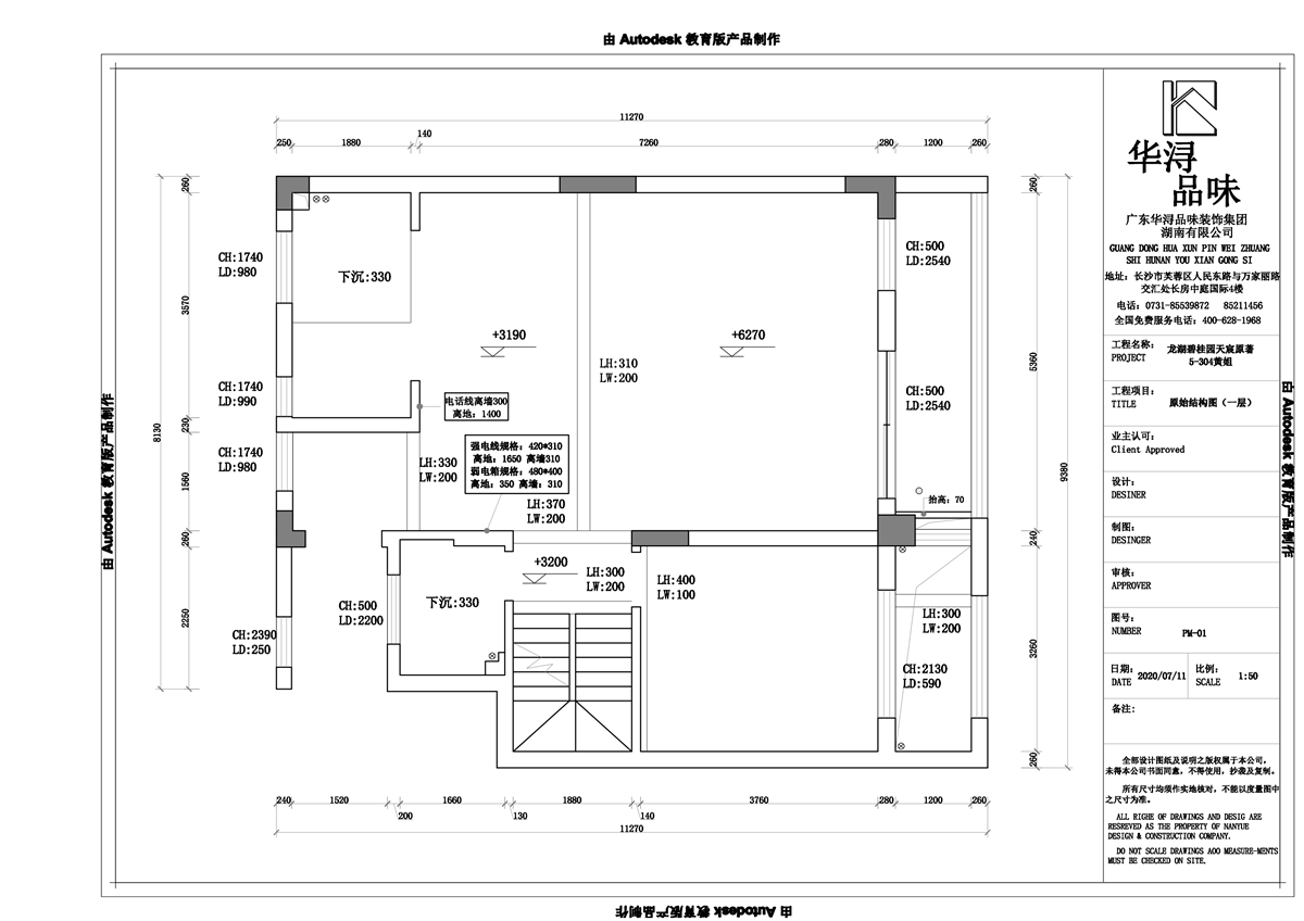
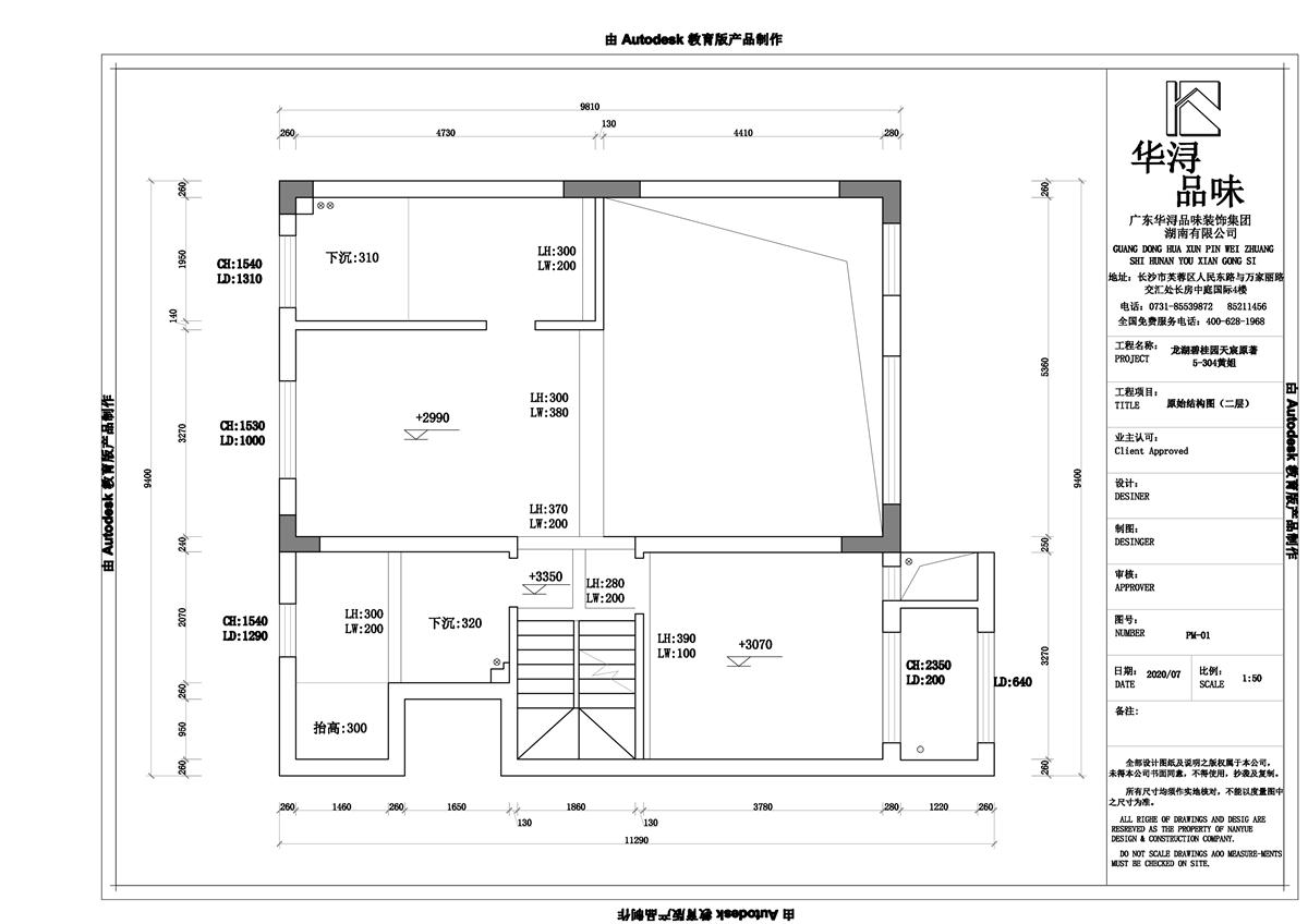
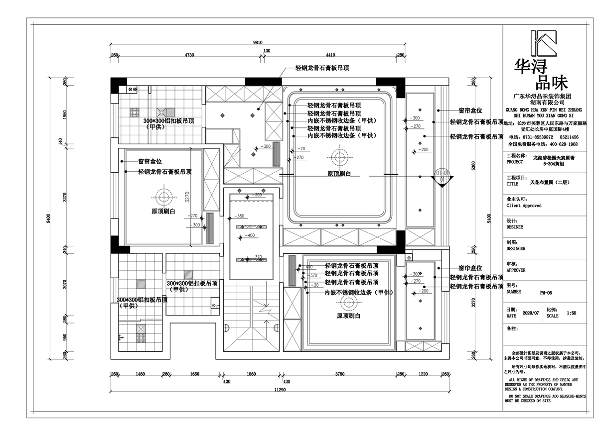
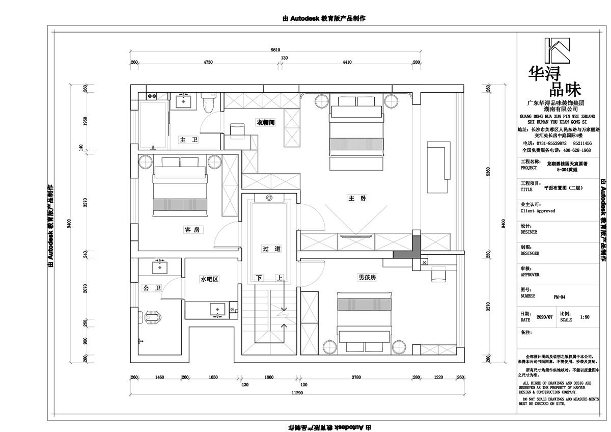
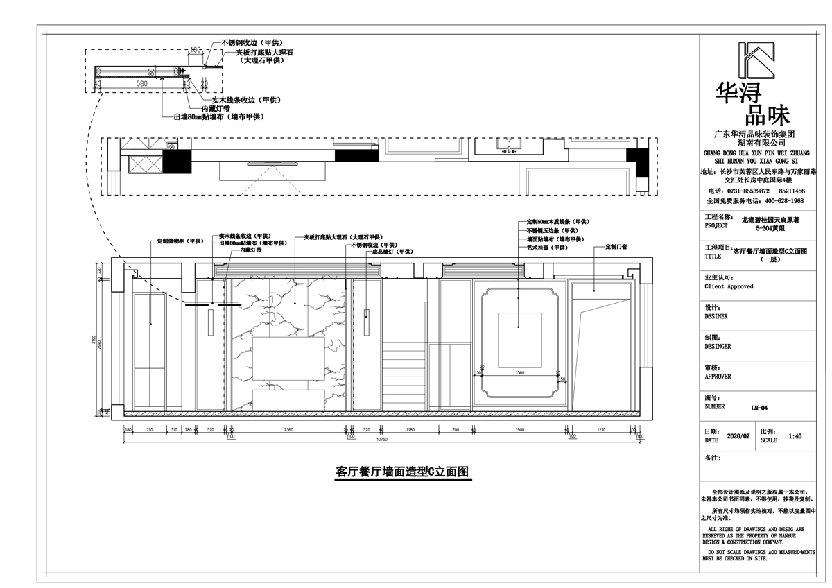
  • 图片
  • 图片
  • 图片
  • 图片
  • 图片
  • 图片
  • 图片
  • 图片
  • 图片
  • 图片
  • 图片
  • 图片
  • 图片
  • 图片
  • 图片
  • 图片
  • 图片
  • 图片
  • 图片
  • 图片
  • 图片
  • 图片
  • 图片
  • 图片
  • 图片
  • 图片
  • 图片
  • 图片
  • 图片
  • 上一个 下一个
    《金腾奖优秀作品年鉴》 私宅丨地产丨餐饮丨酒店丨办公丨商业丨公共丨产品丨公益丨人气 jintengAWARD(小金_金腾奖组委会) 广州市海珠区琶洲大道68号华新中心21楼
    金腾奖视频号 金腾奖小红书号 监制:闫虹
    统筹:吴佳佳
    运营:朱倩仪 王赫萱 张芷莹 胡岚恩 小金
    新媒体:王贝贝 严洁 侯乐 鹅姐
    经纪:刘译遥 石征 曹凯月
    技术:张桐 黄天佑
    最终解释权归金腾奖主办方所有