freshman
作品详情
  • Details of the work 标题横线
    头像或者logo
    图片 杨朕 南京云上设计师俱乐部特约推荐
    城市:南京
    公司: 几又形态空间设计工作室
    参赛作品: 新生
    空间类型:公寓(150㎡以下)
    个人/公司简介:
    设计师:杨朕 公 司:几又形态空间设计工作室 职 位:设计总监/创始人 毕业院校:安徽工程大学艺术学院环境艺术设计专业,室内设计师 往期荣誉:2021龍承奖别墅空间银奖 新锐中国设计奖 中国美术学院—陈设设计师 设计理念:坚持通过手绘表达获取设计灵感,尝试不同的设计手法,传达不同的生活感受,从而实现理想的设计效果; 坚持装饰效果与实用功能平衡,将艺术融入生活当中。
    设计说明 | Design Instruction
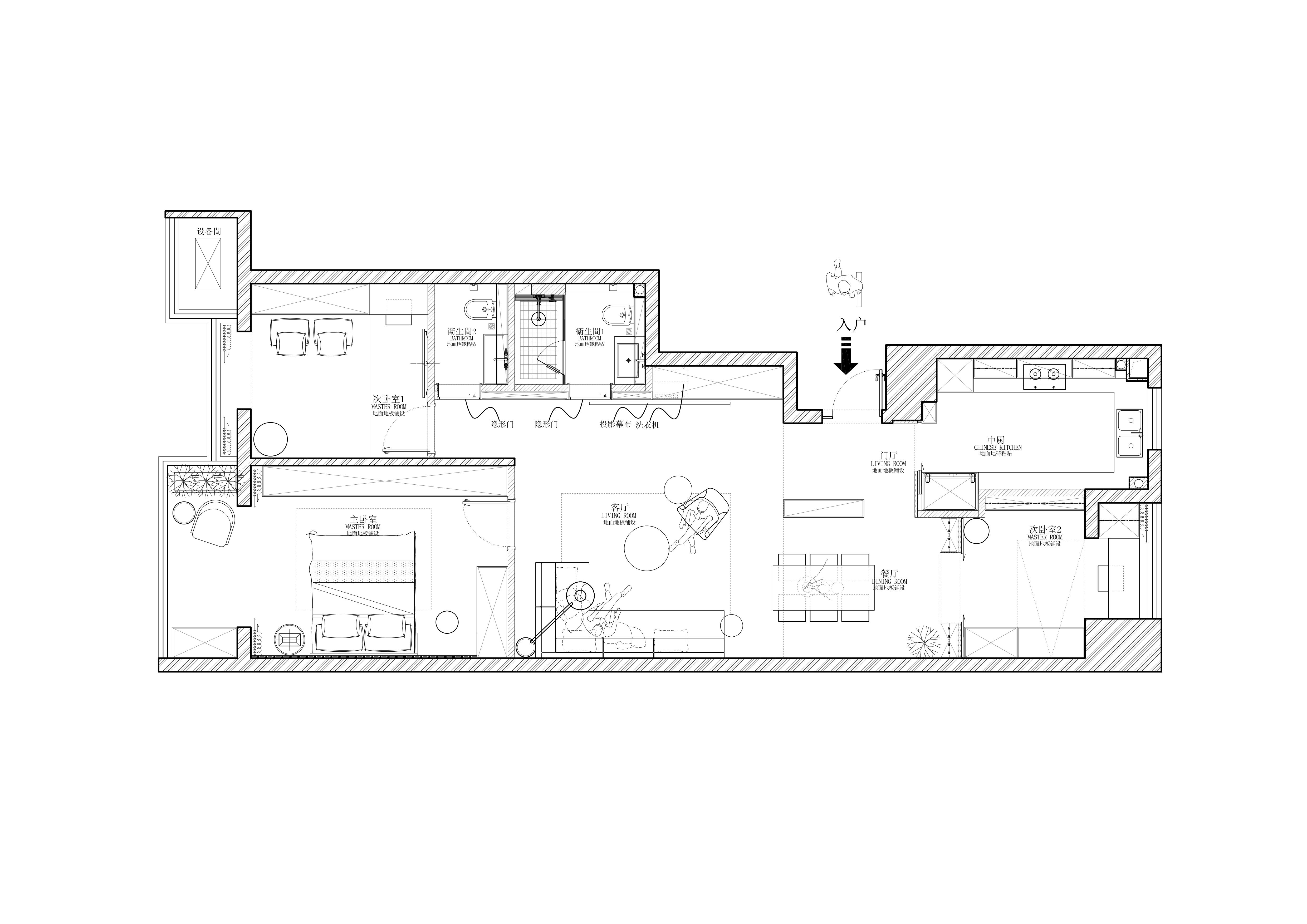
  • 设计说明: Design instruction: 从喧嚣的世界归来,隐入静谧的空间。 Come back from the noisy world, and disappear into the quiet space 注重光线、空气、行走动线之间的关系,从而达到优化空间的目标。 Pay attention to the relationship between light, air and walking lines, so as to achieve the goal of optimizing space. 将社交功能与艺术美学带入空间设计中,营造出独特的定制化情境空间,从而提升使用者的居住、审美和生活体验。 Social function and artistic aesthetics are brought into space design, creating a unique customized situational space, thus enhancing users' living, aesthetic and life experience. 项目名称| 新生 项目地址| 中国 南京 项目面积| 135平米 屋 邻| 19年(2004年建成) 主要材料|艺术涂料、实木烤漆木板、天然大理石、实木多层地板、灰镜 竣工时间| 2022年 项目摄影| 黑曜石 项目原状态:老房 改造中遇到的问题:在原有两房一厨一卫的基础上,满足三房一厨两卫的功能要求,最大化的增加储物空间又不影响每个空间的使用面积. 如何解决遇到的问题:在原建筑结构的北面,将厨房、卫生间及餐厅的区域进行整合改造,扩大厨房使用面积的同时增加一个北面的卧室兼顾书房的空间(满足三代人同住,迎接即将诞生的宝宝),当然这个空间隐藏了一个几乎未被发现并且实用的折叠床;使南北方位的空间形成良好的通风和采光的效果;将原有储藏间的区域,改造为两个独立的卫生间,这样既可以做到干湿分区,也可以解决三代人同住卫生间不够使用的问题. 将储物功能分散到每个可以利用的区域,这样既不占用空间又可以满足收纳要求.
  • 图片
  • 图片
  • 图片
  • 图片
  • 图片
  • 图片
  • 图片
  • 图片
  • 图片
  • 图片
  • 图片
  • 图片
  • 图片
  • 图片
  • 图片
  • 图片
  • 上一个 下一个
    《金腾奖优秀作品年鉴》 私宅丨地产丨餐饮丨酒店丨办公丨商业丨公共丨产品丨公益丨人气 jintengAWARD(小金_金腾奖组委会) 广州市海珠区琶洲大道68号华新中心21楼
    金腾奖视频号 金腾奖小红书号 监制:闫虹
    统筹:吴佳佳
    运营:朱倩仪 王赫萱 张芷莹 胡岚恩 小金
    新媒体:王贝贝 严洁 侯乐 鹅姐
    经纪:刘译遥 石征 曹凯月
    技术:张桐 黄天佑
    最终解释权归金腾奖主办方所有