FUCHENG
作品详情
  • Details of the work 标题横线
    头像或者logo
    图片 苑茂室內設計工作室
    城市:新竹
    公司:苑茂室內設計工作室
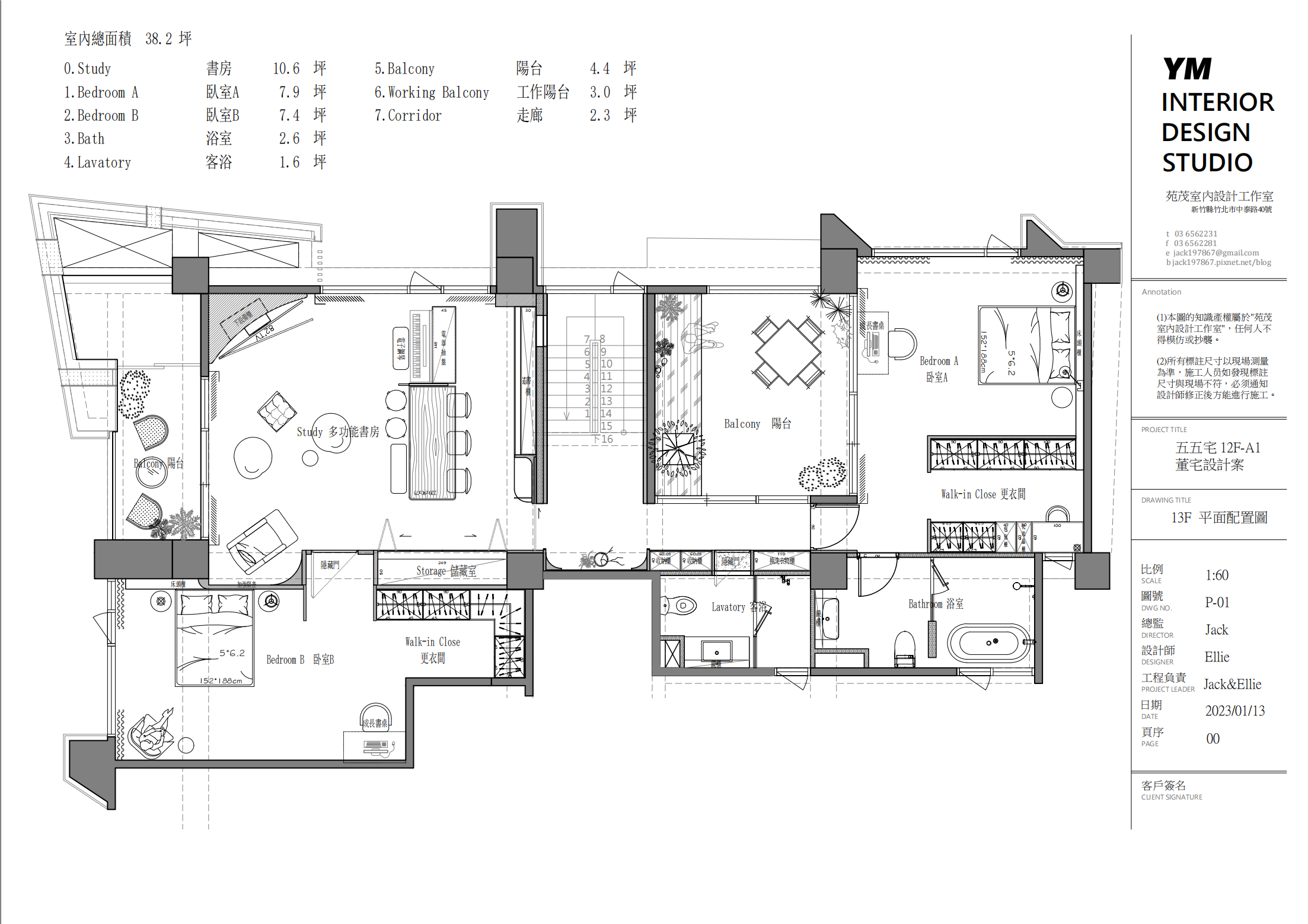
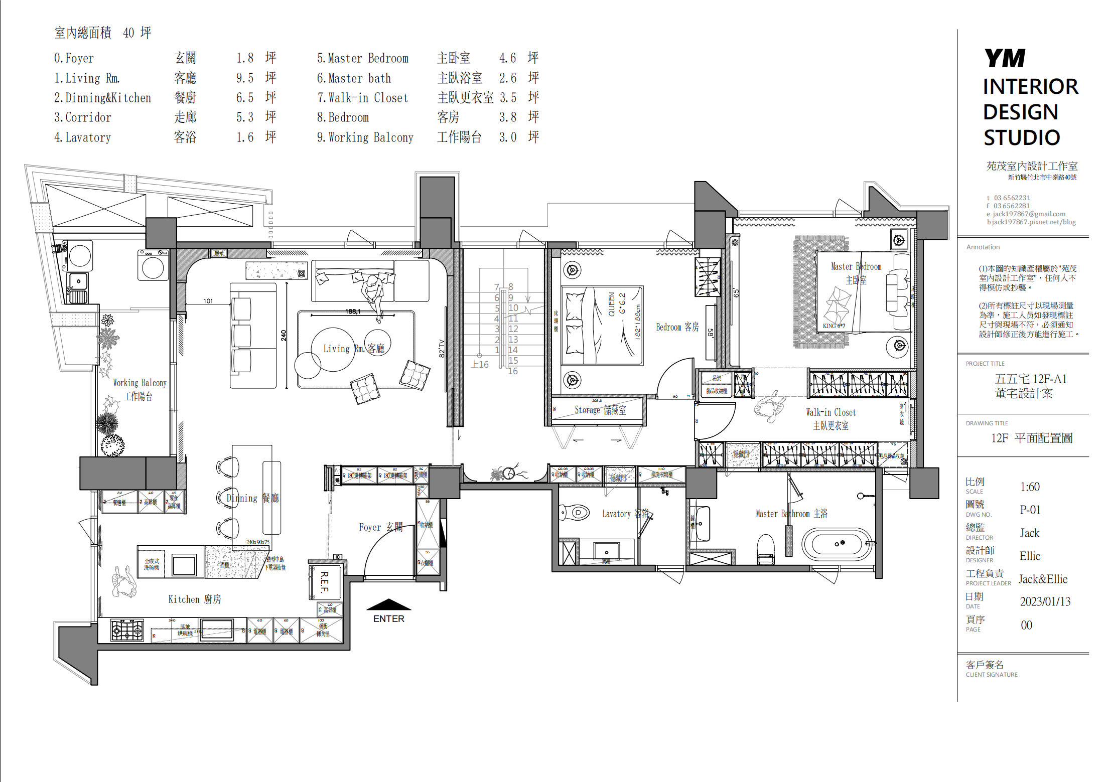
    参赛作品: 賦埕。複層
    空间类型:公寓(150㎡以下)
    个人/公司简介:
    苑茂室內設計工作室2016成立以來,提供住宅空間規劃、預售屋客變、老屋翻新、商業空間規劃、室內外空間整合規畫服務。 以使用者的需求為中心,依環境及空間,於動線、機能、材質、色彩搭配、燈光演繹上做一套完整與專業的客製化服務。 擅長以居住者需求為出發點,透過發掘生活態度的不同,將居住成員透過空間機能分配,達成情感互動、隱私區隔、生活氣氛塑造,將原本的空間盒子透過動態、人與人間交流、視線延伸,進而創造居住者良好的生活品質,又能將空間的獨特性與生活融為一體。 
    设计说明 | Design Instruction
  • 賦埕。複層 在臺灣早期庭院或場地可稱為「埕」,埕也是農忙時工作、農閒時家人休閒泡茶的聚集地,肩負了多功能的一個場域,此案是位於頂樓的複層建築,不小的坪數裡我們以三個埕的概念,讓成員可以在不同的生活場景下,穿梭於各個埕之間。   一進的一樓公區設定為家人與賓客都能共享的埕,結合品酒招待與辦公的機能,二進上到樓上的純屬家人共享休憩的埕,結合電玩、樂音、閱讀等生活喜好,三進到頂樓專有的室外大露臺的埕,賞景、星光、親友共聚的隱密場域,動線營造出家中獨有的休閒氛圍。   當空間來到一定的坪數,成員間的生活需求、情感互動外,更有餘裕的空間來利用規劃創造不同樂趣的機會,讓家也可有如旅店般的豐富體驗。
  • 图片
  • 图片
  • 图片
  • 图片
  • 图片
  • 图片
  • 图片
  • 图片
  • 图片
  • 图片
  • 图片
  • 图片
  • 图片
  • 图片
  • 图片
  • 图片
  • 上一个 下一个
    《金腾奖优秀作品年鉴》 私宅丨地产丨餐饮丨酒店丨办公丨商业丨公共丨产品丨公益丨人气 jintengAWARD(小金_金腾奖组委会) 广州市海珠区琶洲大道68号华新中心21楼
    金腾奖视频号 金腾奖小红书号 监制:闫虹
    统筹:吴佳佳
    运营:朱倩仪 王赫萱 张芷莹 胡岚恩 小金
    新媒体:王贝贝 严洁 侯乐 鹅姐
    经纪:刘译遥 石征 曹凯月
    技术:张桐 黄天佑
    最终解释权归金腾奖主办方所有