print
作品详情
  • Details of the work 标题横线
    头像或者logo
    图片 时光筑造空间设计
    城市:深圳
    公司:时光筑造空间设计
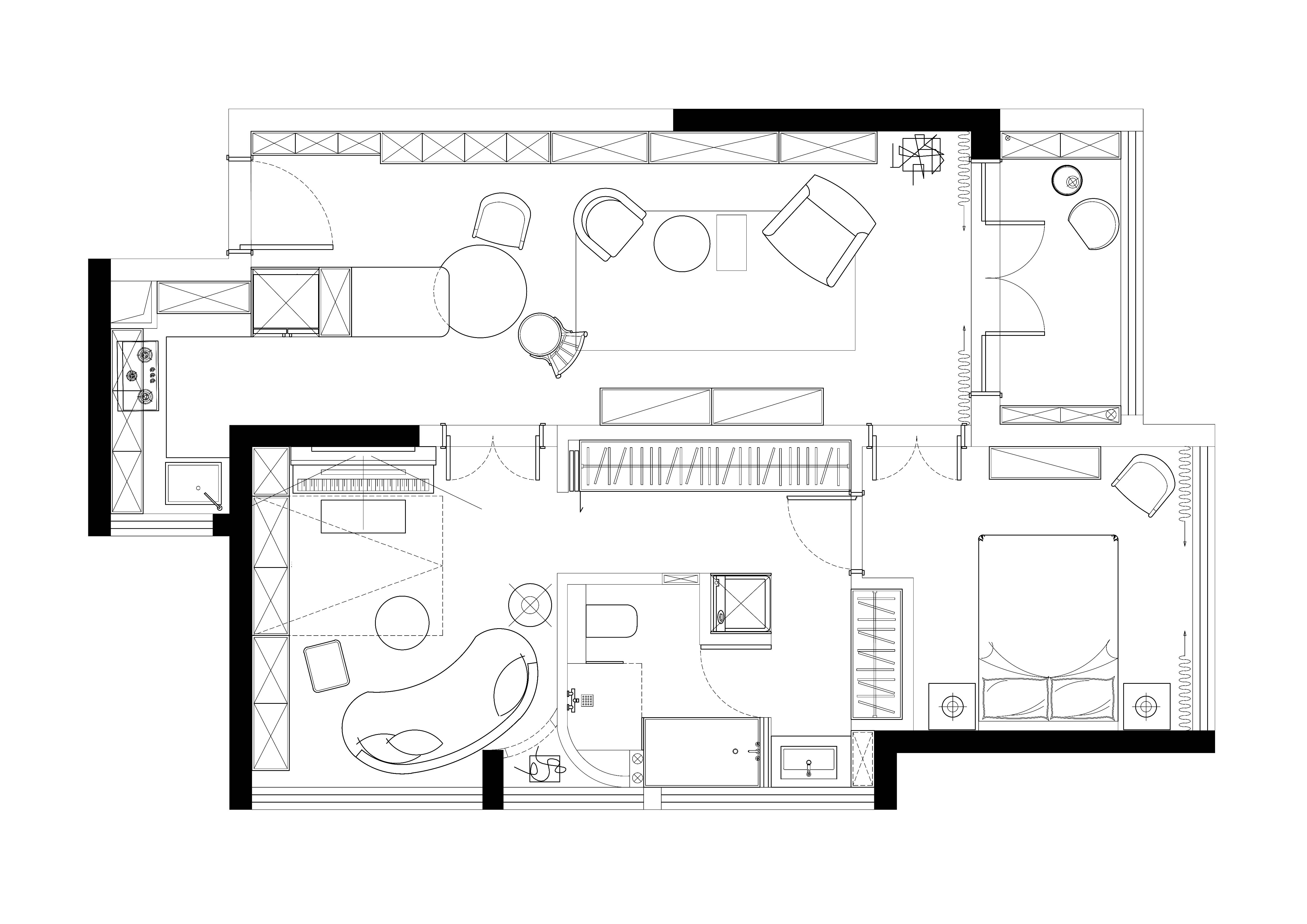
    参赛作品: 印迹
    空间类型:公寓(150㎡以下)
    个人/公司简介:
    ●关于时光筑造 时光筑造空间设计有限公司在深圳成立,于2022年成立长沙分公司。是一家集空间设计/施工落地/软装陈设/产品定制等服务为一体的专业全案设计公司。注重环境、建筑、人文与美学的有机结合,提供具有创新性、专业性的空间设计与施工一体的整体解决方案。我们始终坚持,每个设计都应该有所见即所得的实景呈现,致力于做一个美好生活的践行者,希望透过设计,让更多的中国家庭享受美好生活。
    设计说明 | Design Instruction
  • 业主留法多年,钟情于法式老公寓的独特韵味,回国后自创了一个手袋品牌,是一名独立设计师,因此在审美上也有一定的见解,十分清楚自己想要一个什么样的家,本案是完全基于业主的喜好,实现了她理想中的法式公寓风格。 空间布局是一大亮点,由于业主一个人居住,我们将三房改两房,通过两扇法式双开门,将起居室与卧室形成环道关系,卫生间与衣帽间居 中,洄游动线令空间充满趣味联动感。客厅依循经典法式布局,沙发围绕壁炉展开,整体风格纯正且典雅,老公寓的调性优雅隽永。 软装则是法式风格的灵魂之处,业主强大的收藏癖让空间耐人寻味,且十分尊重原创设计,家具都是进口原版,独特且高级的审美,丰富且精致的物件充满每个角落。我们用专业的知识去把这些美好的东西进行梳理对比,使之合理存在于空间,每一隅角落都和谐美好,共奏经典高雅的法式之风。
  • 图片
  • 图片
  • 图片
  • 图片
  • 图片
  • 图片
  • 图片
  • 图片
  • 图片
  • 图片
  • 图片
  • 图片
  • 图片
  • 图片
  • 图片
  • 图片
  • 图片
  • 图片
  • 图片
  • 图片
  • 图片
  • 图片
  • 图片
  • 图片
  • 图片
  • 图片
  • 图片
  • 图片
  • 图片
  • 图片
  • 图片
  • 图片
  • 图片
  • 图片
  • 图片
  • 图片
  • 图片
  • 图片
  • 图片
  • 图片
  • 图片
  • 图片
  • 图片
  • 图片
  • 图片
  • 图片
  • 上一个 下一个
    《金腾奖优秀作品年鉴》 私宅丨地产丨餐饮丨酒店丨办公丨商业丨公共丨产品丨公益丨人气 jintengAWARD(小金_金腾奖组委会) 广州市海珠区琶洲大道68号华新中心21楼
    金腾奖视频号 金腾奖小红书号 监制:闫虹
    统筹:吴佳佳
    运营:朱倩仪 王赫萱 张芷莹 胡岚恩 小金
    新媒体:王贝贝 严洁 侯乐 鹅姐
    经纪:刘译遥 石征 曹凯月
    技术:张桐 黄天佑
    最终解释权归金腾奖主办方所有