The secret of moonlight
作品详情
  • Details of the work 标题横线
    头像或者logo
    图片 陈意
    城市:佛山
    公司: 陈向联合设计工作室
    参赛作品: 月夜秘境
    空间类型:公寓(150㎡以下)
    个人/公司简介:
    陈意 -顺德室内设计师协会理事 -CIID中室学佛山室内建筑师中心 委员 -ICS国际色彩空间设计奖.2022优秀色彩空间 [商业空间]设计奖 -2022“独创杯”国际设计大赛“人气奖” -40UNDER 40中国(佛山)设计杰出青年(2022-2023) -40UNDER 40中国(佛山)设计杰出青年(2021-2022) -华语设计领袖榜<2021年度百位卓越设计人物> -2019年亚太空间设计评选<百强设计师> 从大学毕业之后,便投身于设计行业,有着超14年的丰富室内设计从业经验。作为工作室的创始人之一,对工作室有着清晰的定位和规划,并在14年的时间里完成了一次又一次的精彩蜕变。理科出身的我空间感极强,对结构与工艺都了如指掌。与此同时,我用自己的严谨实干的精神带领着团队追求更高的设计品质,用专业的设计素养赢得了一个又一个业主的赞许。“您选我以信任,我报您以真诚。”这便是我最经常与团队说的一句话。
    设计说明 | Design Instruction
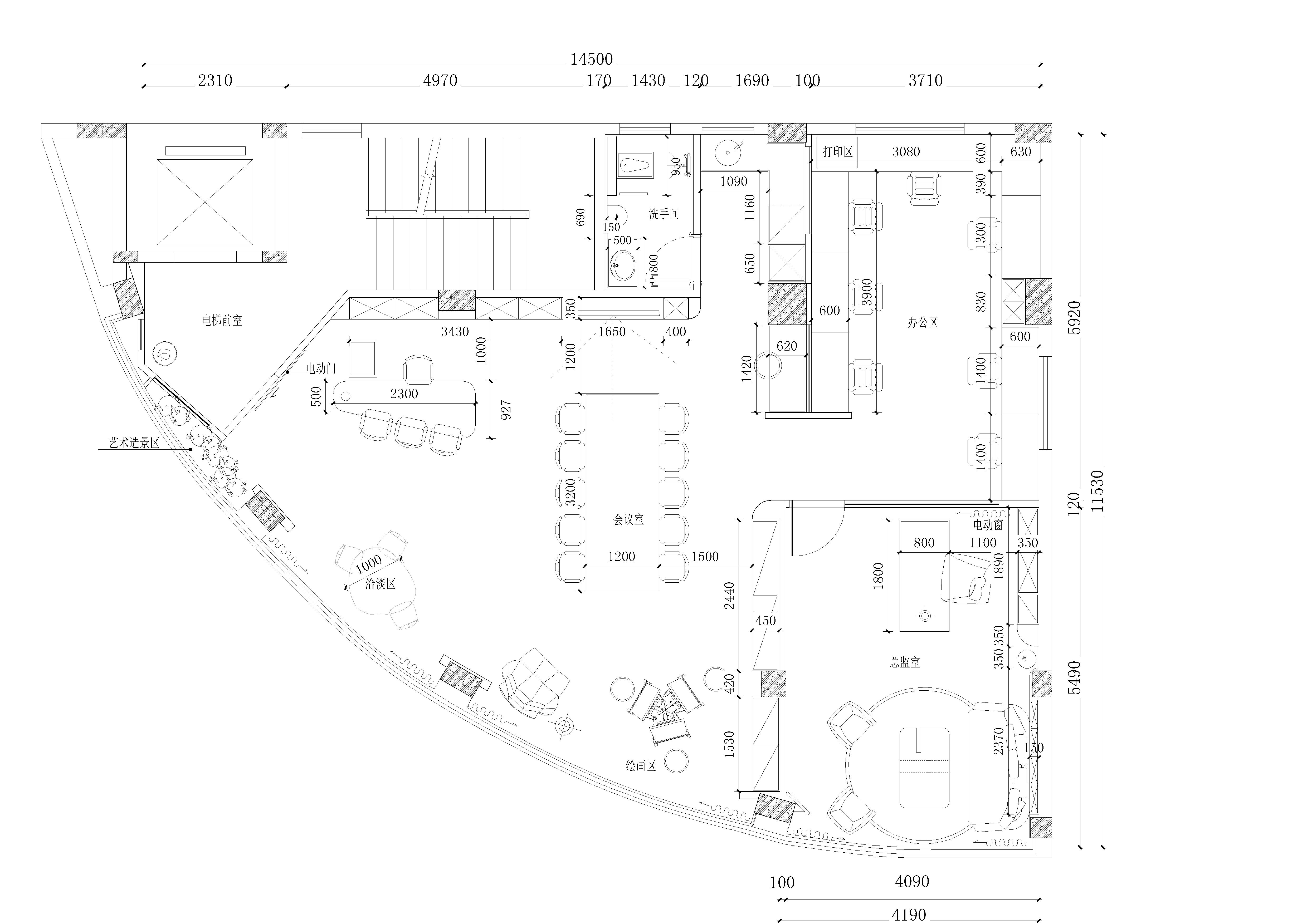
  • 这是藏匿于星空中的想象, 以月夜为载体, 寓意着对星空的憧憬, 亦是我们穷其一生都在追求的无限可能。 前厅:欲入前厅,却误入了与自然共生的秘境。前厅与内部空间由数个交错堆叠的体块分隔开来,以光造景,光透过“C”与“X”字样将高低错落的的园林造景引入前厅,模糊了室内外的边界。 茗茶区:清风来,竹影摇曳。石头与现代亚克力的对比碰撞设计,尽显空间气质。石头那历经沧桑的棱角与肌理,弥漫着岁月的痕迹。在柔光的照射下,它将大自然的精雕细琢展现得一览无余。岁月终会见证,那些曾经真心相待的每一个细节。 洽谈区:朝阳、午阳以及将眠未眠的落日,藉由通透的落地窗,目睹了一次又一次设计创意的交流,也见证了设计师数个从0到1的作品。 咖啡区:午后时光,在光线匍匐中,放纵片刻混沌的惬意。品杯咖啡,闭眼休憩,任脑中思绪万千,任其在斑斓的想象中徜徉。 会议区:在辽阔星空中提取灵感,塑造极具宽敞通透的公共空间体验。黑色是属于星空中的神秘,当光顺着重叠的水泥砖晕染开,虚虚实实,交织穿透,赋予了空间几丝温暖。星月也与之相伴,它们在致远方,也在敬过往。 隔墙褪去洁白无瑕的外衣,裸露出建筑本身的金属框架。新与旧,自然与艺术的碰撞,是延续自然的野趣。时光且慢,待我们慢慢创造出属于我们的无限可能。 总监办公区:神秘的月,时而化作壁灯,营造不同的灯光氛围;时而化为洞穴,与室外空间进行对话交流,为空间增添了不少乐趣。 在这,色彩与弧形引领着视觉的转折与延伸。黑色钢板呈九十度横竖规划着内部空间,时尚壁纸随着有秩序地开合,自然地将空间中的不同功能划分开来,繁中有序,序中有美,唤醒了全新的视觉冲击。 这世上,还有星月可以寄望,还有宇宙浪漫不止,还有未来无限可能。
  • 图片
  • 图片
  • 图片
  • 图片
  • 图片
  • 图片
  • 图片
  • 图片
  • 图片
  • 图片
  • 图片
  • 图片
  • 图片
  • 图片
  • 图片
  • 图片
  • 图片
  • 图片
  • 图片
  • 图片
  • 图片
  • 图片
  • 图片
  • 图片
  • 图片
  • 图片
  • 图片
  • 图片
  • 图片
  • 上一个 下一个
    《金腾奖优秀作品年鉴》 私宅丨地产丨餐饮丨酒店丨办公丨商业丨公共丨产品丨公益丨人气 jintengAWARD(小金_金腾奖组委会) 广州市海珠区琶洲大道68号华新中心21楼
    金腾奖视频号 金腾奖小红书号 监制:闫虹
    统筹:吴佳佳
    运营:朱倩仪 王赫萱 张芷莹 胡岚恩 小金
    新媒体:王贝贝 严洁 侯乐 鹅姐
    经纪:刘译遥 石征 曹凯月
    技术:张桐 黄天佑
    最终解释权归金腾奖主办方所有