Poly Daguojing Private Residence
作品详情
  • Details of the work 标题横线
    头像或者logo
    图片 赵阳
    城市:成都
    公司: 宿宅设计
    参赛作品: 保利大国璟私宅
    空间类型:公寓(150㎡以下)
    个人/公司简介:
    赵阳宿宅设计创始人兼设计总监,中国国家注册高级室内设计师,成都装饰协会高级设计师、成都建筑装饰协会高级住宅室内设计师。亚太设计师联盟的专业会员。 作品曾荣获多项殊荣,其中包括2016年IAI国际设计大赛室内空间奖、2018年金创意创意之星、2019年金外滩最佳居住空间奖等。他还荣获2019年成都建筑装饰协会年度优秀设计师称号,2021年铂伦斯全球设计大宅设计金奖,以及2022年成渝双城设计大展银奖和2022年华鼎奖最具原创设计师作品奖。
    设计说明 | Design Instruction
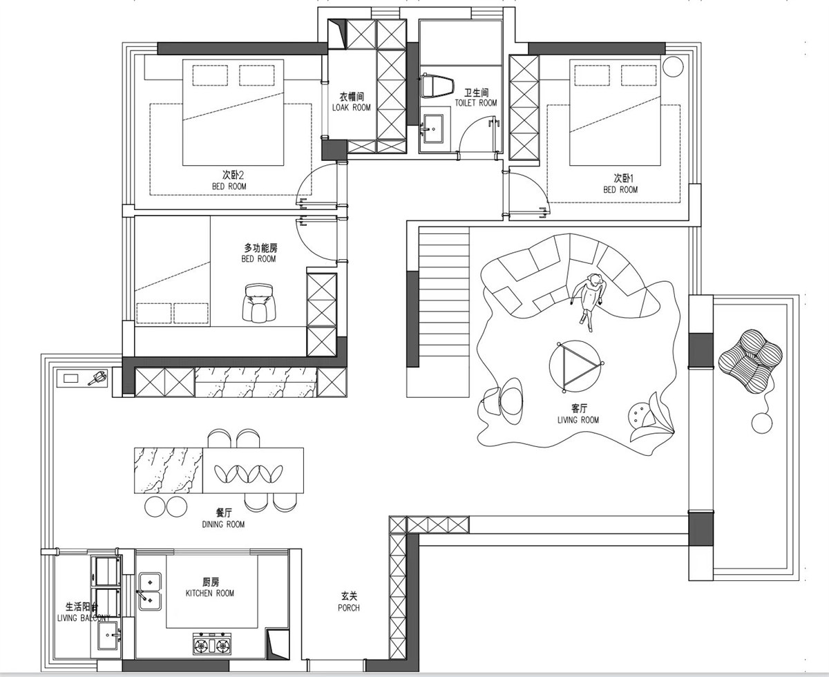
  • 项目概述: 本项目旨在设计并打造位于成都保利大国璟风景如画地段的现代、高雅奢华复式跃层。80后业主的设想是将这个空间打造成他的婚房。设计理念融合了现代轻奢的美学,通过木饰面、潘多拉岩板以及精心设计的床头硬包等元素,巧妙地融合了现代奢华与自然要素。 客户愿景: 客户希望这个空间既能散发出精致感,同时还能提供温馨和宜人的氛围。复式跃层的内部应该体现出现代感,又带有一丝隐约的奢华感,使其成为一个休闲、娱乐和庆祝人生里程碑的场所。 设计理念:现代轻奢与自然元素融合: 设计理念汲取了现代轻奢美学的灵感,将奢华元素与自然的宁静巧妙融合。材料的选择,如丰富的木饰面,不仅与自然世界建立了紧密联系,还赋予了空间温暖和自然的氛围。潘多拉岩板为空间增添了优雅,同时又传达出现代感。 关键设计元素: 自然木色调: 设计的基础围绕自然木色调展开。丰富的木饰面贯穿整个空间,赋予温暖和朴实的氛围。这种选择建立了与自然的无缝联系,创造了宁静舒适的氛围。 复式布局: 168平方米的复式布局为不同的起居和娱乐区提供了足够的空间。楼层间的互动增加了空间的活力和视觉趣味。 潘多拉岩板: 这些岩板装点了复式跃层的关键区域,提供了高雅而现代的触感。这些板块不仅增强了视觉吸引力,还为整体奢华氛围添色。 床头硬包: 主卧室配备了定制的床头硬包,为空间营造了舒适和奢华的感觉。这些元素既提供舒适,又在房间内部创造了焦点。 开放式设计: 复式跃层采用开放式设计,将不同的功能空间无缝融合在一起,增强了空间的宽敞感和流动感。 项目目标: 打造一个既现代又精致的生活环境,体现客户对优雅和温暖的追求。 融入高品质的材料,如木饰面和潘多拉岩板,提升视觉和触感体验。 手工定制设计床头硬包,为主卧室增添舒适性和设计美感。 确保设计营造出温馨舒适的氛围,同时反映客户的个性和生活方式。 总结: 本次成都保利大国璟现代轻奢复式跃层的设计旨在通过精心策划的现代轻奢和自然元素的融合,将客户的愿景变为现实。木饰面、潘多拉岩板和床头硬包的巧妙搭配共同创造了一个既引人注目又温馨的环境,满足了客户对独特而优雅的婚房的愿望。
  • 图片
  • 图片
  • 图片
  • 图片
  • 图片
  • 图片
  • 图片
  • 图片
  • 图片
  • 图片
  • 图片
  • 图片
  • 图片
  • 图片
  • 图片
  • 图片
  • 图片
  • 图片
  • 图片
  • 图片
  • 图片
  • 图片
  • 上一个 下一个
    《金腾奖优秀作品年鉴》 私宅丨地产丨餐饮丨酒店丨办公丨商业丨公共丨产品丨公益丨人气 jintengAWARD(小金_金腾奖组委会) 广州市海珠区琶洲大道68号华新中心21楼
    金腾奖视频号 金腾奖小红书号 监制:闫虹
    统筹:吴佳佳
    运营:朱倩仪 王赫萱 张芷莹 胡岚恩 小金
    新媒体:王贝贝 严洁 侯乐 鹅姐
    经纪:刘译遥 石征 曹凯月
    技术:张桐 黄天佑
    最终解释权归金腾奖主办方所有