Crane Feather - Return
作品详情
  • Details of the work 标题横线
    头像或者logo
    图片 深圳希遇装饰设计有限公司
    城市:深圳
    公司:深圳希遇装饰设计有限公司
    参赛作品: 鹤羽·归来
    空间类型:公寓(150㎡以下)
    个人/公司简介:
    深圳希遇装饰设计有限公司成立于2014年,由中国著名设计师富振辉先生创立。公司擅长室内外环境艺术营造,专注豪宅别墅、文旅民宿、私人大宅会所的全案设计,服务范畴涵盖建筑、园林、室内等,作品多次荣获国内外设计大奖。 希遇旨在通过环境设计提高生活品质,通过设计探寻环境背后的故事,以文化内涵增加空间体验感,形成情感记忆。希遇认为:设计、施工、主材和软装都能成为空间的主宰,和谐相处同放光辉。
    设计说明 | Design Instruction
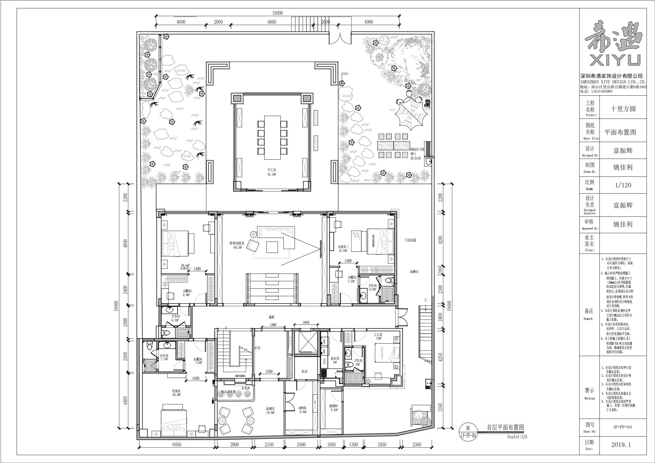
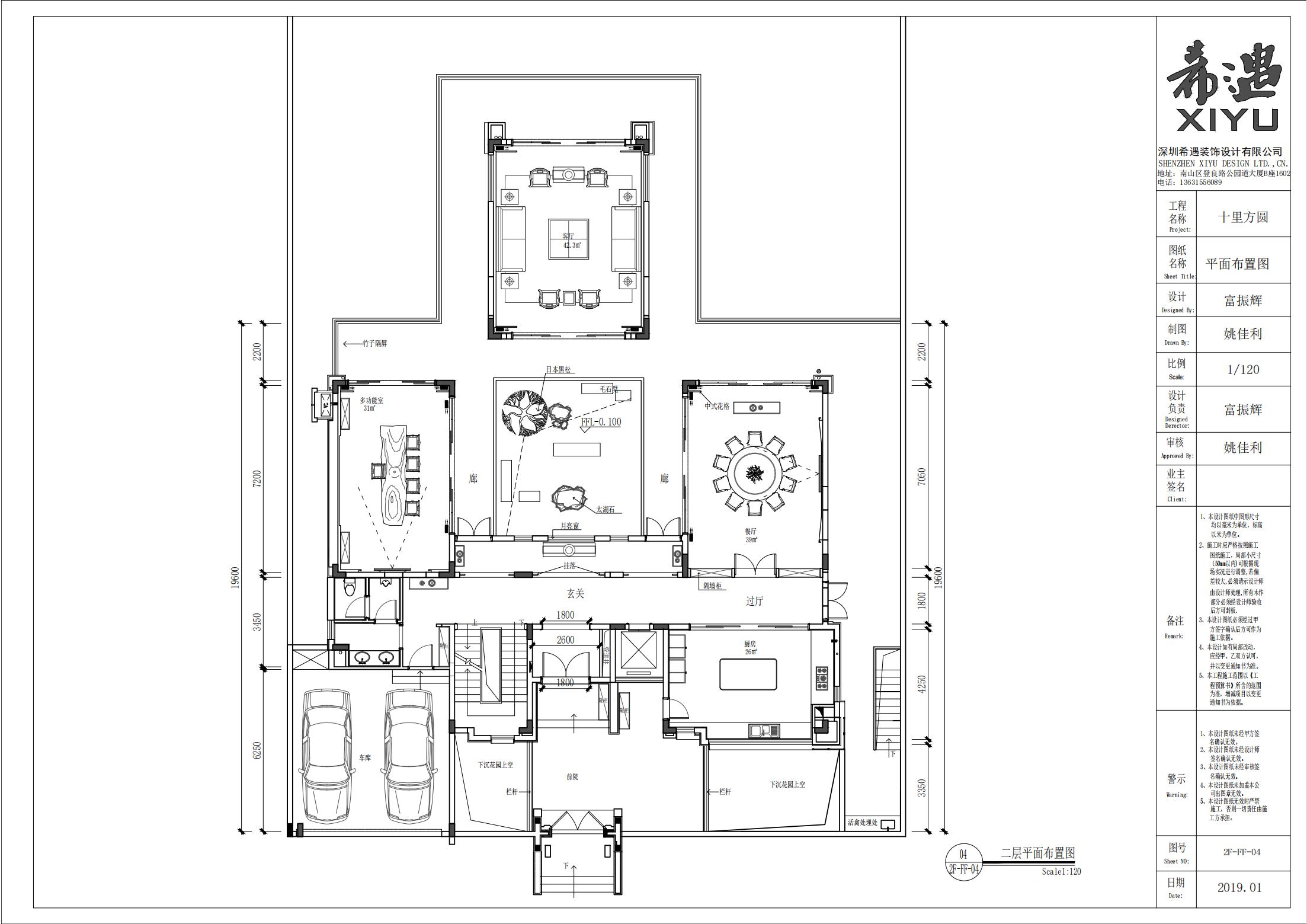
  • 天地有大美而不言 四时有明法而不议 万物有理而不说 —— 庄子 本案位于广东江门,设计灵感来源于中国传统四合院京派设计,旨在创建一所大的合院:追溯祖先维系家族亲情传承,重归三世同堂、四世同堂乃至五六世同堂的重要场所。 中国传统尊老敬长的伦理纲常在合院的主次关系上尤显重要,因此在本案空间设计上,中轴线上高大的是威严尊贵的正房,两侧配房则退到附属位置,合院以北为尊“坐坎朝离”的对称格局与风水要求正好相合,四水归堂,天人合一的格局更是给人一种精神上的满足感。 该住宅的中庭院是本案设计核心,以罗汉松及太湖石来搭配体现中式符号,石丑而文,松青而寿的文化特征彰显中式传统院落式的特点。四周屋檐外挑,雨水穿过便形成“四水归堂”的风水寓意,而仰望天空观星赏月便形成了“天圆地方”“天人合一”的最佳格局。 市井宅院风水有书云:“一层街衢为一层水,一层墙屋为一层砂,门前街道即是明堂,对面屋宇即为案山。”在大宅的设计营造中突岀传统工艺尊循“虽则尘世喧嚣,唯其工匠肃静,古制有法法不容乱,手艺走心心若止水。”的匠人精神。 考虑到朝向风水格局与设计的整体性,围墙角按古制需设“泰山石敢当”起化煞的风水作用,但古法刻字与整体不合,便用一块自然天成的泰山石立在角落既起风水作用又是景观石。 观湖会客厅是房子的主要空间,整块落地大玻璃使观景一览无余,室内空间较高,斜屋顶木结构仿古梁架结构融合中式家具的氛围,体现了传统中堂的效果,四周的墙面采用王希孟的作品《千里江山图》来体现宋韵遗风。 中餐厅方正的空间圆天花对应圆桌体现天圆地方,圆融通达的传统理念,中式博古架陈列艺术展,对应主墙的青绿手绘山水画。 玄关过道透过窗户可看到外景太湖石,体现花好月圆、石来运转的美好寓意,过廊天花木结构体现传统建筑的结构美,中式窗棂体现传统文化的艺术韵味。 湖边后花园围绕一、二层的孩子私塾及正厅,四周均采用7米长整块落地玻璃,花园直接映入眼帘,用极简的装饰手法体现空间;用作孩子们读书、观影、娱乐的地方,两侧做满书架,放满书形成文化氛围,配上大屏幕,可以功能随时转换。 多功能室实为品茗喝茶景观的空间,新中式茶台背景是设计师书法《心经》体现禅茶一味的人生哲学思想。 主卧空间把阳台扩到室内,增大面积同时与湖景更近一步,整块落地大玻璃观景效果更佳,真丝手绘刺绣背景,更显主人的品质。 回廊可俯看中庭,形成空间的上下连动关系,雨中漫步时,有一种“昨夜雨疏风骤,浓睡不消残酒,试问卷帘人,却道海棠依旧”的感觉。 层顶露台是观湖景的最佳位置,用玻璃护栏替代原实体墙以最佳角度观看湖景,白天看湖景、夜晚观星象,地面高差形成错落感配以夜光灯很好的发挥露台自由浪漫的实用性。
  • 图片
  • 图片
  • 图片
  • 图片
  • 图片
  • 图片
  • 图片
  • 图片
  • 图片
  • 图片
  • 图片
  • 图片
  • 图片
  • 图片
  • 图片
  • 图片
  • 图片
  • 图片
  • 图片
  • 图片
  • 图片
  • 图片
  • 图片
  • 图片
  • 图片
  • 图片
  • 图片
  • 图片
  • 图片
  • 图片
  • 图片
  • 图片
  • 图片
  • 图片
  • 图片
  • 上一个 下一个
    《金腾奖优秀作品年鉴》 私宅丨地产丨餐饮丨酒店丨办公丨商业丨公共丨产品丨公益丨人气 jintengAWARD(小金_金腾奖组委会) 广州市海珠区琶洲大道68号华新中心21楼
    金腾奖视频号 金腾奖小红书号 监制:闫虹
    统筹:吴佳佳
    运营:朱倩仪 王赫萱 张芷莹 胡岚恩 小金
    新媒体:王贝贝 严洁 侯乐 鹅姐
    经纪:刘译遥 石征 曹凯月
    技术:张桐 黄天佑
    最终解释权归金腾奖主办方所有