Art and home
作品详情
  • Details of the work 标题横线
    头像或者logo
    图片 蒋志强
    城市:无锡
    公司: 江苏共生共合工业设计
    参赛作品: 艺术·家
    空间类型:公寓(150㎡以下)
    个人/公司简介:
    设计理念:生活追求美好 设计发掘美好 曾获奖项:第十三届亚洲设计学年奖室内设计空间最佳创意奖 IDS师徒汇优秀奖 2017中国建筑装饰协会CBDA住宅空间软装陈设奖 2018金外滩奖入围奖 无锡家乡好设计十佳设计师 2021筑巢奖优秀奖 2020-2021TOPDESIGN100中国设计头条年鉴榜年度优秀设计项目 江南设计50榜入选设计师 2021/2023金堂奖年度优秀作品奖
    设计说明 | Design Instruction
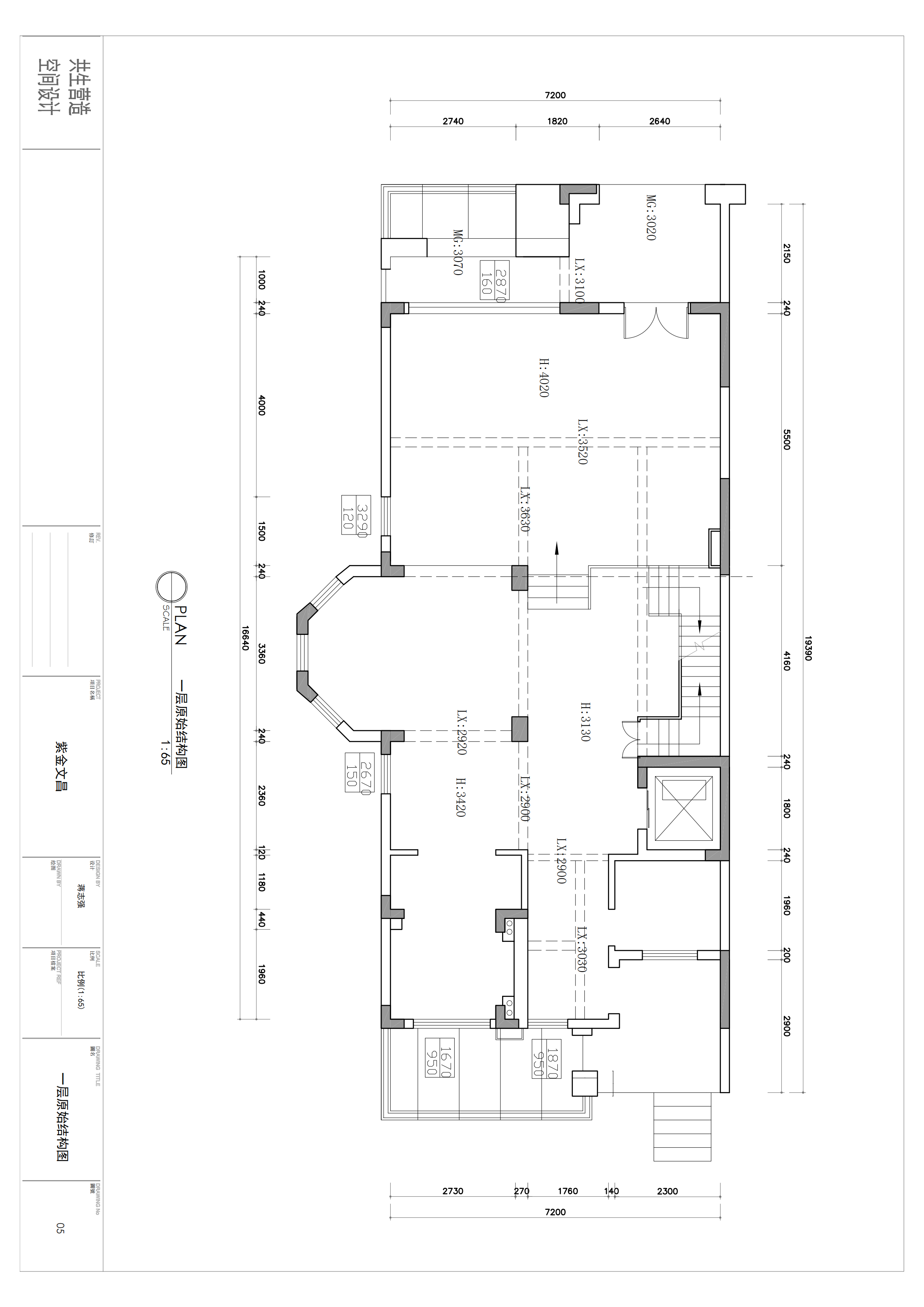
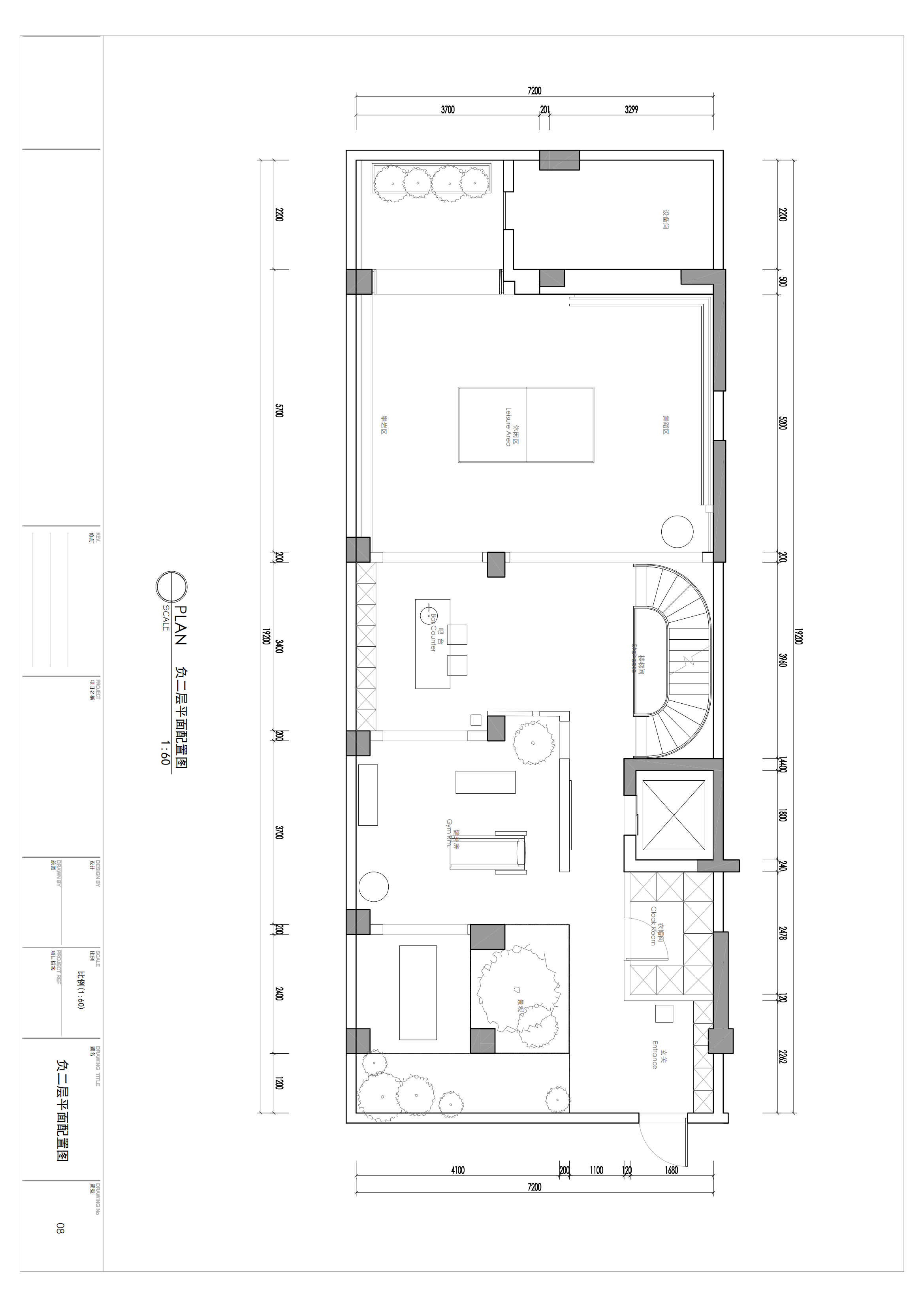
  • 本案是艺术家的家,设计上更多注重生活的体验和艺术空间再塑造,尽可能的以自然的状态,留白,给业主和家人生活带来更多体验和发挥的空间。 设计上没有刻意定义一个风格,更多的是创造自然的氛围,功能布局合理后,材质上贴近自然,不刻意做造型背景,多以自然为背景。没有做的很满,把更多的空间留给业主再创造。 空间布局上多处运用挑空和穿插的手法,再地下室采光天井处造景并挑空,为旁边的健身房,门厅和楼上的茶室棋牌室提供更自然的场景。攀岩墙的设计也是贯穿两层的另一道风景线。 材料以贴近自然的材质为主,主要运用胡桃木和水泥涂料作为空间的点缀,以白墙作为基底,留白给业主布置艺术画作。 设计时与业主进行了充分的探讨,施工落地过程没有做任何改变。落地后使用也如设计之初构想的一样,所有场景均得到实现,业主对此也是非常满意
  • 图片
  • 图片
  • 图片
  • 图片
  • 图片
  • 图片
  • 图片
  • 图片
  • 图片
  • 图片
  • 图片
  • 图片
  • 图片
  • 图片
  • 图片
  • 图片
  • 图片
  • 图片
  • 图片
  • 图片
  • 图片
  • 图片
  • 图片
  • 图片
  • 图片
  • 图片
  • 图片
  • 图片
  • 图片
  • 图片
  • 图片
  • 图片
  • 图片
  • 图片
  • 图片
  • 图片
  • 图片
  • 图片
  • 图片
  • 图片
  • 图片
  • 图片
  • 图片
  • 图片
  • 图片
  • 图片
  • 上一个 下一个
    《金腾奖优秀作品年鉴》 私宅丨地产丨餐饮丨酒店丨办公丨商业丨公共丨产品丨公益丨人气 jintengAWARD(小金_金腾奖组委会) 广州市海珠区琶洲大道68号华新中心21楼
    金腾奖视频号 金腾奖小红书号 监制:闫虹
    统筹:吴佳佳
    运营:朱倩仪 王赫萱 张芷莹 胡岚恩 小金
    新媒体:王贝贝 严洁 侯乐 鹅姐
    经纪:刘译遥 石征 曹凯月
    技术:张桐 黄天佑
    最终解释权归金腾奖主办方所有