Xuzhou Vanke Wu Lounge Villa
作品详情
  • Details of the work 标题横线
    头像或者logo
    图片 明德设计
    城市:珠海
    公司:明德设计
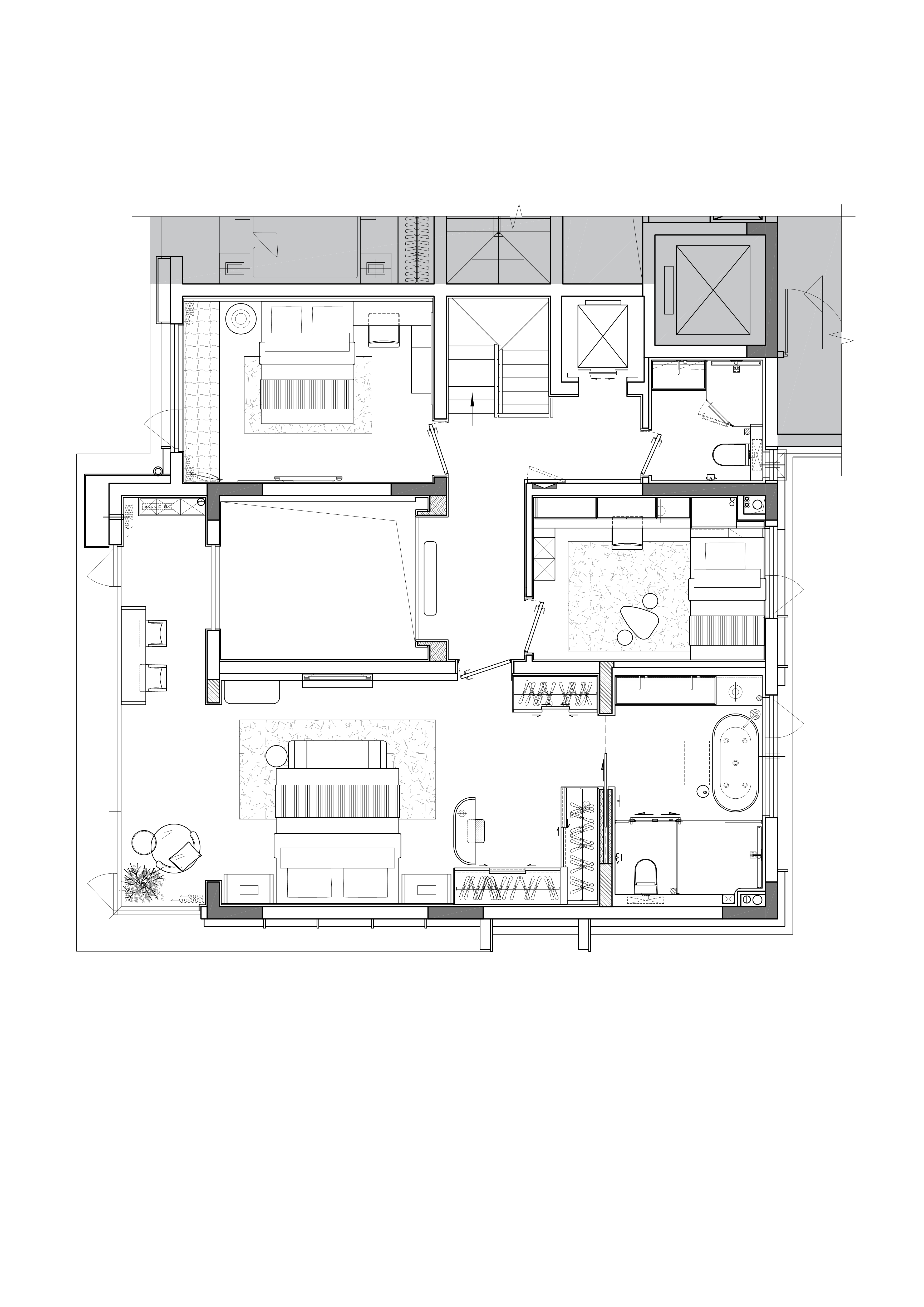
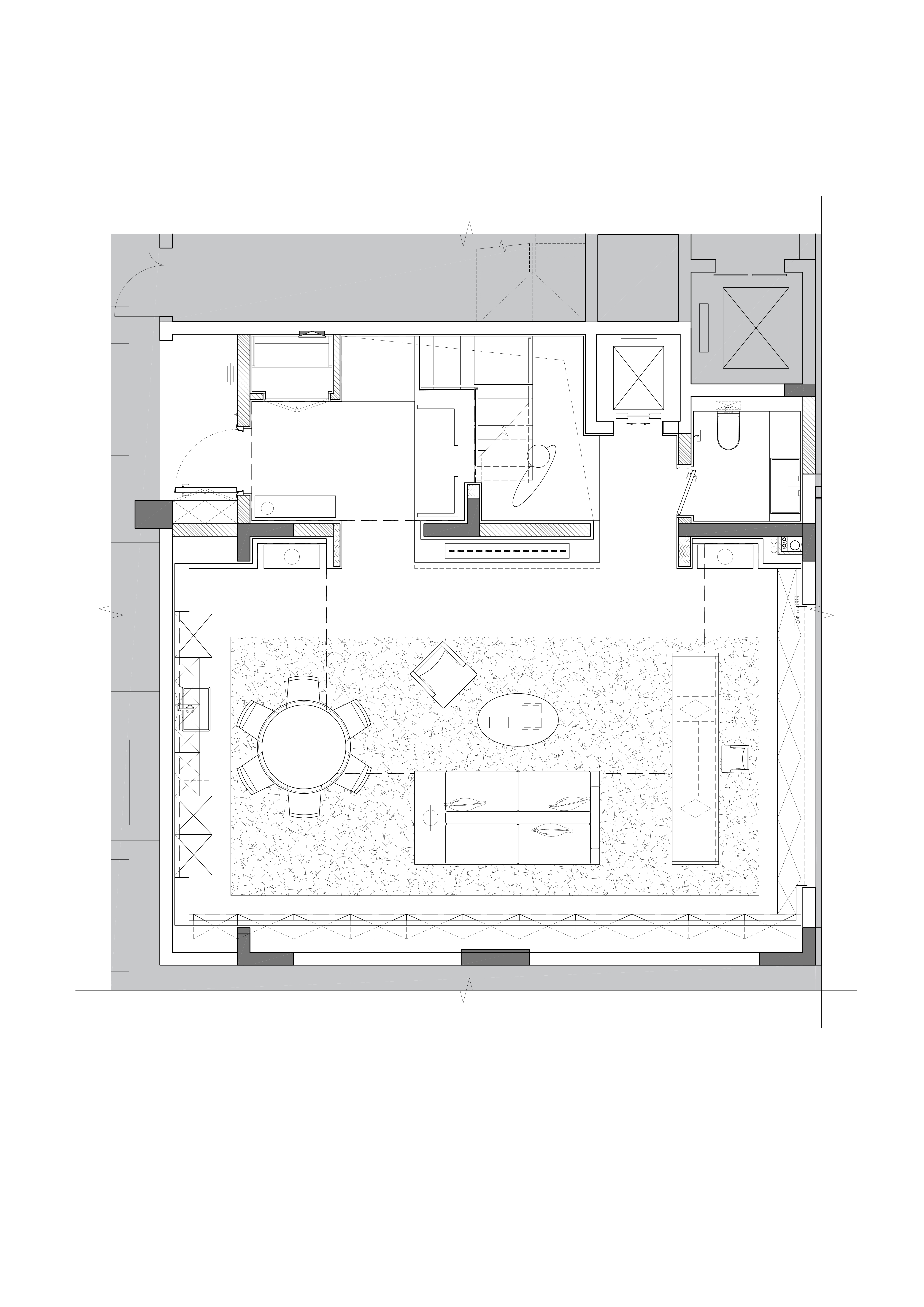
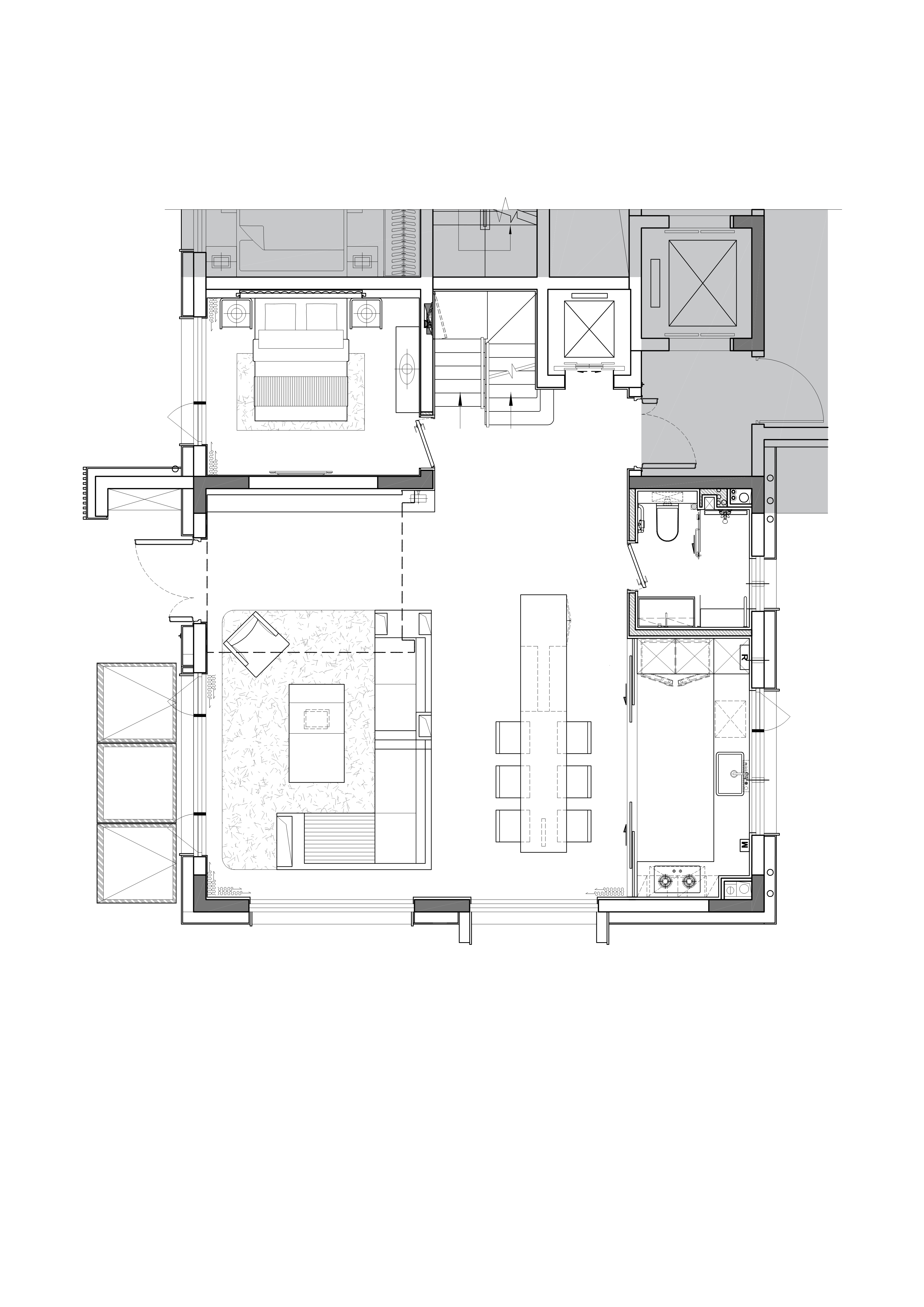
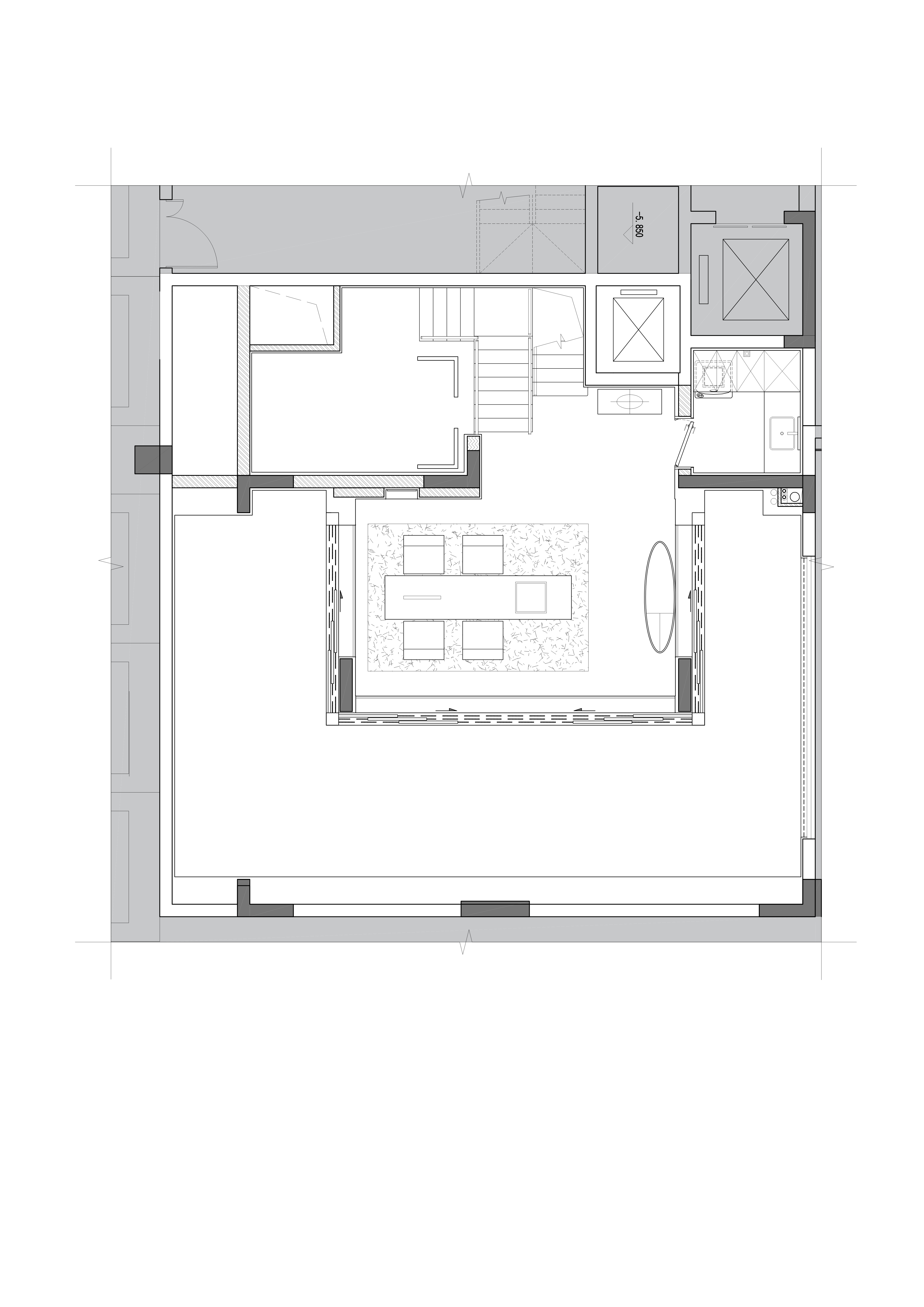
    参赛作品: 徐州万科吾山叠墅
    空间类型:公寓(150㎡以下)
    个人/公司简介:
    明德设计由王大成先生于1997年创立,秉持“以精诚至精深”的匠心精神,历经26年的沉淀,建立了室内设计、软装设计、精工制造、视效创意与制造的完整设计体系。 明德总部位于珠海,在深圳、上海、成都、郑州设有分公司。明德设计拥有近三百人的设计梯队及系统性人才,设计成员背景多元化,以国际化视野为地产、商业、办公、酒店、教育、文旅、度假等提供综合类设计及咨询服务。
    设计说明 | Design Instruction
  • 何谓云隐?“小隐于野,大隐于市,是谓云隐。”明德设计新作徐州万科 · 吾山叠墅项目,以「隐」「韵」「归」为主题浓缩,体现传统结构形式的现代演绎的同时,构筑一个雅致干净的气质空间。 设计整体通过光与影的变幻捕捉,来抒发自然与雅趣兼具的山野隐逸情怀。在空间形态构建上力求还原宋时雅韵,以内敛沉稳的传统文化为出发点,融入现代设计语言,营造传统与现代、拙野与舒朗、自然与灵动的交互之感,为现代空间注入凝练唯美的中国古典情韵。
  • 图片
  • 图片
  • 图片
  • 图片
  • 图片
  • 图片
  • 图片
  • 图片
  • 图片
  • 图片
  • 图片
  • 图片
  • 图片
  • 图片
  • 图片
  • 图片
  • 图片
  • 图片
  • 图片
  • 上一个 下一个
    《金腾奖优秀作品年鉴》 私宅丨地产丨餐饮丨酒店丨办公丨商业丨公共丨产品丨公益丨人气 jintengAWARD(小金_金腾奖组委会) 广州市海珠区琶洲大道68号华新中心21楼
    金腾奖视频号 金腾奖小红书号 监制:闫虹
    统筹:吴佳佳
    运营:朱倩仪 王赫萱 张芷莹 胡岚恩 小金
    新媒体:王贝贝 严洁 侯乐 鹅姐
    经纪:刘译遥 石征 曹凯月
    技术:张桐 黄天佑
    最终解释权归金腾奖主办方所有