Oujiang Jiayuan
作品详情
  • Details of the work 标题横线
    头像或者logo
    图片 金汉斌 橙设传媒特约推荐
    城市:温州
    公司: 温州聚伟建筑装饰设计有限公司
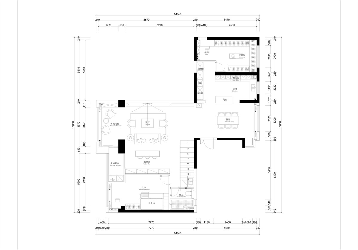
    参赛作品: 瓯江嘉园
    空间类型:公寓(150㎡以下)
    个人/公司简介:
    设计理念:设计其实就是一种沟通 荣誉 2022年法国双面神GPDP AWARD国际设计奖 2022年芒果奖全国TOP100 2022年金住奖温州十大居住空间设计师 2022年红棉设计奖最美阳台空间设计 40UNDER40 |2020-2021中国(温州)设计杰出青年 40UNDER40 |2021-2022 中国(温州)设计杰出青年 40UNDER40 |2022-2023中国(温州)设计杰出青年 2022年日本东京BAMBOO EXPO 空间设计作品奖 2021-2022中国家装设计百强人物 2021金堂奖年度杰出住宅公寓设计 2021-2022未来空间智装师TOP100
    设计说明 | Design Instruction
  • 1.需求:原来厨房偏小收纳少 解决:拆边墙增加厨房双动线增加吧台 并且在过道增加高柜收纳 2.客厅偏小,生活阳台晒衣区不美观 解决:拆除客厅后面的墙体把打开视野落地窗视野全部展示让公共部分通透,并采用玻璃砖做隔断不遮挡光线 4.收纳储物要求多 解决:空间增设收纳柜并融入空间,同时空间做了一下大小柜让空间收纳分类归纳,放弃原来的储藏室找不到东西的问题。 5.楼梯独特不喜欢传统样式 解决:楼梯采用虚实隔断并采用汽车漆色彩和空间统一
  • 图片
  • 图片
  • 图片
  • 图片
  • 图片
  • 图片
  • 图片
  • 图片
  • 图片
  • 图片
  • 图片
  • 图片
  • 图片
  • 图片
  • 图片
  • 图片
  • 图片
  • 图片
  • 图片
  • 图片
  • 图片
  • 图片
  • 上一个 下一个
    《金腾奖优秀作品年鉴》 私宅丨地产丨餐饮丨酒店丨办公丨商业丨公共丨产品丨公益丨人气 jintengAWARD(小金_金腾奖组委会) 广州市海珠区琶洲大道68号华新中心21楼
    金腾奖视频号 金腾奖小红书号 监制:闫虹
    统筹:吴佳佳
    运营:朱倩仪 王赫萱 张芷莹 胡岚恩 小金
    新媒体:王贝贝 严洁 侯乐 鹅姐
    经纪:刘译遥 石征 曹凯月
    技术:张桐 黄天佑
    最终解释权归金腾奖主办方所有