sunset house
作品详情
  • Details of the work 标题横线
    头像或者logo
    图片 黄君虹
    城市:厦门
    公司: ARKITAG STUDIO
    参赛作品: 落日·法式浪漫之家
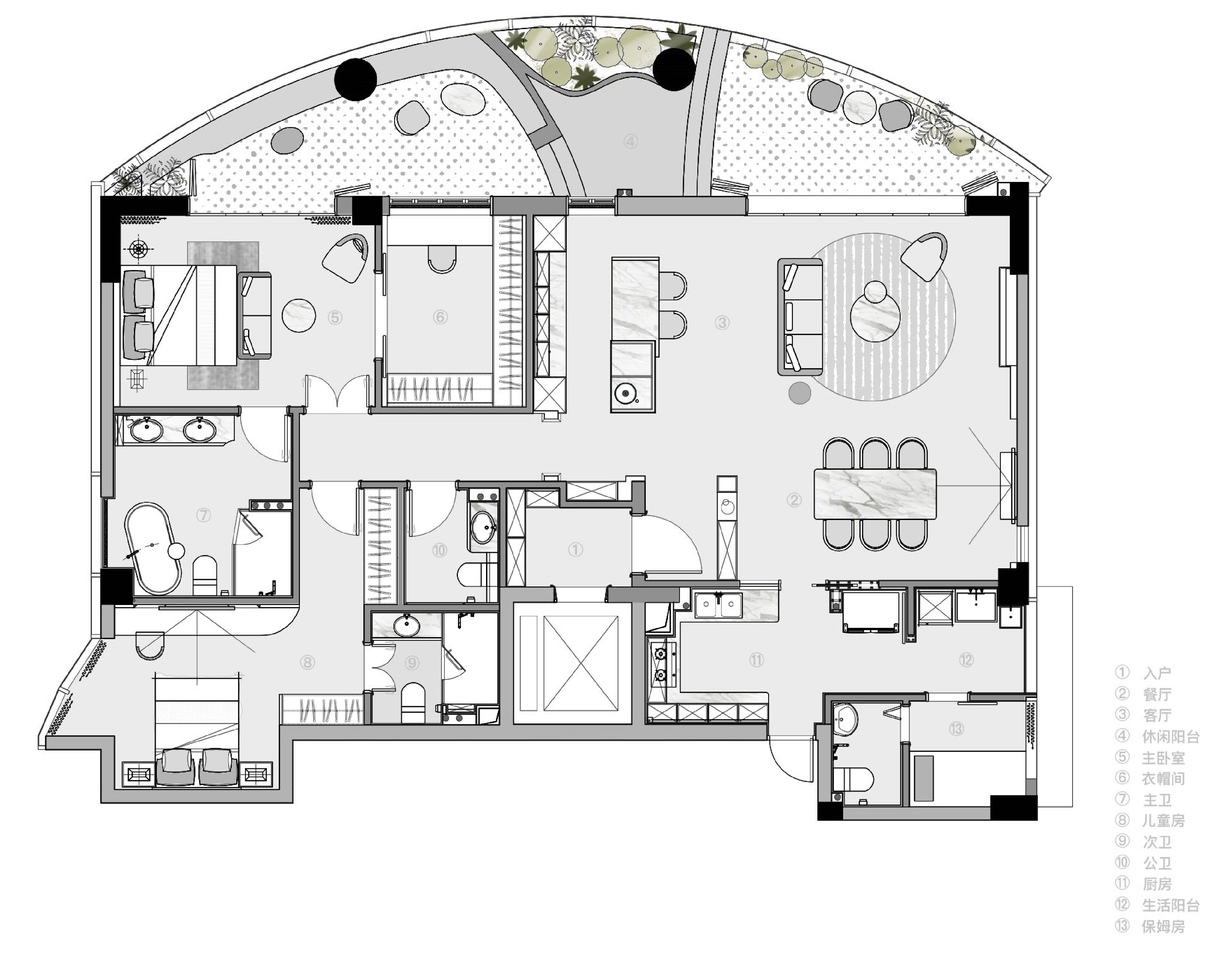
    空间类型:公寓(150㎡以下)
    个人/公司简介:
    ARKITAG STUDIO成立于2017年,同年联合创办厦门及首尔工作室。 我们专注建筑、室内、景观和软装的设计。 建筑与室内专业出身的我们,依托传统与现代,关注当下和在地,关注环境与人的共生,追求设计的本质,为业主提供设计与工程的最佳方案,更专注于项目的落地和真实的体验。
    设计说明 | Design Instruction
  • 项目保留法式那些浪漫风情的标志性符号仍极有辨识度,“融合”成了新的主题,细节的雕刻,让法式依然不动声色地释放吸引力和美的能量。 这被定义成”家”的场所,每一件物件的选择都有它独有的隐喻和日常性,当设计风格不再被定义所限制的时候,揉合在一起的场景所进发的情愫葛延开来,我们对这有着特殊含义的场所便有了新的情感需求。 法式轻奢褪去了传统法式的繁复、冗杂。项目整体空间以浅色为主色调,加上轻快的色彩搭配,金属、石材、丝绒、布艺等原色,将古典美融入现代美学中。 奶油色为主调的公共空间,简约的线条配以意大利B&B Tufty-time蓝色沙发,白色的大理石壁炉,在客厅中扮演中优雅端庄的角色。柔美线条与硬朗材质的搭配,营造出现有的混搭空间。 室内的公共空间采用大面积的鱼骨拼木地板,不同角度感受像光影下会跳动的音符。西餐区椭圆的宝格丽石材餐桌摒弃多余装饰,营造简而奢的美感。功能与仪式感兼顾。 家是情感的容器,也是存储人生当下这一时光的见证者。
  • 图片
  • 图片
  • 图片
  • 图片
  • 图片
  • 图片
  • 图片
  • 图片
  • 图片
  • 图片
  • 图片
  • 图片
  • 图片
  • 图片
  • 图片
  • 图片
  • 图片
  • 图片
  • 图片
  • 图片
  • 图片
  • 图片
  • 图片
  • 图片
  • 图片
  • 图片
  • 图片
  • 图片
  • 图片
  • 图片
  • 图片
  • 图片
  • 图片
  • 图片
  • 图片
  • 图片
  • 图片
  • 图片
  • 图片
  • 图片
  • 图片
  • 图片
  • 图片
  • 上一个 下一个
    《金腾奖优秀作品年鉴》 私宅丨地产丨餐饮丨酒店丨办公丨商业丨公共丨产品丨公益丨人气 jintengAWARD(小金_金腾奖组委会) 广州市海珠区琶洲大道68号华新中心21楼
    金腾奖视频号 金腾奖小红书号 监制:闫虹
    统筹:吴佳佳
    运营:朱倩仪 王赫萱 张芷莹 胡岚恩 小金
    新媒体:王贝贝 严洁 侯乐 鹅姐
    经纪:刘译遥 石征 曹凯月
    技术:张桐 黄天佑
    最终解释权归金腾奖主办方所有