DUDONGBEISHU
作品详情
  • Details of the work 标题横线
    头像或者logo
    图片 吴振宁
    城市:北京
    公司: 本臻(北京)空间设计有限公司
    参赛作品: 独栋别墅
    空间类型:公寓(150㎡以下)
    个人/公司简介:
    首席设计师:吴振宁 进修于清华大学美术学院 从业:17年 著名室内设计师 中国建筑装饰协会注册高级室内建筑师 中国室内装饰设计协会高级室内设计师 CEAC室内设计工程师资格证书 擅长风格:新中式 /美式 /法式 /轻奢现代 /新古典等风格。 曾所获荣誉: 2007年亚太区室内设计大奖赛入围奖。 2008年获中国十佳住宅设计师。 2009年瑞丽家居家装优秀设计师称号。 2010年获得家居美化大赛优秀作品奖。 2012年荣获筑巢奖第五届中国国际空间环艺艺术设计大赛提名奖。 2013-2014年荣获中国国际建筑装饰及设计艺术博览会年度室内设计百强人物。 2015年筑巢奖优秀作品奖。   项目名称: 北京项目 知名影视演员孙茜(《甄嬛传》槿汐姑姑扮演者)北京天鹅堡别墅 /北京万城华府 /北京碧水庄园 /北京东方普罗旺斯 /北京西山美庐 /北京保利垄上 /北京观塘别墅 /北京丽宫 /北京京基鹭府 /北京御汤山 /北京珠江壹千栋 /北京中海尚湖世家 /北京顺驰林溪 /北京温哥华 /北京泰禾红御 /北京金科王府 /北京香山清琴 /北京香江别墅 /北京金科帕提欧 /北京中国院子 /北京龙湾别墅 /北京优山美地别墅 /北京紫玉山庄别墅 青岛项目: 青岛欢乐海湾(东海药业董事长) /青岛颐和星苑 /青岛保利海上罗兰(东海岛药业董事长) /青岛大溪谷 /青岛建邦听海 /青岛恒大金沙滩 /青岛小镇 /青岛嘉凯城翡翠郡 /青岛龙湖和院 /青岛卓越蔚蓝群岛 /青岛湾海墅 /青岛骊山国际 /青岛龙湖原墅 其他地区: 三亚湾鲁能别墅 /呼和浩特东岸国际 /天津盘龙谷 /天津首创国际半岛等
    设计说明 | Design Instruction
  • ”每个设计作品都是一个故事,设计的核心是一种创造行为,住所常被喻作人生的港湾,是解放身心的场所,切合生活实际的设计能营造舒适的私人空间,还原房子是服务于人的本质。”
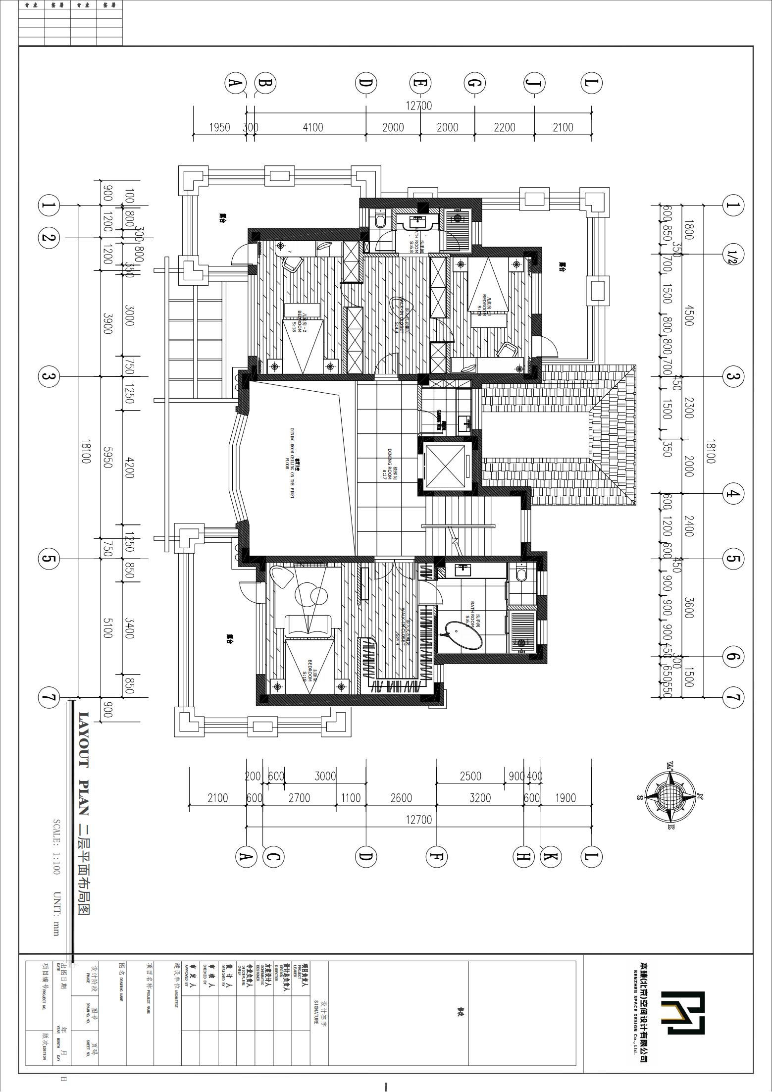
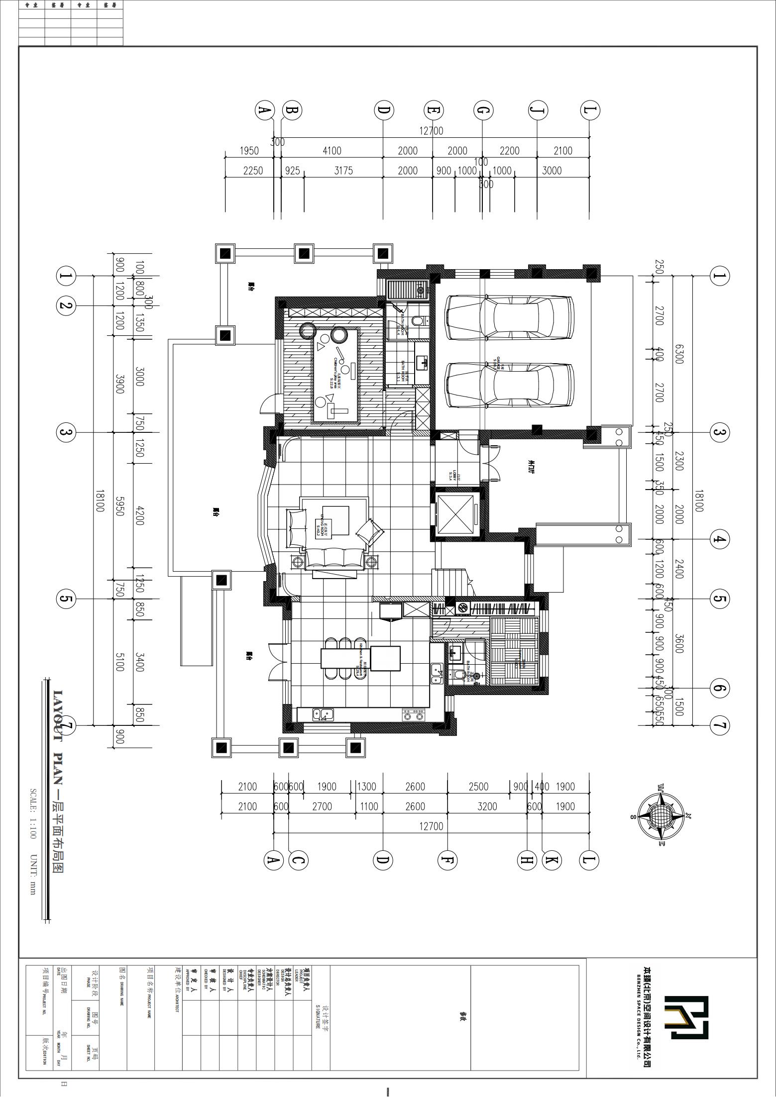
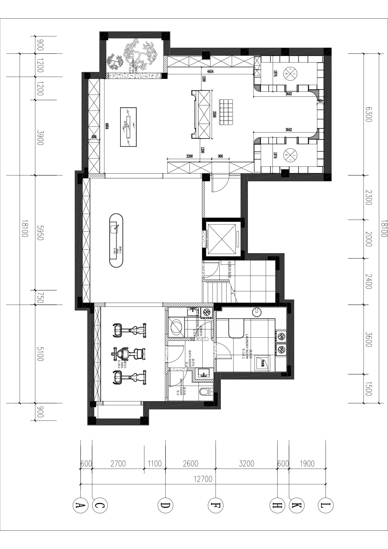
  • 图片
  • 图片
  • 图片
  • 图片
  • 图片
  • 图片
  • 图片
  • 图片
  • 图片
  • 图片
  • 图片
  • 图片
  • 图片
  • 图片
  • 图片
  • 图片
  • 图片
  • 图片
  • 图片
  • 图片
  • 图片
  • 图片
  • 图片
  • 图片
  • 图片
  • 图片
  • 上一个 下一个
    《金腾奖优秀作品年鉴》 私宅丨地产丨餐饮丨酒店丨办公丨商业丨公共丨产品丨公益丨人气 jintengAWARD(小金_金腾奖组委会) 广州市海珠区琶洲大道68号华新中心21楼
    金腾奖视频号 金腾奖小红书号 监制:闫虹
    统筹:吴佳佳
    运营:朱倩仪 王赫萱 张芷莹 胡岚恩 小金
    新媒体:王贝贝 严洁 侯乐 鹅姐
    经纪:刘译遥 石征 曹凯月
    技术:张桐 黄天佑
    最终解释权归金腾奖主办方所有