苏州830㎡极简别墅,居游入画
作品详情
  • Details of the work 标题横线
    头像或者logo
    图片 bk蓝骑士设计
    城市:苏州
    公司:bk蓝骑士设计
    参赛作品: 苏州830㎡极简别墅,居游入画
    空间类型:公寓(150㎡以下)
    个人/公司简介:
    bk蓝骑士设计成立于2013年,公司坐落于苏州市工业园区李公堤四期文化创意街区。公司一直致力于为别墅、大宅提供系统化的设计、施工服务。7年的时间,客户从苏州延展至全国,往期项目包括国宾壹号、铜雀台、海和院、桃花源、御园、湖滨四季、上海文华别墅等。在此期间,为了更好地为客户提供与时俱进的服务,突破传统设计的单一形态,我们采用“主动式建筑”与“系统化设计”双发力,秉持“家居环境、空间才是设计本质”的理念,让项目100%落地,为客户呈现“安全家、健康家、舒适家、节能家、智能家”这般的终极住宅。
    设计说明 | Design Instruction
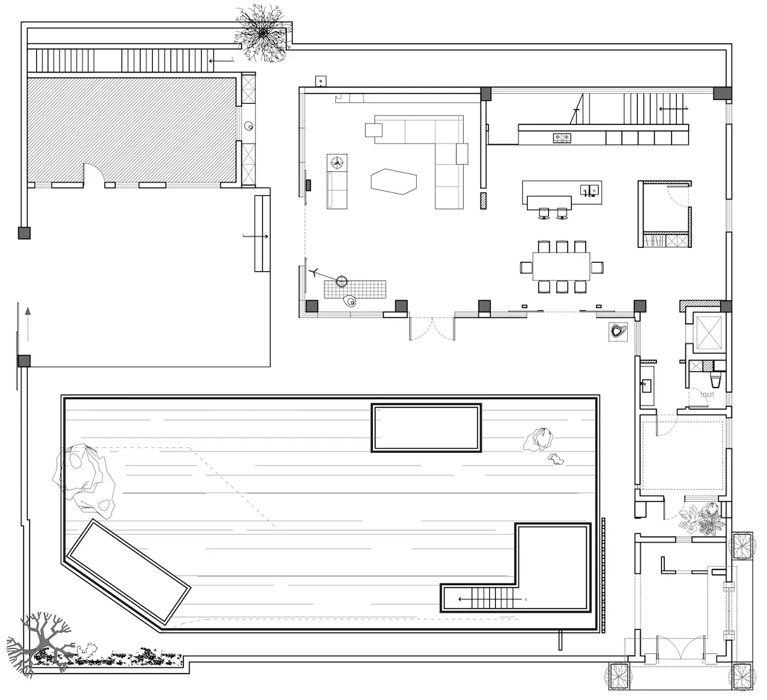
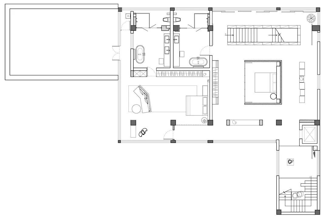
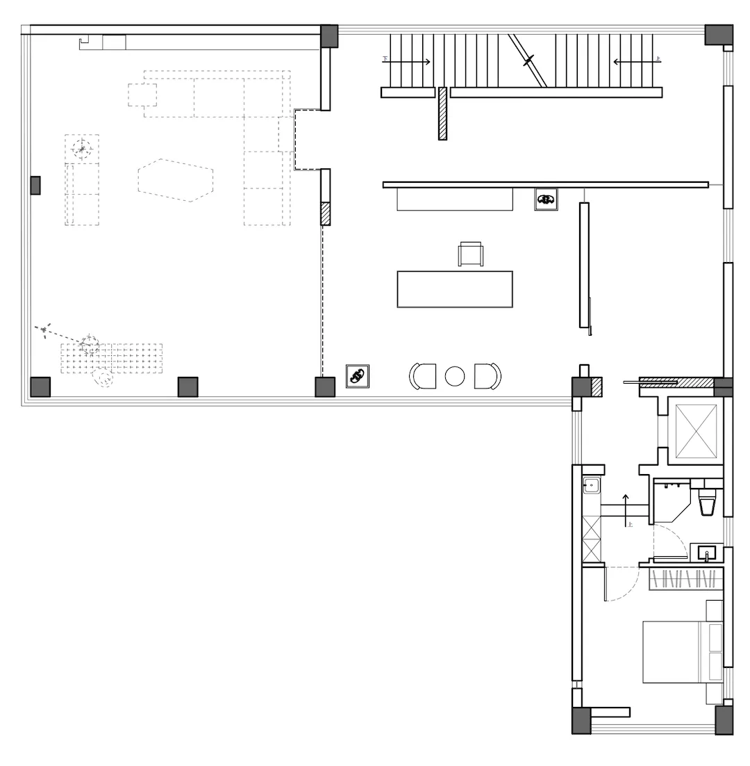
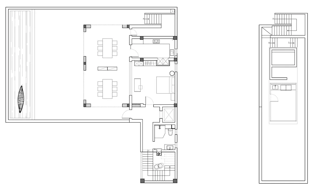
  • 建筑是一个白盒子,屹立在田野间,与周边的江南民居形成强烈的对比,特立独行。初见业主,朴素且睿智,对建筑、园林、古董都有深入研究,颇有心得。作为深耕苏州的设计师,绕不开“园林”,希望把苏州园林的建造设计手法应用到室内平面布局中,设计提案一出来,与业主想要的不谋而合。 “疏密得宜”、“曲折尽致”、“眼前有景”,童寯先生关于园林设计的三点总结,对项目的设计启发巨大。不讨论“具体的传统”或“内在的精神”,也不逐流选择和比较风格,只寻找“什么样的生活更值得过”的答案。 一层有休闲、会客、品茗、鉴赏等功能,类似雅集,多处将原建筑中的板片变成体块,空间被改造得更有建筑感和多重游走的趣味性。 在动线设计上,以创造“游园”体验为底层逻辑,在拆除新建上,跟“悬挑”、“架空”、“穿插”、“片墙”、“体块”等西方建筑的改造手法接近,在空间情绪上,贯彻“少即是多”的理念,“眼前有景”的概念跃然眼前。 原建筑梁位较低,如果下降会加剧压迫感,为了解放天花,改将空调置于背景内,在一层半高处侧面回风。沙发背后的装饰面美观又实用,打开就是收纳柜,临窗部分运用叠级处理和竖形灯线加以修饰。家具与手工定制家具搭配运用,是审美品味点到为止的特写。 二层是书房区、棋牌室、客房,楼梯上来原是一堵实墙,相对压抑,“切洞”加“挑空”后视觉被延伸,赋予二层和一层更多互动。 借游园之名制造出各种“时空的循环”,在体块、片墙、杆件上落笔,将“聚则通阔,散则萦回”作为逻辑起点,人在空间内悠游,时间亦在围绕人流转,使空间变得更富有弹性,更让本质化的实体变得轻盈。 木饰面和定制层板,抒叙了二层书房的简洁。跳出既定的设定,运用片墙穿插的手法,墙不到顶,形成独立的片墙状态,紧密处不觉拥挤,开敞处并非一览无余,疏密有度,张弛得宜。 三层包含主卧、主卫、大露台、多功能房、公卫。楼梯上来做了到顶的书架,多功能房的多种变化会给空间带来多种游走形态。增建一面墙,充分展陈艺术收藏与挂画珍品。 依照维度变化纳入藏书结构,借由透景手法修改了空间的属性,光会从书籍的间隙中穿过,投射到墙上,书的位置变动墙上的光影随之变动,随机流转,定格如画。阳光走廊和精致端景,将自然形态与人文寓意收纳到室内,彰示弦外之音与景外之情。 四层有客房和外卫,通过框架结构、十字结构现浇面与玻璃顶营造户外餐厅,突显一种理想的生活方式与内在节奏。通过楼梯,可抵达洗晒区和汤池区。 “什么样的生活更值得过”,这没有标准答案,正如托尔斯泰所说“选择你所喜欢的,爱你所选择的”。过自己喜欢的生活,就是最好的生活。
  • 图片
  • 图片
  • 图片
  • 图片
  • 图片
  • 图片
  • 图片
  • 图片
  • 图片
  • 图片
  • 图片
  • 图片
  • 图片
  • 图片
  • 图片
  • 图片
  • 图片
  • 图片
  • 图片
  • 图片
  • 图片
  • 图片
  • 图片
  • 图片
  • 图片
  • 图片
  • 图片
  • 图片
  • 图片
  • 图片
  • 图片
  • 图片
  • 图片
  • 图片
  • 图片
  • 图片
  • 图片
  • 图片
  • 图片
  • 图片
  • 图片
  • 图片
  • 图片
  • 图片
  • 图片
  • 图片
  • 图片
  • 图片
  • 图片
  • 图片
  • 图片
  • 图片
  • 图片
  • 图片
  • 图片
  • 图片
  • 图片
  • 图片
  • 图片
  • 图片
  • 图片
  • 图片
  • 图片
  • 图片
  • 图片
  • 图片
  • 图片
  • 图片
  • 图片
  • 图片
  • 图片
  • 图片
  • 图片
  • 图片
  • 图片
  • 图片
  • 图片
  • 上一个 下一个
    《金腾奖优秀作品年鉴》 私宅丨地产丨餐饮丨酒店丨办公丨商业丨公共丨产品丨公益丨人气 jintengAWARD(小金_金腾奖组委会) 广州市海珠区琶洲大道68号华新中心21楼
    金腾奖视频号 金腾奖小红书号 监制:闫虹
    统筹:吴佳佳
    运营:朱倩仪 王赫萱 张芷莹 胡岚恩 小金
    新媒体:王贝贝 严洁 侯乐 鹅姐
    经纪:刘译遥 石征 曹凯月
    技术:张桐 黄天佑
    最终解释权归金腾奖主办方所有