Living with the river, simple and orderly
作品详情
  • Details of the work 标题横线
    头像或者logo
    图片 祝宁宁 室内设计联盟特约推荐
    城市:衢州
    公司: 独立设计师
    参赛作品: 伴江而居,简致有序
    空间类型:公寓(150㎡以下)
    个人/公司简介:
    一位空间设计师的自我介绍 1.About me 祝宁/室内设计师 全案设计师 90后室内设计师从事室内设计六年时间,一直在这条路上探索学习成长。 2.设计想法 空间不受限定,想法不会拘束,设计师偏好的风格不同,但是家装私宅设计还是要“以人為本”家是自己的肯定是要住的舒服,在这样的基础上去追求设计想法落地,接受新事物,有效沟通,实际落地。 3.职业规划及未知设计道路思考 在各行各业越来越卷的情况下,只有不断学习接受积累才能不被行业淘汰,设计的最初还是要一个好的审美目光,能看到不一样的点,从学习到创新到施工落地,每个阶段是怎么才能更有效率的走下来这是一个点的思考,从一位工具人变成一个创作者。
    设计说明 | Design Instruction
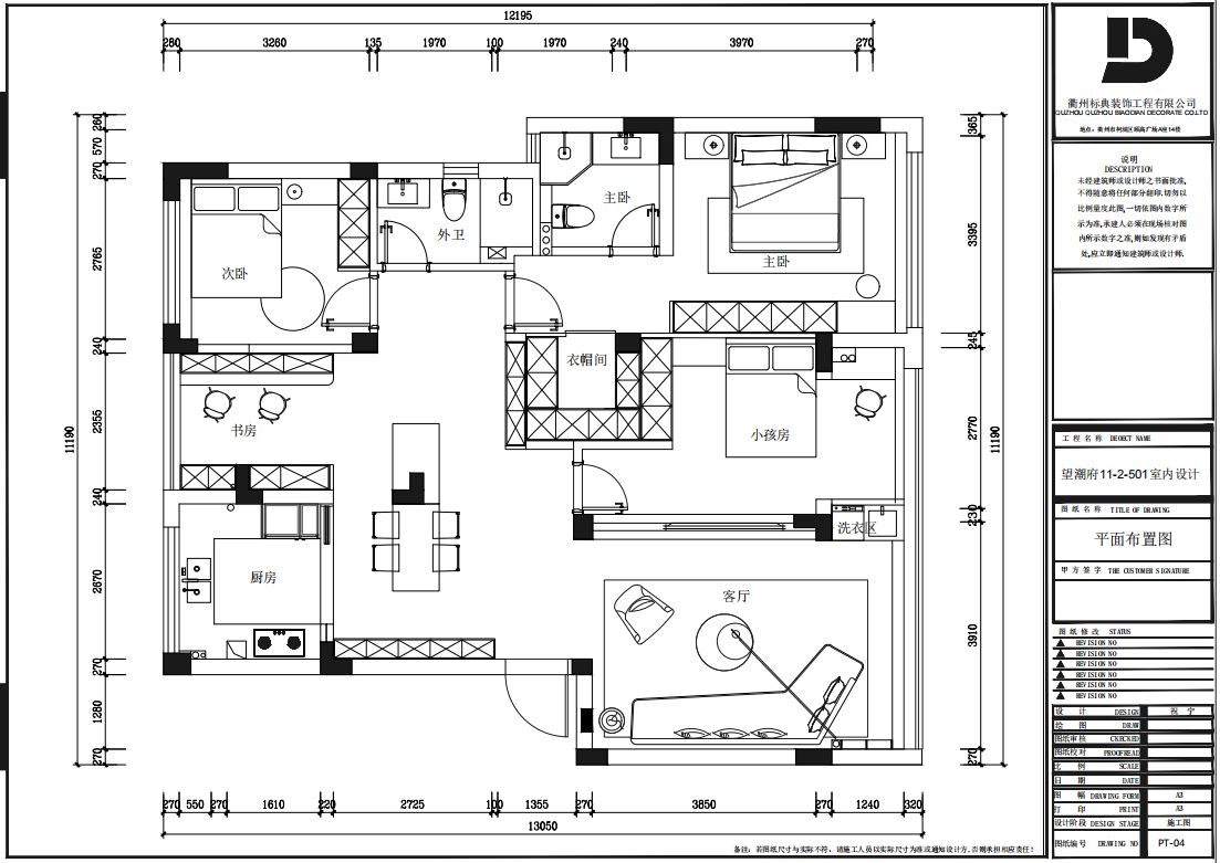
  • “材料相互作用,并显现出各自的光芒,因此材料的组合就带来一些独特的东西。材料是无穷无尽的。”--彼得 卒姆托 松弛感当是极简设计的魅力所在。除了基础的家具家电,客厅的设计尽可能避免冗杂的堆砌,简约的线条勾勒充满遐想的意境,留白的手法打造视觉与感受上的极度舒适。别样的平静感,让自己在快节奏的生活里留有呼吸的气口。我们一如既往的寻求将空间缩减到最基本的形式去满足“人”对空间需求,而不是一味的去迎合空间。 本案业主是一名白衣天使,平常工作比较繁忙,所以一开始对接的时候就是要委托我们做全案落地设计,三口之家还有外婆一起居住,所以在原有空间的格局下打通餐厅,减少一个卧室北面朝江,视野最好的房间给了开放式书房,用现代线条去丰富空间感。
  • 图片
  • 图片
  • 图片
  • 图片
  • 图片
  • 图片
  • 图片
  • 图片
  • 图片
  • 图片
  • 图片
  • 图片
  • 图片
  • 图片
  • 图片
  • 图片
  • 图片
  • 图片
  • 图片
  • 图片
  • 图片
  • 图片
  • 图片
  • 图片
  • 图片
  • 图片
  • 上一个 下一个
    《金腾奖优秀作品年鉴》 私宅丨地产丨餐饮丨酒店丨办公丨商业丨公共丨产品丨公益丨人气 jintengAWARD(小金_金腾奖组委会) 广州市海珠区琶洲大道68号华新中心21楼
    金腾奖视频号 金腾奖小红书号 监制:闫虹
    统筹:吴佳佳
    运营:朱倩仪 王赫萱 张芷莹 胡岚恩 小金
    新媒体:王贝贝 严洁 侯乐 鹅姐
    经纪:刘译遥 石征 曹凯月
    技术:张桐 黄天佑
    最终解释权归金腾奖主办方所有