保利独墅西岸
作品详情
  • Details of the work 标题横线
    头像或者logo
    图片 季敖
    城市:苏州
    公司: 一贝设计
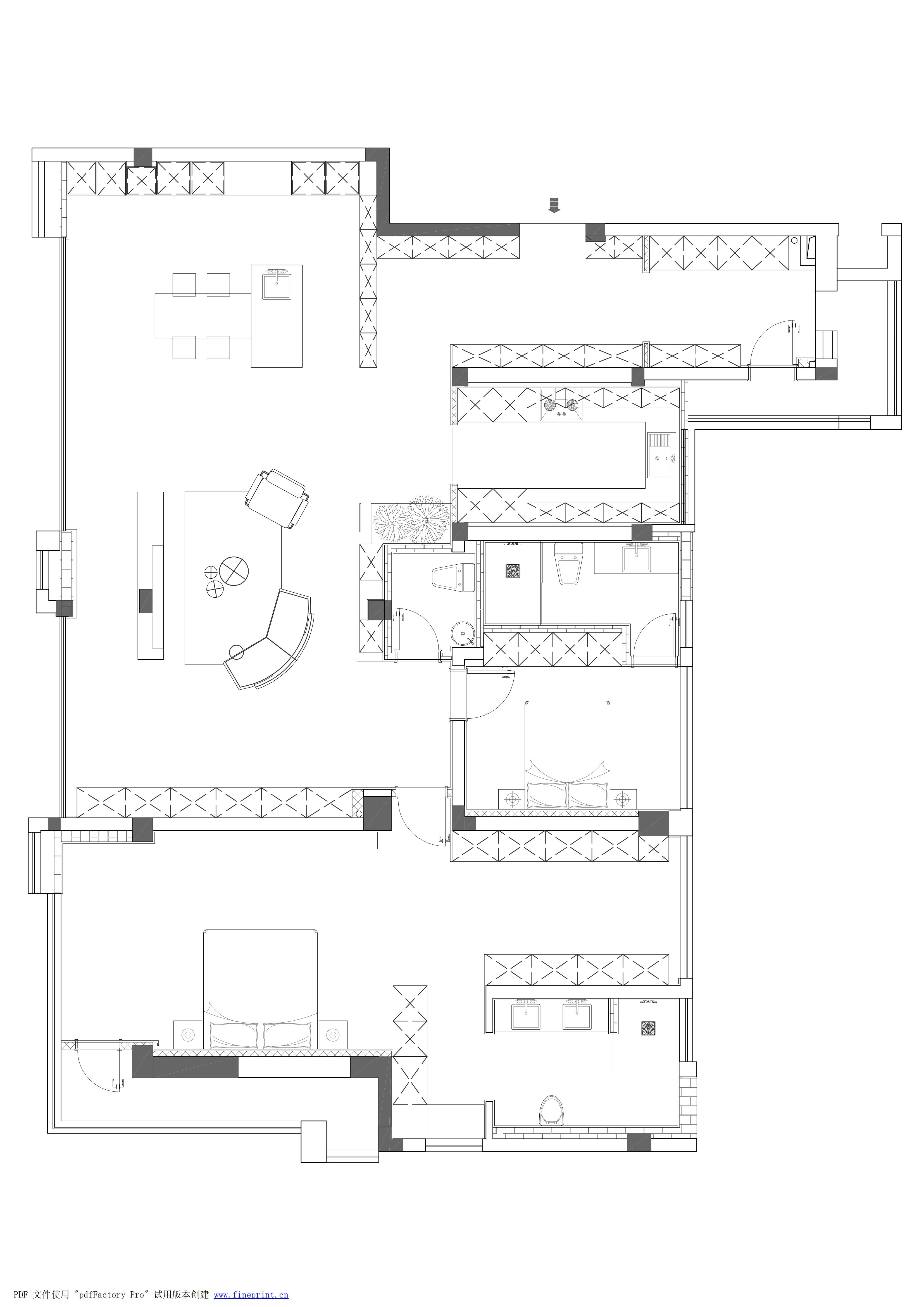
    参赛作品: 保利独墅西岸
    空间类型:公寓(150㎡以下)
    个人/公司简介:
    2019年十一月《简·灰·白》获得江苏省第十四届室内装饰设计大赛-居民住宅室内设计三等奖 2019年十一月《开寇皮肤管理中心》获得江苏省第十四届室内装饰设计大赛-建筑室内设计二等奖 2020年十一月《东方之门住宅设计》获得江苏省第十五届室内装饰设计大赛-住宅室内设计特等奖 2020年十一月《四季新家园住宅设计》获得江苏省第十五届室内装饰设计大赛-住宅室内设计二等奖
    设计说明 | Design Instruction
  • 删繁去简,去伪存真。以塑造简约美为宗旨,灵活运用材质、形体、肌理进行不同情绪空间的塑造,一见纵览全局,再见精细入微。 入户,以绿植造景,给予居者自然、有机的整体感受。移步换景,豁然开朗,开放式的空间层次丰富且充满趣味性。 精心挑选的简约家具呈现慵懒杂志风氛围,引发情感和视觉的舒适体验。 整面落地窗将室内外距离拉近,让空间溶解于自然之中。光彩安静平和漫散开来,目光捕捉,每一瞬间都是风景。 抬高地台打造休闲区,平静空间裹挟着生活的悦然,于静默中亲近更为放松的灵魂。 细节,让空间充满着不可预测的惊喜。纯白电视墙悬浮于主厅之中,为室内注入更多立体形式的设计语言。 运用体块构成和线性语言构造简洁明亮的空间,大面积留白帮助视觉呼吸。 辅以纯黑休闲单椅+透明亚克力茶几进行点缀,让空间产生不一样的审美意趣。 由卧室到衣帽间再至浴室,通过人流动线的规划梳理进行设计,营造出怡然自若的场域。
  • 图片
  • 图片
  • 图片
  • 图片
  • 图片
  • 图片
  • 图片
  • 图片
  • 图片
  • 图片
  • 图片
  • 图片
  • 图片
  • 图片
  • 图片
  • 图片
  • 图片
  • 图片
  • 图片
  • 图片
  • 图片
  • 图片
  • 图片
  • 图片
  • 图片
  • 图片
  • 图片
  • 上一个 下一个
    《金腾奖优秀作品年鉴》 私宅丨地产丨餐饮丨酒店丨办公丨商业丨公共丨产品丨公益丨人气 jintengAWARD(小金_金腾奖组委会) 广州市海珠区琶洲大道68号华新中心21楼
    金腾奖视频号 金腾奖小红书号 监制:闫虹
    统筹:吴佳佳
    运营:朱倩仪 王赫萱 张芷莹 胡岚恩 小金
    新媒体:王贝贝 严洁 侯乐 鹅姐
    经纪:刘译遥 石征 曹凯月
    技术:张桐 黄天佑
    最终解释权归金腾奖主办方所有