Vessel of Purity and Freedom
作品详情
  • Details of the work 标题横线
    头像或者logo
    图片 潘锦秋
    城市:苏州
    公司: 潘锦秋室内设计事务所
    参赛作品: 纯粹与自由的容器
    空间类型:公寓(150㎡以下)
    个人/公司简介:
    潘锦秋设计事务所由潘锦秋先生于2010年在苏州成立,是一家专业从事室内设计的工作室。十余年来,始终坚持现代极简风格,用最精炼、最理性的设计手段去追求这种艺术效果。  部分荣誉  中国注册室内设计师 | 中国室内装饰协会(CIDA)会员 苏州室内设计师协会会员 |「北欧极简」设计语言传导者 潘锦秋室内设计事务所  设计总监 中海胥江府荣获省优工程奖 | 金堂奖住宅十佳奖 "亨特"软装100设计大赛优秀奖 | 金堂奖办公类优秀奖 中国陈设艺术大赛优秀奖 |筑巢奖办公类提名奖 "亨特"软装100设计大赛办公类优秀奖 | 中国室内设计师黄金联赛办公类二等奖 中国室内设计师黄金联赛住宅类二等奖  金堂奖别墅优秀奖 | 室内设计总评榜住宅类金奖 中国大金室内设计大赛金奖 | 中国大金室内设计大赛银奖 受邀德国科隆家具展 受邀德国慕尼黑建材展 <家饰>杂志做个人专访并设计作品刊登杂志  工作室设计作品刊登在《当代设计》杂志专栏
    设计说明 | Design Instruction
  • 大道至简,万物之始。至简是一种被传承已久生活哲学,它剥去了浮华的表象,引导人寻回最原始的自由。 在这座位于常熟的宅邸里,我们能看到“自由”最本真的样子:宅院外有一片开阔的原野,视野不被限制,大有隐世而居的自由、随性。 室内设计融合建筑思维,以框架结构取代砖混结构,进而带动室内光线、布局的变化;化繁为简,弱化边界,打造不被外物所累的自由空间。
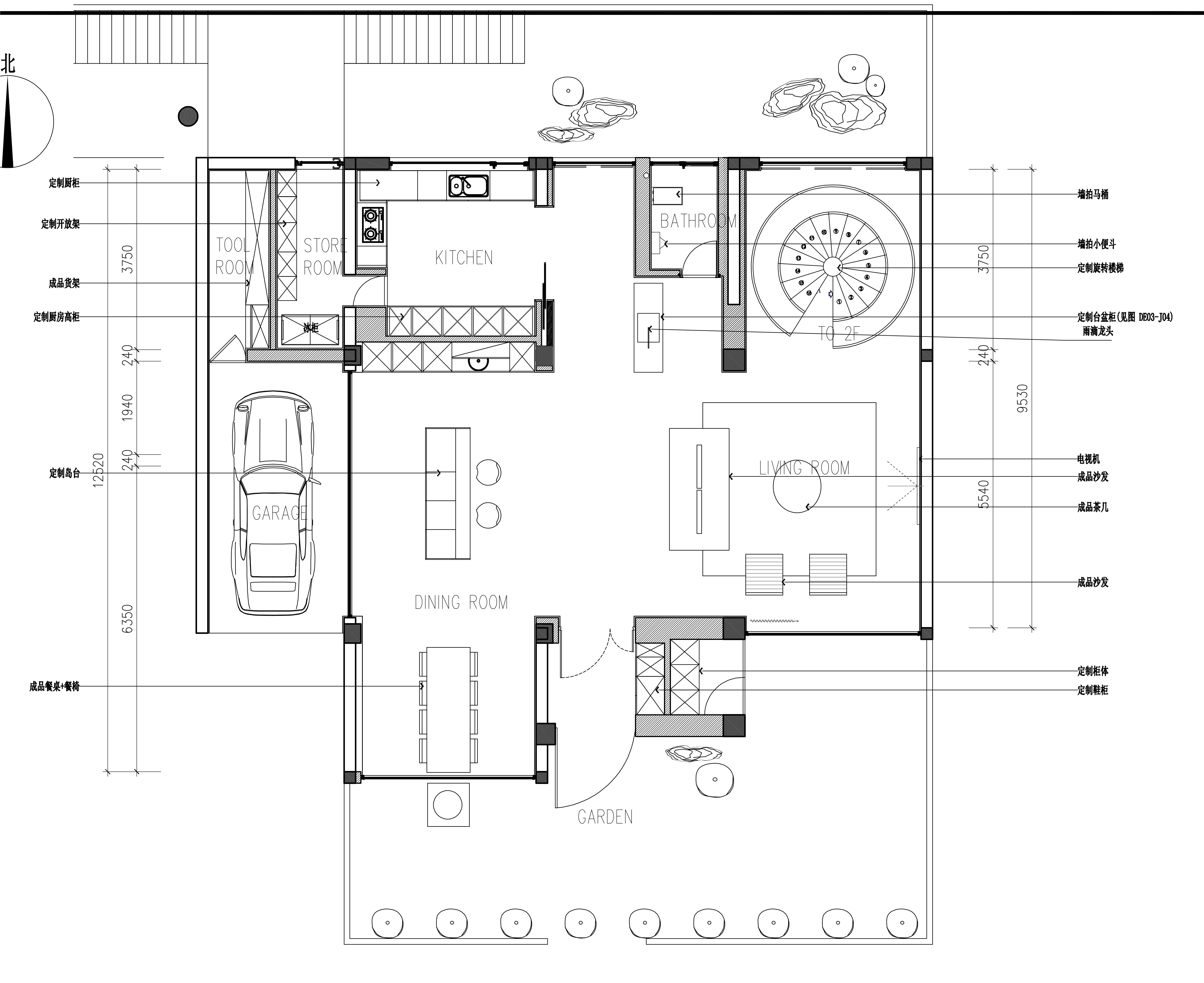
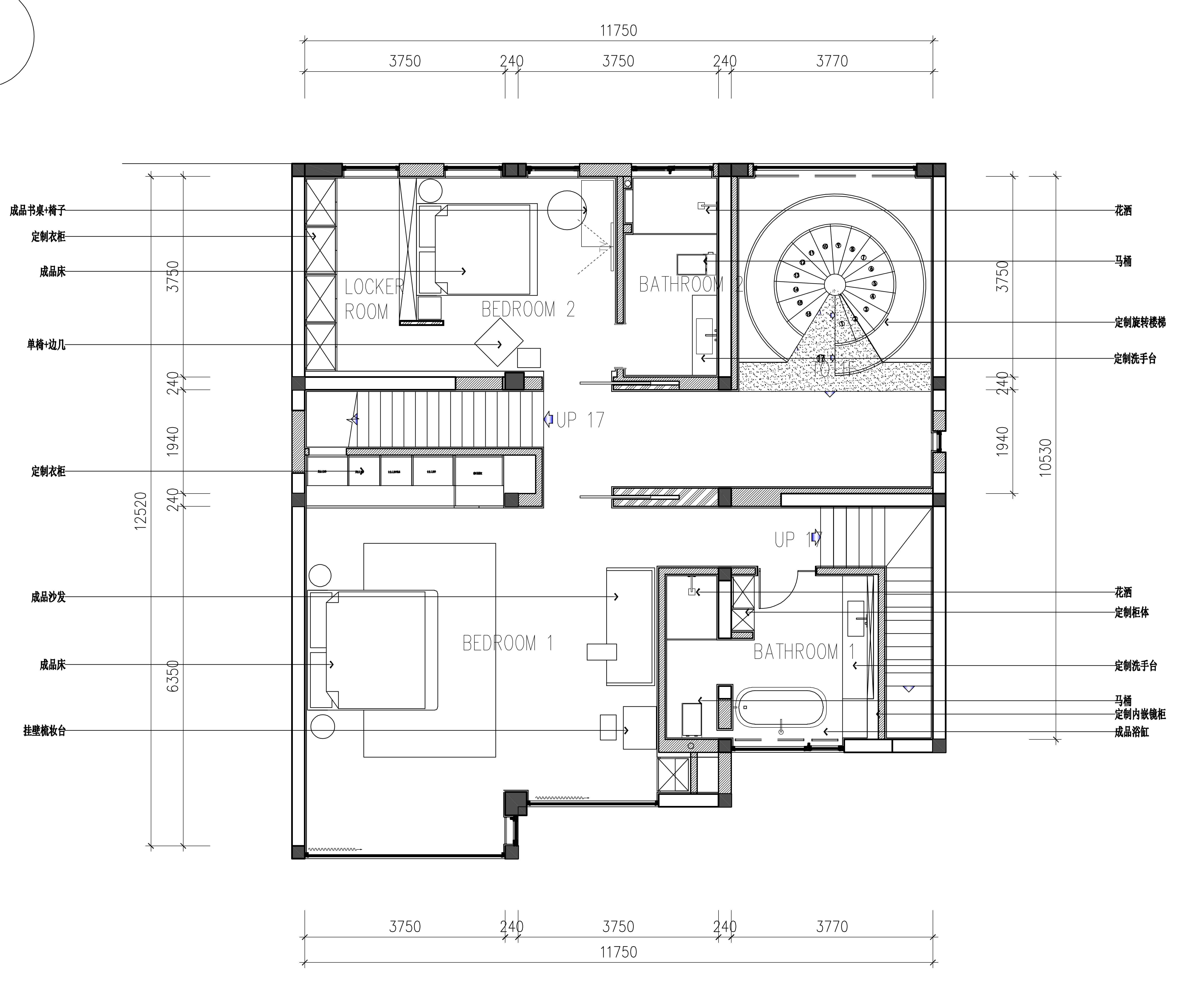
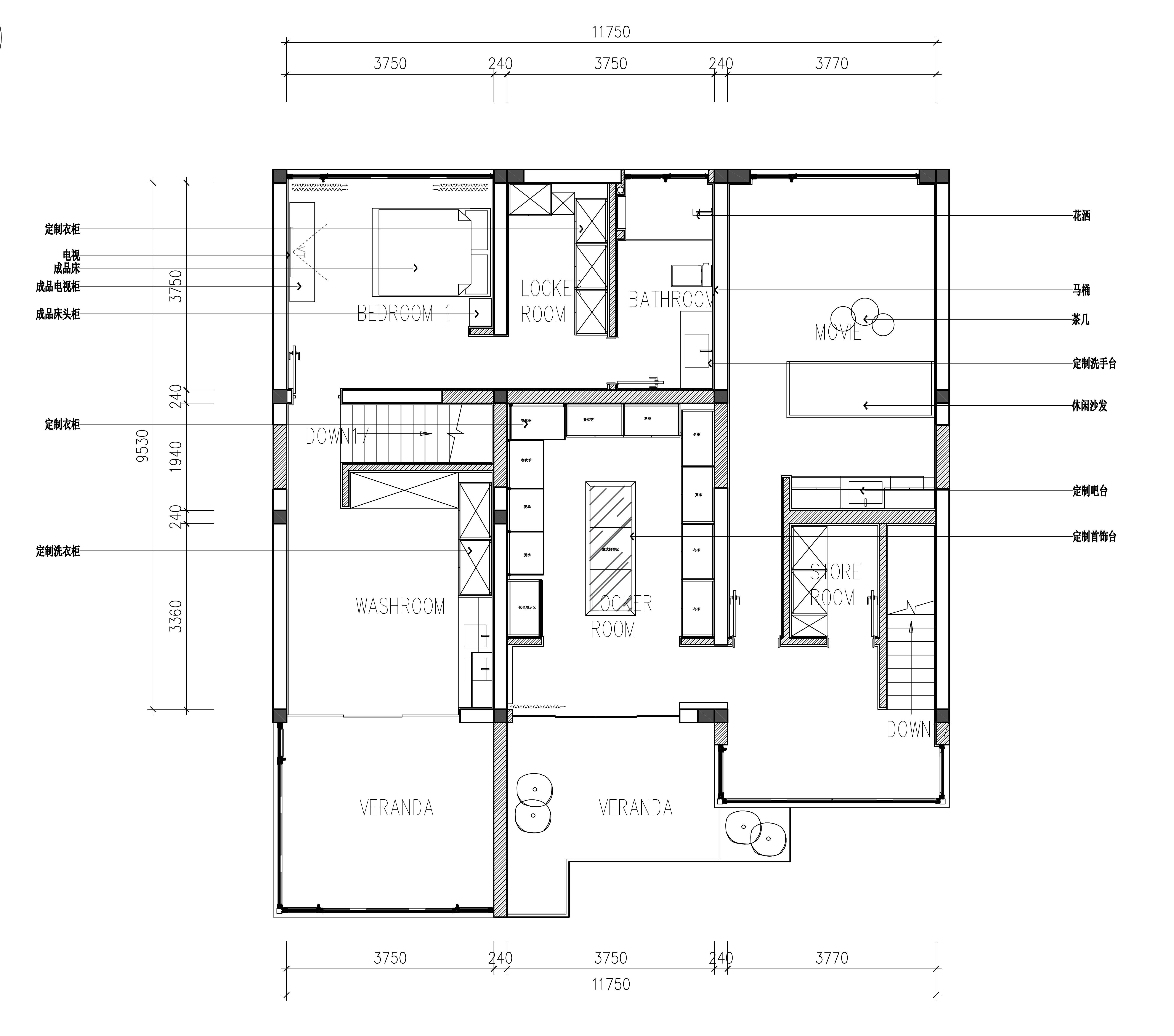
  • 图片
  • 图片
  • 图片
  • 图片
  • 图片
  • 图片
  • 图片
  • 图片
  • 图片
  • 图片
  • 图片
  • 图片
  • 图片
  • 图片
  • 图片
  • 图片
  • 图片
  • 图片
  • 图片
  • 图片
  • 图片
  • 图片
  • 图片
  • 图片
  • 图片
  • 图片
  • 图片
  • 图片
  • 图片
  • 图片
  • 图片
  • 图片
  • 图片
  • 图片
  • 图片
  • 图片
  • 图片
  • 图片
  • 图片
  • 图片
  • 图片
  • 图片
  • 图片
  • 图片
  • 图片
  • 图片
  • 图片
  • 图片
  • 图片
  • 图片
  • 图片
  • 图片
  • 上一个 下一个
    《金腾奖优秀作品年鉴》 私宅丨地产丨餐饮丨酒店丨办公丨商业丨公共丨产品丨公益丨人气 jintengAWARD(小金_金腾奖组委会) 广州市海珠区琶洲大道68号华新中心21楼
    金腾奖视频号 金腾奖小红书号 监制:闫虹
    统筹:吴佳佳
    运营:朱倩仪 王赫萱 张芷莹 胡岚恩 小金
    新媒体:王贝贝 严洁 侯乐 鹅姐
    经纪:刘译遥 石征 曹凯月
    技术:张桐 黄天佑
    最终解释权归金腾奖主办方所有