Senyu
作品详情
  • Details of the work 标题横线
    头像或者logo
    图片 云漫设计 室内设计联盟特约推荐
    城市:上海
    公司:云漫设计
    参赛作品: 森屿
    空间类型:公寓(150㎡以下)
    个人/公司简介:
    云漫设计,金奖设计团队,专注个性化私宅设计。 云漫认为,每个案子都是独一无二的,拒绝传统模式与刻板设计,希望通过云漫完成每一位业主对家的期待。 云漫设计,专注全案落地服务。 ①拒绝千篇一律,家居定制,设计家居合一; ②经验团队,更省心,更精致,更专业; ③极其重视交付,服务体验,设计落地; ④每个项目都视为“家”,每个客户都视作朋友。
    设计说明 | Design Instruction
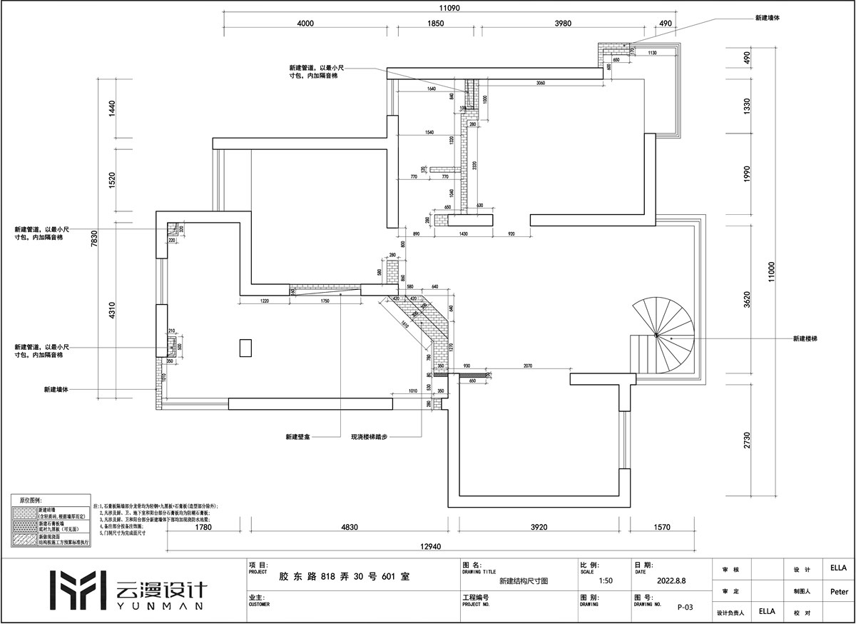
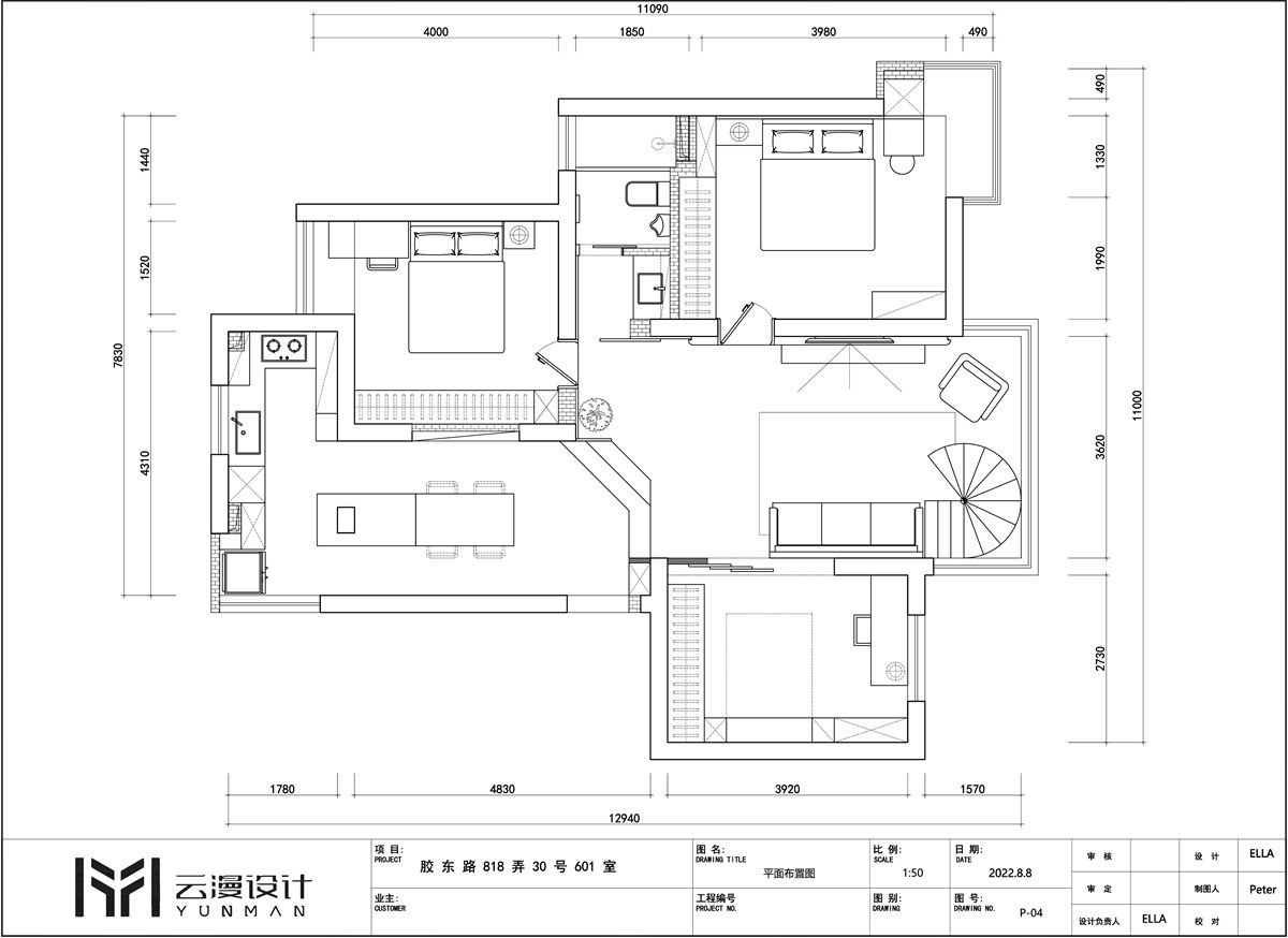
  • 148m²复式重装|身处森林中一处岛屿,自然,原木 屋主是一位独居大男孩,享受着自由自在的生活,没有干扰和束缚,希望打造一个栖身于闹市中的孤岛。 设计背调: ①几乎无偶住需求,对于设备、电器类品质要求较高; ②风格倾向于原木,自然。用极简的线条勾勒出空间层次。 ③原始房屋装修比较陈旧,布局传统。 ④空间布局上设计师自由发挥,要求有个书房,可以满足居家办公需要。 所以初步设计考量:注重全屋动线,森林和岛屿为主题。 一、平面布置优化 ①拆除次卫原始门洞,改变入门方式,增加整体储物空间,也扩大主卧空间尺度,提高舒适度; ②拆除原始次卧墙体,半开放式布局,扩大客厅空间之外,也可以作为书房使用; ③拆除原始餐厅墙体,减少原始厨房动线过长,同时增加餐厅的采光。 二、实景部分 ①动区客厅:配色注重表现,顶面留白,电视背景墙木饰面上墙,地面木地板通铺,两主色重塑客厅空间,主打专属动区的温润感。 造型覆盖优化,吊平顶保留最大层高是,弧形处理梁结构,硬朗线条搭配弧形元素,相得益彰,通铺拾级楼梯,空间层级无比丰富。 ②餐厅动区:开放式厨房格局,搭配中岛划分餐厨区,与客厅不同,小清新配色给予屋主更加愉悦的就餐和操作体验感。 硬装造型亦是通过圆弧吊顶调配,拾级而上是温润感客厅、拾级而下是小清晰餐厨区,独一无二。 ③超白玻旋转楼梯:本案中我们比较满意的设计要点之一。 整体用木地板、钢结构、超白玻组成,呼应整屋色调,既不阻挡视野,又可以作为屋主日常看书、写作时的常驻点。一年四季,风景皆在眼下~
  • 图片
  • 图片
  • 图片
  • 图片
  • 图片
  • 图片
  • 图片
  • 图片
  • 图片
  • 图片
  • 图片
  • 图片
  • 图片
  • 图片
  • 图片
  • 图片
  • 图片
  • 图片
  • 图片
  • 图片
  • 图片
  • 图片
  • 图片
  • 图片
  • 图片
  • 图片
  • 图片
  • 图片
  • 图片
  • 图片
  • 图片
  • 图片
  • 图片
  • 图片
  • 上一个 下一个
    《金腾奖优秀作品年鉴》 私宅丨地产丨餐饮丨酒店丨办公丨商业丨公共丨产品丨公益丨人气 jintengAWARD(小金_金腾奖组委会) 广州市海珠区琶洲大道68号华新中心21楼
    金腾奖视频号 金腾奖小红书号 监制:闫虹
    统筹:吴佳佳
    运营:朱倩仪 王赫萱 张芷莹 胡岚恩 小金
    新媒体:王贝贝 严洁 侯乐 鹅姐
    经纪:刘译遥 石征 曹凯月
    技术:张桐 黄天佑
    最终解释权归金腾奖主办方所有