N-1
作品详情
  • Details of the work 标题横线
    头像或者logo
    图片 陈龙
    城市:重庆
    公司: 重庆律动建筑设计事务所
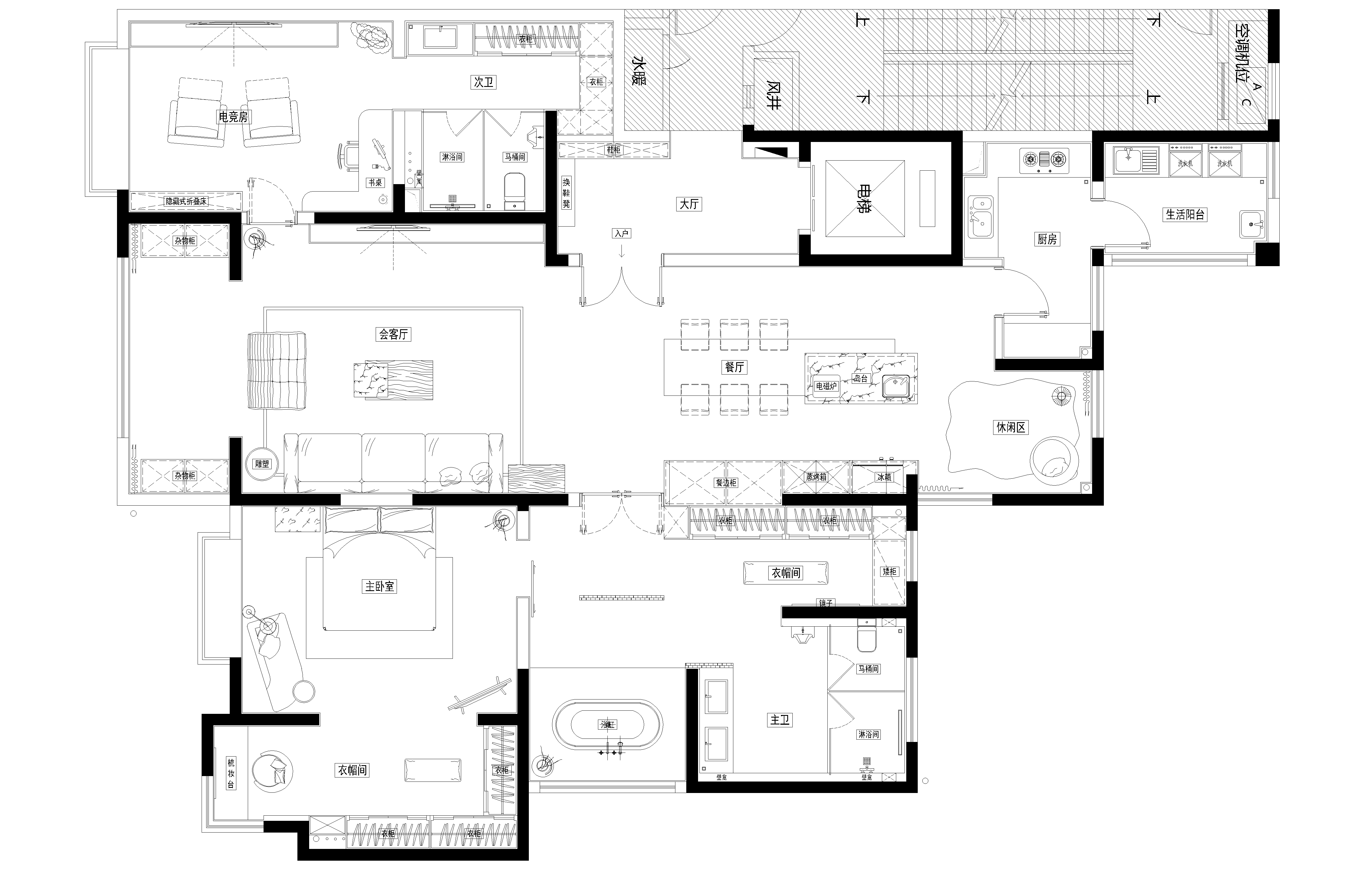
    参赛作品: 隐匿之境
    空间类型:公寓(150㎡以下)
    个人/公司简介:
    重庆律动建筑设计事务所品牌创始人,从业十三年,设计坚持”化繁为简“,去除一切不必要的形式,保留最原始的功能,注重考虑人与空间的交互关系。曾获荣誉:中国新商业空间优秀奖、2021第五届红鼎创新大赛优胜奖、2021年芒果奖商业空间TOP100等。
    设计说明 | Design Instruction
  • 基于甲方的充分信任和认可,项目设计之初,就确立的以做减法设计的空间设计思路,整体空间从功能区间到关键节点收口,都以最原始、最直接的方式去碰撞,力求在视觉效果形成统一,在空间上进行极致的收纳规划,将所有的灯光和控制隐藏,见不到任何的开关、插座、线路,为了实现这一最终的效果呈现,项目中所有使用到的家具、洁具、电器、设备及日常生活用品设备等都做了充分的事前准备,对空间内每一件器物的参数和安装要求都进行了准确的定位和预想。包括项目投入使用过程中所可能出现的场景进行预演,以补充空间中生活场景的填充。项目中部分特殊节点,为了实现视觉化和功能性的统一,项目中常有自行设计的非标构件交由专业厂家生产定做,虽然项目不大,但却倾注了非常大的精力和时间,然而看着逐渐清晰成型的项目轮廓,也倍感欣慰,我想也许这就是我从事这个行业的源动力吧。
  • 图片
  • 图片
  • 图片
  • 图片
  • 图片
  • 图片
  • 图片
  • 图片
  • 图片
  • 图片
  • 图片
  • 图片
  • 图片
  • 图片
  • 图片
  • 图片
  • 上一个 下一个
    《金腾奖优秀作品年鉴》 私宅丨地产丨餐饮丨酒店丨办公丨商业丨公共丨产品丨公益丨人气 jintengAWARD(小金_金腾奖组委会) 广州市海珠区琶洲大道68号华新中心21楼
    金腾奖视频号 金腾奖小红书号 监制:闫虹
    统筹:吴佳佳
    运营:朱倩仪 王赫萱 张芷莹 胡岚恩 小金
    新媒体:王贝贝 严洁 侯乐 鹅姐
    经纪:刘译遥 石征 曹凯月
    技术:张桐 黄天佑
    最终解释权归金腾奖主办方所有