Where the heart lives
作品详情
  • Details of the work 标题横线
    头像或者logo
    图片 胡杰
    城市:厦门
    公司: 共界设计
    参赛作品: 心之所栖
    空间类型:公寓(150㎡以下)
    个人/公司简介:
    专注室内设计十年,设计作品涵盖中高端住宅、商业空间、办公楼、展厅、售楼处、样板间、会所、精品酒店、民宿等类型。致力于建筑及室内空间的设计与研究,力求创造可丰富人们生活体验的定制空间,并尝试用开放而长效的设计让建筑与自然和谐共生。
    设计说明 | Design Instruction
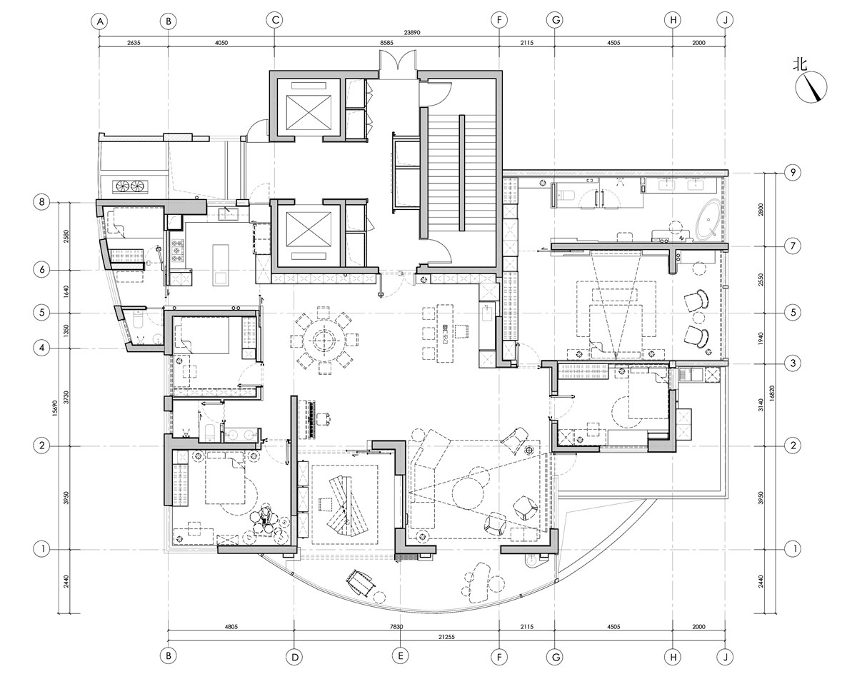
  • 本案是位于厦门市的300㎡大平层,我们在设计中注重质朴、自然和简约的美感,同时加入一些现代元素,以侘寂理念为设计灵感,使用柔和自然的色调和质地,营造宁静、现代、柔和、舒适和充满艺术的氛围。并且在空间上使用自由平面和开阔空间来打破传统的布局,创造一个开放和自由的空间。 使用自然光线来照亮空间,并在晚上使用柔和的灯光来增加温暖感。家具将选择现代简约的设计,比如低矮的沙发和木质茶几,使用流线型的家具和几何形状的装饰品来打造现代感,地面上我们将使用原木地板或浅色岩板地面,以突出自然材料的质感。 空间中使用艺术涂料来打造丰富的空间感受,使得整个居住环境更加舒适。加入柔和的灯光,灯光也是一个非常重要的设计元素,使用柔和而舒适的灯光来营造温馨和放松的氛围,吊灯和壁灯来创造层次感和视觉重量,这些灯具的设计风格也将与整个室内设计相呼应。 通过简洁、质朴的设计来表现出物品和空间的美感,这种美感是通过强调自然材料的质感、突出形式的简洁性和保持空间的简约性来实现的。因此,我们将在这个设计中尽量使用自然材料,并尽量减少不必要的装饰。
  • 图片
  • 图片
  • 图片
  • 图片
  • 图片
  • 图片
  • 图片
  • 图片
  • 图片
  • 图片
  • 图片
  • 图片
  • 图片
  • 图片
  • 图片
  • 图片
  • 图片
  • 图片
  • 图片
  • 图片
  • 图片
  • 图片
  • 图片
  • 图片
  • 图片
  • 图片
  • 图片
  • 图片
  • 图片
  • 图片
  • 图片
  • 图片
  • 图片
  • 图片
  • 图片
  • 图片
  • 图片
  • 图片
  • 图片
  • 图片
  • 上一个 下一个
    《金腾奖优秀作品年鉴》 私宅丨地产丨餐饮丨酒店丨办公丨商业丨公共丨产品丨公益丨人气 jintengAWARD(小金_金腾奖组委会) 广州市海珠区琶洲大道68号华新中心21楼
    金腾奖视频号 金腾奖小红书号 监制:闫虹
    统筹:吴佳佳
    运营:朱倩仪 王赫萱 张芷莹 胡岚恩 小金
    新媒体:王贝贝 严洁 侯乐 鹅姐
    经纪:刘译遥 石征 曹凯月
    技术:张桐 黄天佑
    最终解释权归金腾奖主办方所有