Nature as It Is | IFUNSPACE Creative Center
作品详情
  • Details of the work 标题横线
    头像或者logo
    图片 陈计添
    城市:深圳
    公司: 深圳市壹梵壹筑设计有限公司
    参赛作品: 自然已然 | IFUNSPACE创意中心
    空间类型:餐饮
    个人/公司简介:
    专注空间与人的探索,涵盖办公空间、企业展厅、新零售空间、软装陈设等领域。追求艺术设计和功能诉求的平衡,并致力于打造每件作品关于“美”的共鸣和独特气质。 作品擅长用简洁的手法重塑纷繁多元的空间,传递着美好。以使用者的感知为起点,通过将空间、时间、自然、科技、精神多维度的融合,不断突破固有的思维,打造极致空间体验性,展现出当代新生的设计力量。
    设计说明 | Design Instruction
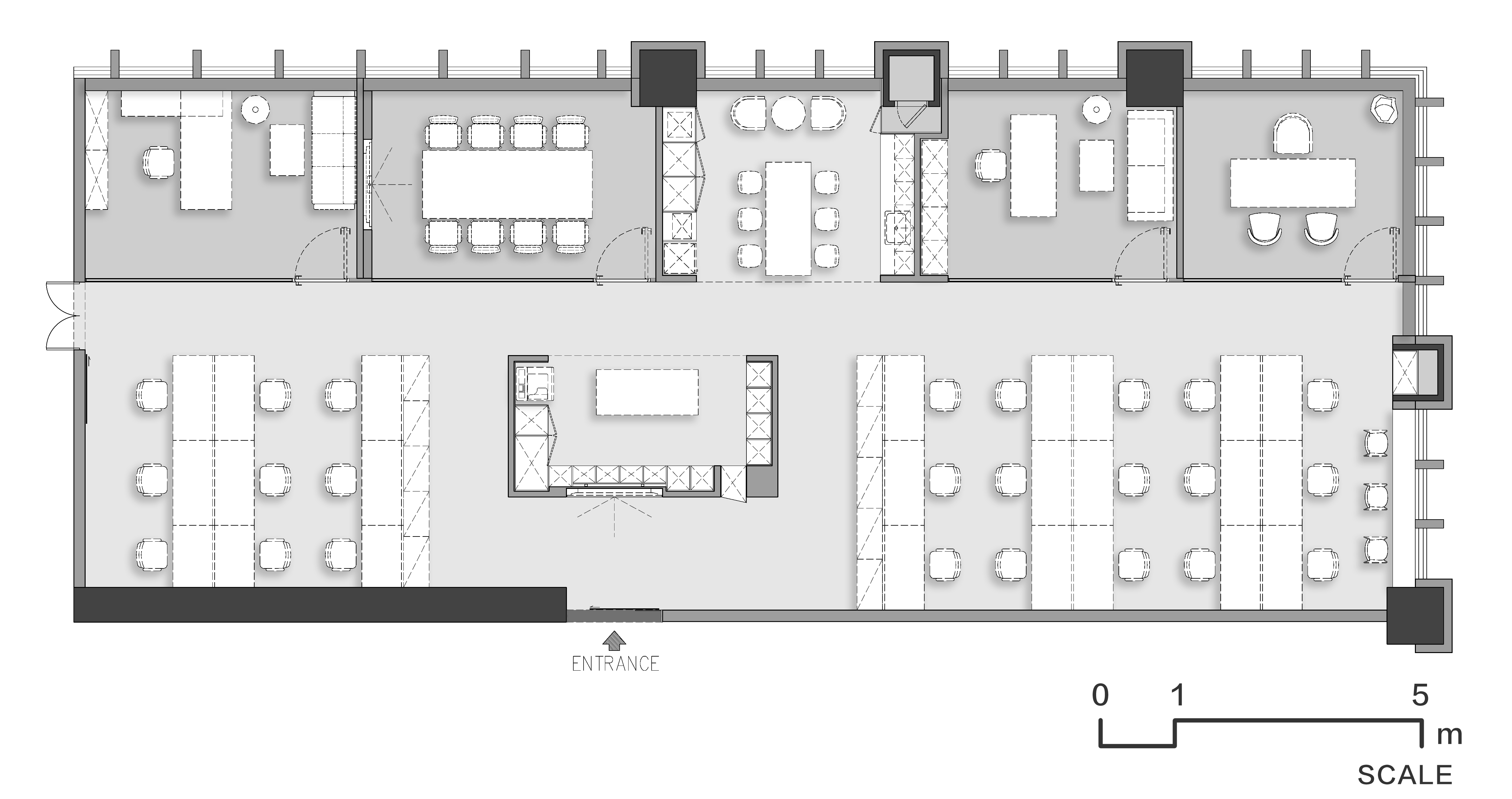
  • IFUNSPACE创意中心,其设计核心定义为"模块式办公"的空间策略,致力于为自身设计团队打造一个自然舒适、高效协同、且更具活力的现代办公环境。 基于项目自身的原始建筑条件和空间需求,前期通过对空间功能、员工行动路径和协作模式进行了大量实地调研与数据模型分析,提出并落地实施 "模块式办公"的空间策略。这一策略十分精准地覆盖了团队现阶段的多维需求,最大化地利用有限的物理空间,有效促进员工之间的协作和交流,同时也能满足日常接待客户和洽谈合作的商务需求,形成一个高效循环的能量场。 入口处特别置入了一个极具质感的灰色实体“盒子”,引发视觉形成聚焦。方盒子作为一个强有力的功能纽带,将开放的内部空间一分为二,左右分别为公司的两个事业部,实现了空间动线的分流和循环。办公室其余部分是五个独立的功能空间于横向逐一排列,满足接待、洽谈、茶歇、会议和独立办公的需求。 这个看似简单的“盒子”,由外至内兼具着多种复合功能属性,对外是企业形象墙,对内承担着展示柜、物料间、手工台、文印等强大的收纳、储藏、展示功能。创意盒子替代了传统的隔间和定制柜,使常规沉闷的办公空间更有趣味性,减弱了密闭空间的压抑感,自由通透,灵动简洁,现代高效。 良好高效的现代办公体验源于空间的设计语言和巧妙的平面布局,更源于贴心的细节设计。 公共办公区域采用开放式的格局,分布逻辑十分清晰,去除了工位之间的屏风,在靠近前厅的区域设置了少量低矮的格挡,与前厅区域形成半区隔,提高了员工之间日常工作交流的便捷性。 办公桌具备电动升降的功能,使设计团队成员根据自工作习惯和活动需求,能自由切换常规办公和站立式办公,于繁忙的高密度工作循环中提供了一种更为健康的工作方式的选择,友好务实。 在开放办公区域,大面积采用环保的微水泥涂料搭配素色地毯,简单细腻;墙面设置了一处可反复书写擦拭的环保工作面板,便于日常设计小组进行头脑风暴或讨论方案使用。办公空间的材料选择以吸音、环保和健康为前提,黑白灰三色的比例互为衬托,相得益彰,相对克制的设计更能释放出安静的空间底色,创造出自在栖游的现代简约办公新体验。 茶歇区位于整个办公空间的中间位置,以自然温暖的原木色为主调,与办公区的黑白形成鲜明的对比。注重细节,通过多样化的材质来体现空间的品质感,主要材质采用抗污和环保兼备的自沉式LVT搭配桦木海洋板,功能与美观兼备,为员工打造更为友好的办公环境。 独立茶室,可用于日常接待客户或休闲独处。空间延续了茶歇区的木质调性,搭配藤编的家具和简约设计感的灯具,自然明亮且舒适愉悦,设计特意将茶桌的高度降低了5公分,以更符合泡茶者的操作习惯,阵阵茶香氤氲,静谧清幽,增强了人与空间之间宁静的对话。 SVP独立办公室,以现代极简黑白为主,满足独立办公的日常需求,明净的玻璃窗带来充足的阳光浸润,节约能源绿色环保,结合注重人体健康的细节设计,缓解了创意工作的高强度长期输出对身体带来的疲惫感,个性化的配置以使用者的需求为主:采用冲孔石膏板搭配可升降座椅,白色极简艺术收纳边柜,配备专属的衣橱...设计的细节将空间提升,交织的光影,引发更为多元广阔的设计探索。
  • 图片
  • 图片
  • 图片
  • 图片
  • 图片
  • 图片
  • 图片
  • 图片
  • 图片
  • 图片
  • 图片
  • 图片
  • 图片
  • 图片
  • 图片
  • 图片
  • 图片
  • 图片
  • 图片
  • 图片
  • 图片
  • 图片
  • 图片
  • 图片
  • 图片
  • 图片
  • 图片
  • 上一个 下一个
    《金腾奖优秀作品年鉴》 私宅丨地产丨餐饮丨酒店丨办公丨商业丨公共丨产品丨公益丨人气 jintengAWARD(小金_金腾奖组委会) 广州市海珠区琶洲大道68号华新中心21楼
    金腾奖视频号 金腾奖小红书号 监制:闫虹
    统筹:吴佳佳
    运营:朱倩仪 王赫萱 张芷莹 胡岚恩 小金
    新媒体:王贝贝 严洁 侯乐 鹅姐
    经纪:刘译遥 石征 曹凯月
    技术:张桐 黄天佑
    最终解释权归金腾奖主办方所有