Renheng Haihe Yunting
作品详情
  • Details of the work 标题横线
    头像或者logo
    图片 苏州玖辰舍空间设计有限公司
    城市:苏州
    公司:苏州玖辰舍空间设计有限公司
    参赛作品: 仁恒海河云庭
    空间类型:公寓(150㎡以下)
    个人/公司简介:
    玖辰舍空间设计美学是一家以生活,梦想,家,为一体的美学设计公司,设计内容包括:高端别墅软装设计,私人客户精装设计,办公空间,及家具设计,民宿,样板间,酒店餐饮软装设计,关于美的世界无分空间与区域,只要你有一双发现美的眼睛和需要美的心灵,生活的美好就在不远处!玖辰舍,是一群有美学梦想的设计人,不忘初心,坚持努力,在设计的路上,勇往直前。
    设计说明 | Design Instruction
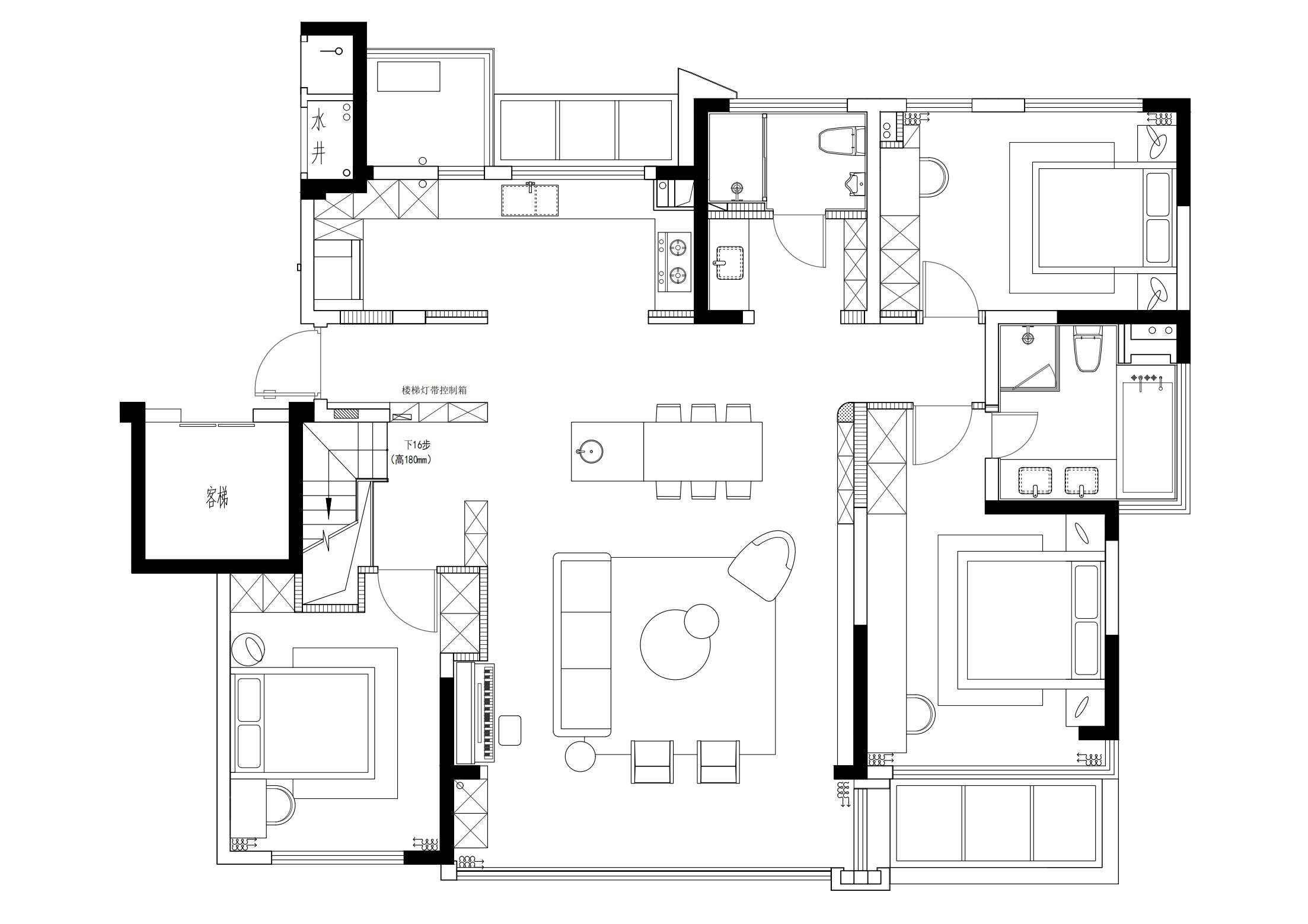
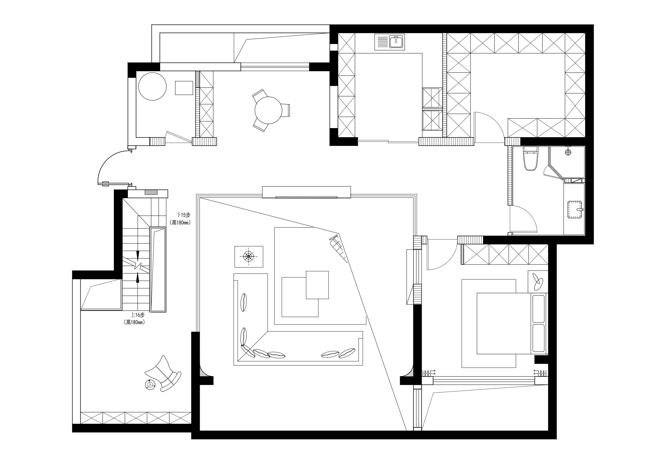
  • 设计理念: 家,是连接理想与生活的纽带,享受家与极简自然间的和谐 设计特色:四口之家的420平精装底复的设计是以舒适、实用和美观为主要考虑因素,同时要考虑到不同家庭成员的个人喜好和需求。 开放式设计:考虑到居住面积较大,可以采用开放式的设计,将客厅、餐厅和厨房进行整合,增加家人之间的互动和交流。利用大面积的玻璃窗,使室内充分融入自然景观。 多功能空间设计:考虑到四口之家的需求,可以根据家庭成员的不同活动,设置多功能的活动空间。例如,可以设立一个书房兼办公室,以满足家人的学习和工作需求;或者设置一个儿童活动区,以满足孩子的娱乐和游戏需求。 充分利用储藏空间:考虑到室内面积较大,应充分利用储藏空间,设计合理的储物空间,如衣帽间、壁柜等,以便更好地整理和储存物品,保持室内整洁。 软装饰设计:选择适合四口之家的家居软装饰,如舒适的沙发、温暖的地毯、柔和的灯光等,营造舒适、温馨的家庭氛围。同时,可以根据家庭成员的喜好和爱好,增加个性化的装饰元素。 抽象艺术: 在墙面上挂上一些抽象、富有创意的艺术作品,业主的小孩的画为空间增添独特的个性。植物装饰: 在适当的位置摆放一些绿植,引入自然元素,为室内增添生气。 室内空间的合理利用,灵活多样的功能区划分,智能化的生活体验,舒适美观的软装饰和个性化的装饰元素,营造一个温馨舒适、实用美观的家居环境。
  • 图片
  • 图片
  • 图片
  • 图片
  • 图片
  • 图片
  • 图片
  • 图片
  • 图片
  • 图片
  • 图片
  • 图片
  • 图片
  • 图片
  • 图片
  • 图片
  • 图片
  • 图片
  • 图片
  • 图片
  • 图片
  • 图片
  • 图片
  • 上一个 下一个
    《金腾奖优秀作品年鉴》 私宅丨地产丨餐饮丨酒店丨办公丨商业丨公共丨产品丨公益丨人气 jintengAWARD(小金_金腾奖组委会) 广州市海珠区琶洲大道68号华新中心21楼
    金腾奖视频号 金腾奖小红书号 监制:闫虹
    统筹:吴佳佳
    运营:朱倩仪 王赫萱 张芷莹 胡岚恩 小金
    新媒体:王贝贝 严洁 侯乐 鹅姐
    经纪:刘译遥 石征 曹凯月
    技术:张桐 黄天佑
    最终解释权归金腾奖主办方所有