Shimaoshi Lake Bay
作品详情
  • Details of the work 标题横线
    头像或者logo
    图片 苏州玖辰舍空间设计有限公司
    城市:苏州
    公司:苏州玖辰舍空间设计有限公司
    参赛作品: 世贸石湖湾
    空间类型:公寓(150㎡以下)
    个人/公司简介:
    玖辰舍空间设计美学是一家以生活,梦想,家,为一体的美学设计公司,设计内容包括:高端别墅软装设计,私人客户精装设计,办公空间,及家具设计,民宿,样板间,酒店餐饮软装设计,关于美的世界无分空间与区域,只要你有一双发现美的眼睛和需要美的心灵,生活的美好就在不远处!玖辰舍,是一群有美学梦想的设计人,不忘初心,坚持努力,在设计的路上,勇往直前。
    设计说明 | Design Instruction
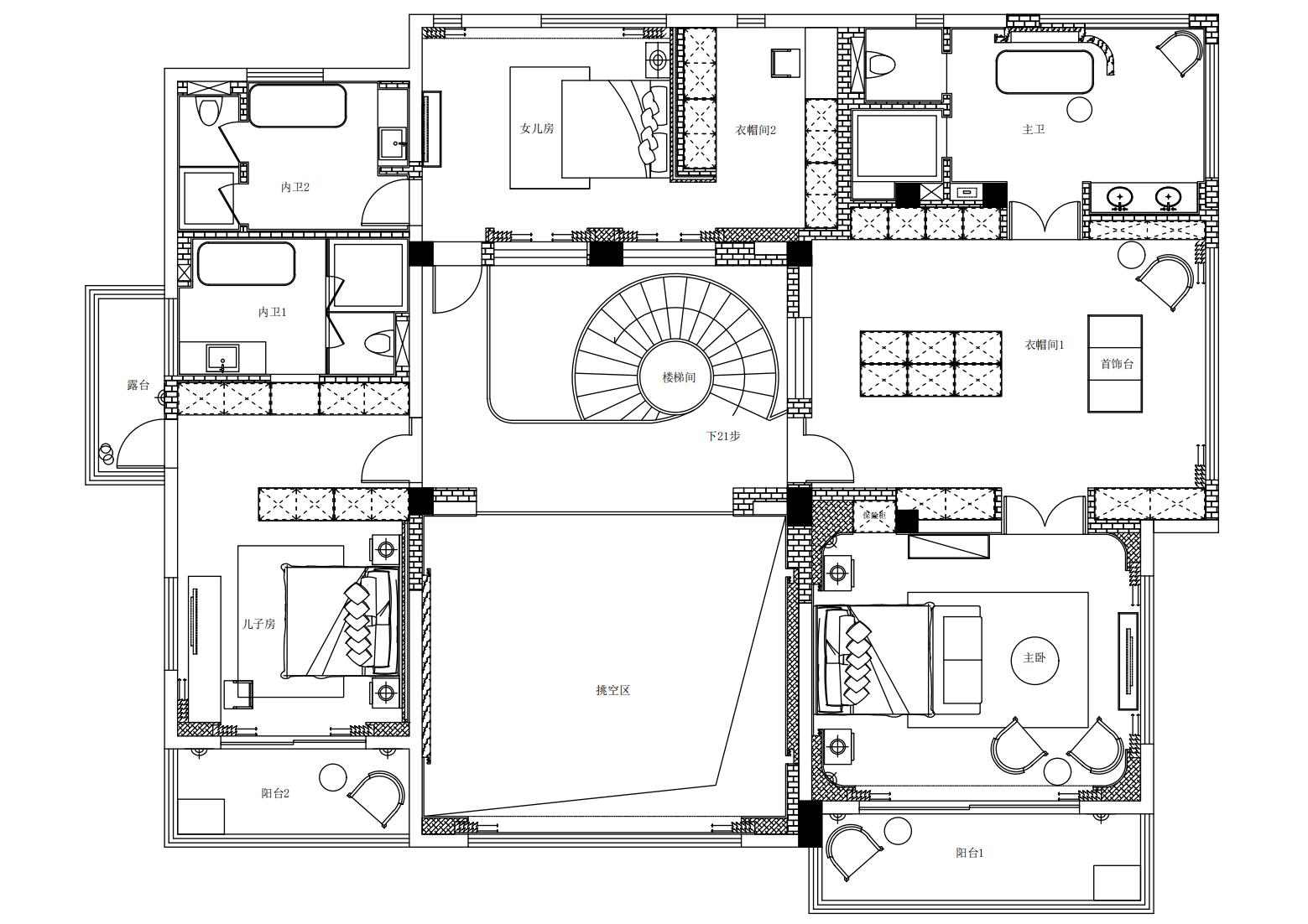
  • 设计理念:从品味、细节、色彩把控,把儒雅的低奢格调融入居住者的生活。 设计特色:不同于奢华,轻奢是对美好事物的高级品味,是对材料质感的超高要求,是在追求精致的同时不忘舒适,轻奢是一种不忘初心的生活态度,更是对生活仪式感的坚持,现代都市生活的快节奏,呼唤简约与明快,温暖与放松成为家的主题,轻奢风格时代已悄然而至,而这种格调的设计,投射着我们的情感与理想,同时也许能够满足我们对于美好生活的憧憬与向往。 石湖绿树环抱,别墅如诗如画,在世贸石湖湾这片美丽的土地上,地下室一进门是入户玄关,顶面具有仪式感的圆弧形的吊顶搭配科学的灯光排布,洞石纹路的石材,一整面vifa高端玻璃鞋柜,rugiano的换鞋凳,营造出优雅纯粹且具有生活质感的鞋帽间,大大提升了空间的观赏性以及实用性。一层客厅的挑空设计,电视背景用了一整面的岩板,顶面上富有张力的水晶灯,漂浮的形体携无数“水中船桨”演变成“发光的龙骨”,不声不响地传达了居住者的不凡气度,完美契合开阔场域的气势。主沙发是rugiano的empire沙发搭配paris休闲椅,古铜金的金属,米色的主基调,绛紫色的休闲椅跳跃了颜色的同时提升了尊贵的气质。中餐厅采用了rugiano定制台面餐桌,每一块台面世间仅有一个,餐厅主灯四散出光芒,像一轮金色的太阳,借助挑空区域的尺度,穿插如丝、如带、如风的旋转楼梯,记录不同维度的动人故事,并带领光影实时绘就自然的诗意,于节点处摆置艺术雕塑,延伸美学的姿态,丰富了感官体验,也滋养了精神。楼梯中间悬垂光芒般的暖金灯具,实现虚实之间迸发的凝聚力量与扩张气派,由上至下贯穿室内,形成多变趣致的仰望型景观。主卧混搭各式各样的大地色元素,营造出惬意、安然、舒怡的氛围,床头的圆角延续至沙发、边柜、墙隅,撩拨起一丝温柔情愫。条纹修饰,促成了流畅新颖的叙事风格,契合了摩登悠闲的空间气质。衣帽间丝绒跳色对望圆镜,抒发着女性特有的浪漫风情,调整水晶、布艺的表现情态,掀起了生活真趣,提升了生活的品质,让起居生活更自在灵活、惬意舒适。
  • 图片
  • 图片
  • 图片
  • 图片
  • 图片
  • 图片
  • 图片
  • 图片
  • 图片
  • 图片
  • 图片
  • 图片
  • 图片
  • 图片
  • 图片
  • 图片
  • 图片
  • 图片
  • 图片
  • 图片
  • 图片
  • 图片
  • 图片
  • 图片
  • 图片
  • 图片
  • 图片
  • 图片
  • 图片
  • 图片
  • 图片
  • 上一个 下一个
    《金腾奖优秀作品年鉴》 私宅丨地产丨餐饮丨酒店丨办公丨商业丨公共丨产品丨公益丨人气 jintengAWARD(小金_金腾奖组委会) 广州市海珠区琶洲大道68号华新中心21楼
    金腾奖视频号 金腾奖小红书号 监制:闫虹
    统筹:吴佳佳
    运营:朱倩仪 王赫萱 张芷莹 胡岚恩 小金
    新媒体:王贝贝 严洁 侯乐 鹅姐
    经纪:刘译遥 石征 曹凯月
    技术:张桐 黄天佑
    最终解释权归金腾奖主办方所有