A center core surrounded by bookcases
作品详情
  • Details of the work 标题横线
    头像或者logo
    图片 大海小燕设计工作室 设计引力特约推荐
    城市:上海
    公司:大海小燕设计工作室
    参赛作品: 藏在地下的家庭乐园
    空间类型:公寓(150㎡以下)
    个人/公司简介:
    郭东海:大海小燕设计工作室 创始人/主持设计师 燕泠霖:大海小燕设计工作室 创始人/主持设计师 大海小燕设计工作室 Atelier D+Y 大海小燕设计由两位资深建筑师主持,毕业于国内知名院校建筑系,在国内大型设计院、大师事务所工作多年后,独立设计,将我们的理念融入我们的每一个设计中。 让设计回归生活世界是我们的主旨。从室内到建筑、城市,着力挖掘人与空间潜在关系,关注现代形式的逻辑与东方固有的精神内核。为生活现象中的每一个人提供一个精神寄所。
    设计说明 | Design Instruction
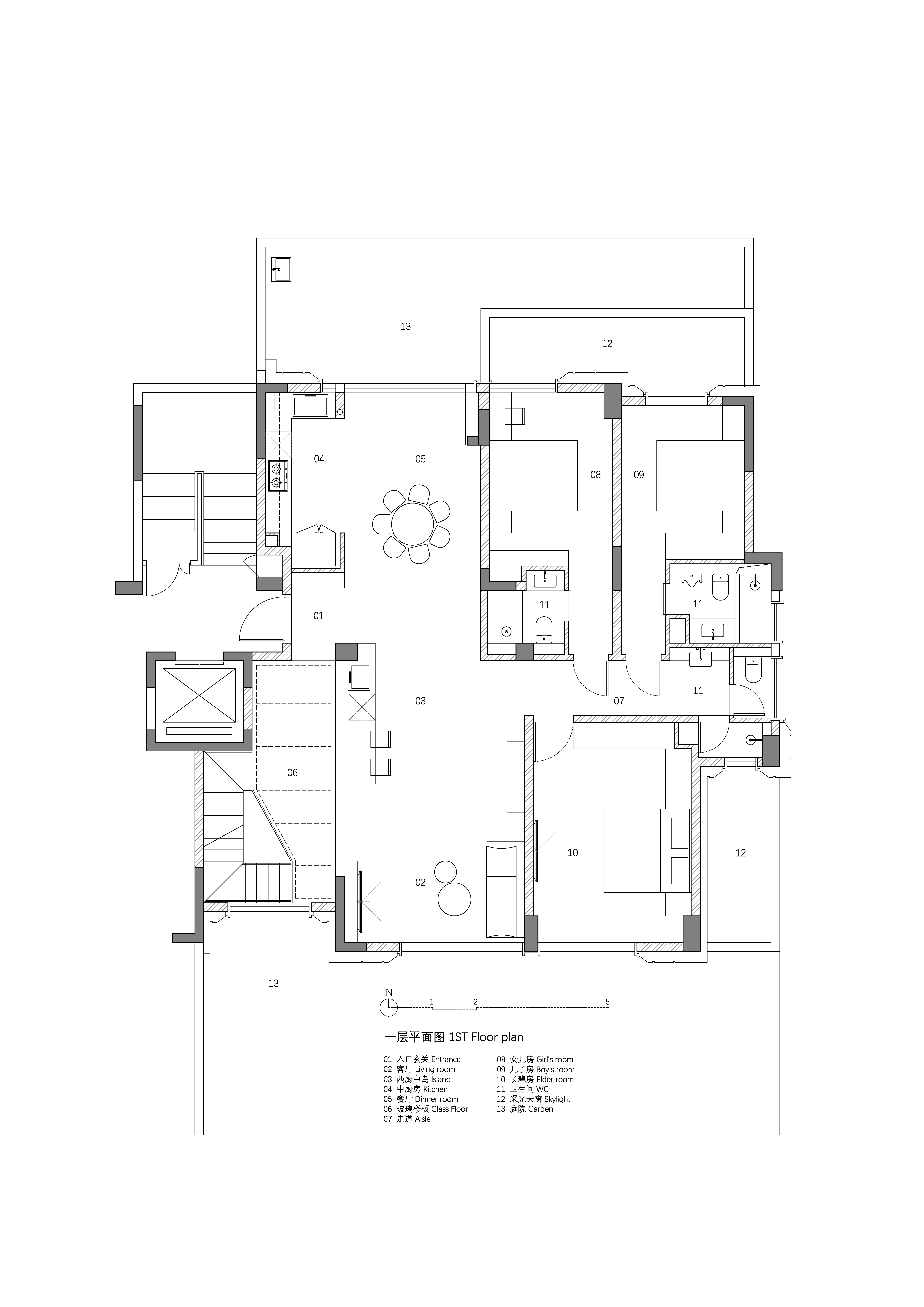
  • 房子位于一栋小高层建筑的一楼,一层面积140平。结构简单清晰,三室两厅两卫。地下室,200平,5.5米净高!谓之“藏”,是因为,需要经过一个隐秘的楼梯,几经转折,再打开门,才豁然开朗!地下空间虽大,却异常烫手。巨构梁柱,水泥森林。仅有东、北两个采光井,捉襟见肘。 空间需容纳四代八口人——哥哥(3岁)、将出生的妹妹(设计时);爸爸、妈妈;姥姥、爷爷奶奶(偶尔居住)、太姥姥(偶尔居住)。 首先居住空间就是一个难题,地上只有三间房,业主需要至少5间卧室。我们通过改变楼梯的方向,将南面书房楼板改为玻璃楼板,增加第三处采光井,使得地下空间得到充分的光线。地上空间作为餐厨、小型客厅使用,并且布置了老人和孩子的卧室。围绕着北侧采光井,布置了地下的2间卧室、琴房、影音室。总共7间私密房间都可以获得采光。原有东侧的采光井留给地下的公共空间,同时为地下的两个卫生间采光。至此,地下室除了储藏间,所有空间都实现了“全明”。 在地下空间里,我们试图捕捉光的形状,穿过楼梯、玻璃楼板、玻璃砖的光,被刻画成不同的模样。新增的南向采光井通过悬浮楼梯和玻璃楼板的切割和重塑,在墙面形成光影变化,创造了“韵律之光”;东向采光直接进入挑高的地下公共空间,为高阔的开放空间注入精神灵魂,简单的墙面,结合玻璃砖体量,共创光云影动般的景象,谓之“旷寂之光”;同时东向光井的光线穿过玻璃砖,进到主客卧卫生间内,砌筑的重量,漂浮的光线,错动的肌理,形成了“质感之光”;北面的采光井分布给几个卧室和功能性房间,柔和的阳光给到私密空间足够的“静谧之光”。 公共空间是一家人的乐园。一系列连续的空间拱洞。消减了固有的空间边界,创造动态的视觉体验,巧妙隐藏设备和梁柱。曲线中加入了可玩、可看的设施,创造着一家人的欢乐。植入的拱与洞构造新的景框视界,让流动又重铸了新的画框边界。滑梯、攀岩、台球、乒乓、阅读、跳跃、奔跑……容纳一切可能的活动,收获无穷无尽的欢乐! 空间有了高低起伏,有了开合收放,观察、躲藏就变得极富乐趣。 本案着重于地下空间的重塑,用光给空间带来新的活力,用空间形态承载多功能的孩童游乐可能,在地下空间及儿童空间设计的领域做出了全新的阐释。
  • 图片
  • 图片
  • 图片
  • 图片
  • 图片
  • 图片
  • 图片
  • 图片
  • 图片
  • 图片
  • 图片
  • 图片
  • 图片
  • 图片
  • 图片
  • 图片
  • 图片
  • 图片
  • 图片
  • 图片
  • 图片
  • 图片
  • 图片
  • 图片
  • 图片
  • 图片
  • 图片
  • 图片
  • 上一个 下一个
    《金腾奖优秀作品年鉴》 私宅丨地产丨餐饮丨酒店丨办公丨商业丨公共丨产品丨公益丨人气 jintengAWARD(小金_金腾奖组委会) 广州市海珠区琶洲大道68号华新中心21楼
    金腾奖视频号 金腾奖小红书号 监制:闫虹
    统筹:吴佳佳
    运营:朱倩仪 王赫萱 张芷莹 胡岚恩 小金
    新媒体:王贝贝 严洁 侯乐 鹅姐
    经纪:刘译遥 石征 曹凯月
    技术:张桐 黄天佑
    最终解释权归金腾奖主办方所有