+-BOX
作品详情
  • Details of the work 标题横线
    头像或者logo
    图片 陆奕 设计引力特约推荐
    城市:广州
    公司: 广州简美家居设计有限公司
    参赛作品: 金山谷意库公寓
    空间类型:公寓(150㎡以下)
    个人/公司简介:
    从事室内设计及设计管理工作近20年,曾任职于保利发展控股集团股份有限公司。2018年与简美品牌联合创立简美设计。 践行极简自然的空间主义,善于从空间本身出发,优化空间体验,切实解决客户问题。作品曾多次获得国内外各类设计奖项。
    设计说明 | Design Instruction
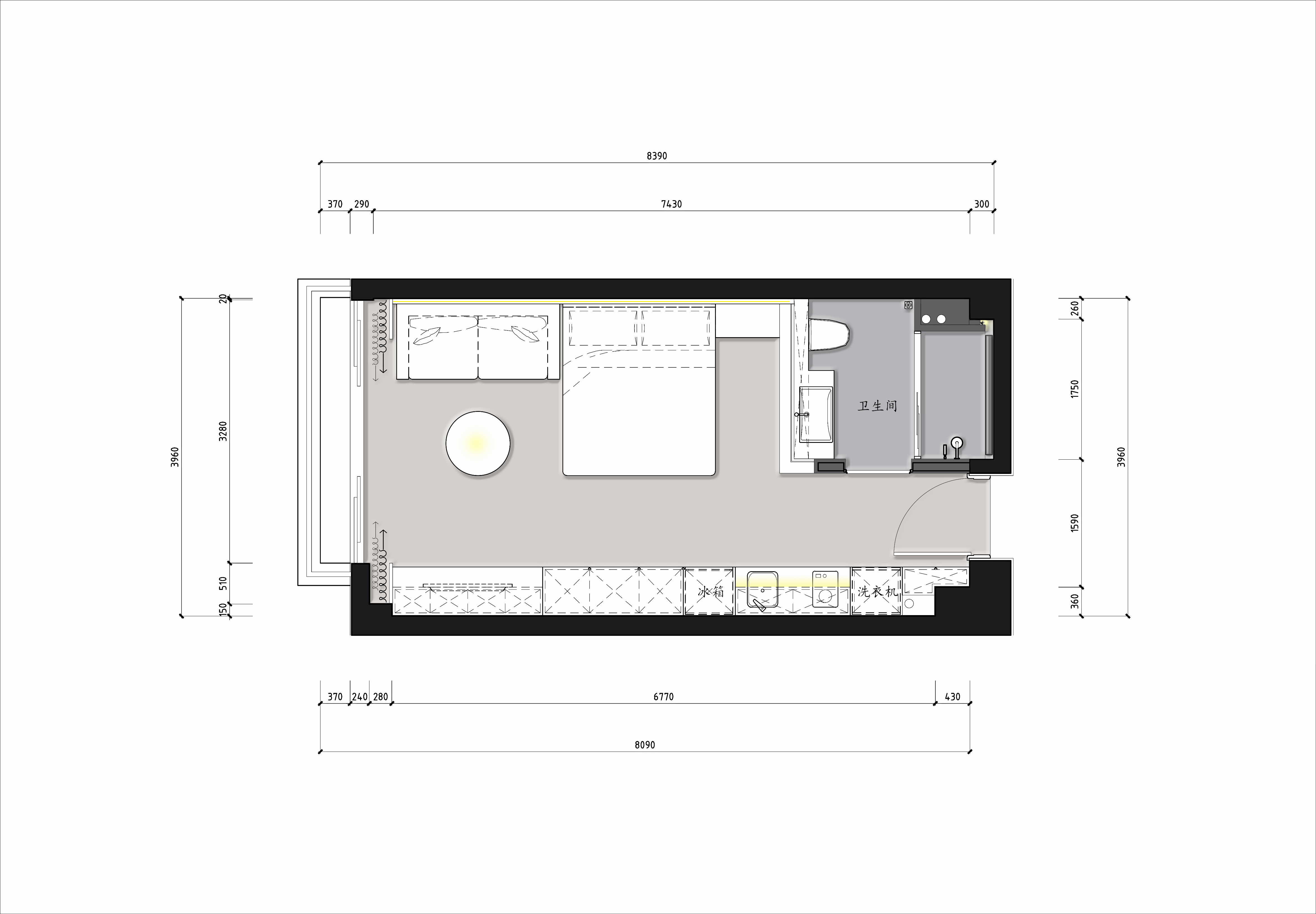
  • 序言_preface 空间设计的主体为空间,但追本溯源,空间服务于人,更关乎于背后的居住者与使用者。本案受客户委托,为金山谷意库一大一小两间公寓进行设计,其中大公寓作为个人闲暇空间居住使用,小公寓则是满足平日里偶尔接待朋友需求。 作为空间设计者,我们通过设计语言将空间进行拆解划分,同时利用团队特有优势,以专业高效的服务快速满足客户需求,从而实现空间设计的真正价值。 划分 / 布局 - divide / layout 考虑到空间为个人闲暇居住使用,故空间在整体上采用开放式布局,人从步入空间伊始,便能最大化感受空间的开阔通透之感,心情也会随之变得轻松开朗。  开放式布局讲究悠然自适,卧室作为较为私密的起居场所,通过抬高地面的巧妙设置实现区域间的相互区分,在空间中形成半私密的围合天地。 同时,卧室与客厅之间也自然构成流畅的回游动线,在行走过程中可以感受到空间的无限延伸。 介入 / BOX - intervention / box 在这个宽敞透亮的空间里,空间的功能区域间协调共生,设计构成的空间特质清晰可见。唯独位于客厅背景之上是子衿灰方块犹如神秘的宝盒,吸引着人们前去一探究竟。 以卫生间顶部沉箱结构做延伸处理,将消防管道和中央空调置入其中,形成BOX的简洁形态,色彩与空间相连,边界消解,彼此间构成细腻而又别致的互动乐趣。 清新简洁是空间的基调,故在软装的选择上多以极简为主,深海蓝的沙发、玻璃材质的茶几,高级灰的地毯,在提升空间格调的同时,注入更多时尚质感。 整合 / 定制 - integration / customized 简美设计,由家具品牌和定制柜为主的家居品牌“简美”蜕变而生,故而从设计、软装、定制、施工等服务上具有明显优势。  在餐厅、落地柜、榻榻米间利用团队资源进行一体化定制,简洁配色与材质间的干净质感相互映衬,空间中呈现出现代简洁的优雅气息。 光线是空间的重要组成部分,客厅与榻榻米间形成的夹角刚好是餐厅的位置,空间完全开放的状态,光线毫无保留地进入,即使没有灯光的情况下,餐厅也十分敞亮舒适。 卧室,以浅基底的蓝色背景与客厅的沙发蓝保持同个色系,在空间之中相互呼应,而蓝色与灰色叠加,舒适恬静,让忙碌的神经得以完全放松。 结构 / 通透 - structure / transparent 小公寓空间虽小,功能却五脏俱全,在设计调性上与大公寓保持一致,整体简洁明朗。 小的空间容易给人以压迫感,封闭式卫生间尤其如此,在卫生间朝内的墙壁中撕开一道口子,以玻璃进行间隔,结构美感渐次展开,内与外,空间与空间充满了互动性与趣味性。 空间由点、线、面、体等关系组合而成,以开创的窗口延伸,空间置入线性灯光与天花造型遥相呼应,不仅是空间氛围的巧妙装点,同时使空间的纵深感更强,视觉上呈现出更多的开阔之感。 在趋同化严重的设计当下,许多时候设计不再只是设计,而是炫技。 对此,我们希望摆脱大环境的影响,更多地从空间的实际角度出发,利用已有优势,以专业之长帮助客户解决实际问题。
  • 图片
  • 图片
  • 图片
  • 图片
  • 图片
  • 图片
  • 图片
  • 图片
  • 图片
  • 图片
  • 图片
  • 图片
  • 图片
  • 图片
  • 图片
  • 图片
  • 图片
  • 上一个 下一个
    《金腾奖优秀作品年鉴》 私宅丨地产丨餐饮丨酒店丨办公丨商业丨公共丨产品丨公益丨人气 jintengAWARD(小金_金腾奖组委会) 广州市海珠区琶洲大道68号华新中心21楼
    金腾奖视频号 金腾奖小红书号 监制:闫虹
    统筹:吴佳佳
    运营:朱倩仪 王赫萱 张芷莹 胡岚恩 小金
    新媒体:王贝贝 严洁 侯乐 鹅姐
    经纪:刘译遥 石征 曹凯月
    技术:张桐 黄天佑
    最终解释权归金腾奖主办方所有