CONTRAST
作品详情
  • Details of the work 标题横线
    头像或者logo
    图片 陈新宇 设计引力特约推荐
    城市:上海
    公司: 式设计
    参赛作品: CONTRAST
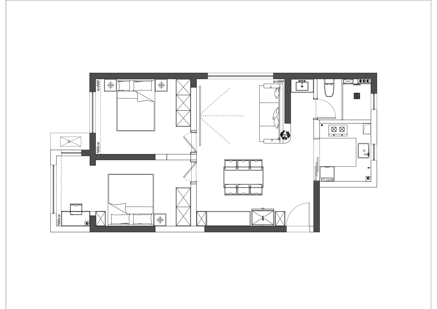
    空间类型:公寓(150㎡以下)
    个人/公司简介:
    以90后为主力组成的设计团队,本着对设计的追求和生活的热爱成立「式设计STYLE DESIGN」私宅设计工作室。以青春年轻为谱,以自由原创为符,以专业个性为调,定义未来式设计,谱写我们的专属曲目。
    设计说明 | Design Instruction
  • “白只存在于我们的感觉认知中,我们一定不要试图去寻找白,而是去找一种感觉白的方式。原研哉《白》简约绝不意味着单一。这一次,尝试着以纯黑白色为基调并配合原木的温暖与绿植的生机,将自然、盐系、节奏感、呼吸感等通通融入其中带着对极简主义多样化的理解,走进这个纯白生意盎然却又藏着一间纯黑房间的家
  • 图片
  • 图片
  • 图片
  • 图片
  • 图片
  • 图片
  • 图片
  • 图片
  • 图片
  • 图片
  • 图片
  • 图片
  • 图片
  • 图片
  • 图片
  • 图片
  • 图片
  • 图片
  • 图片
  • 图片
  • 图片
  • 图片
  • 图片
  • 图片
  • 上一个 下一个
    《金腾奖优秀作品年鉴》 私宅丨地产丨餐饮丨酒店丨办公丨商业丨公共丨产品丨公益丨人气 jintengAWARD(小金_金腾奖组委会) 广州市海珠区琶洲大道68号华新中心21楼
    金腾奖视频号 金腾奖小红书号 监制:闫虹
    统筹:吴佳佳
    运营:朱倩仪 王赫萱 张芷莹 胡岚恩 小金
    新媒体:王贝贝 严洁 侯乐 鹅姐
    经纪:刘译遥 石征 曹凯月
    技术:张桐 黄天佑
    最终解释权归金腾奖主办方所有