Platoon's home
作品详情
  • Details of the work 标题横线
    头像或者logo
    图片 曹明 贰拾柒设计经纪特约推荐
    城市:重庆
    公司: 重庆凸沃装饰设计有限公司
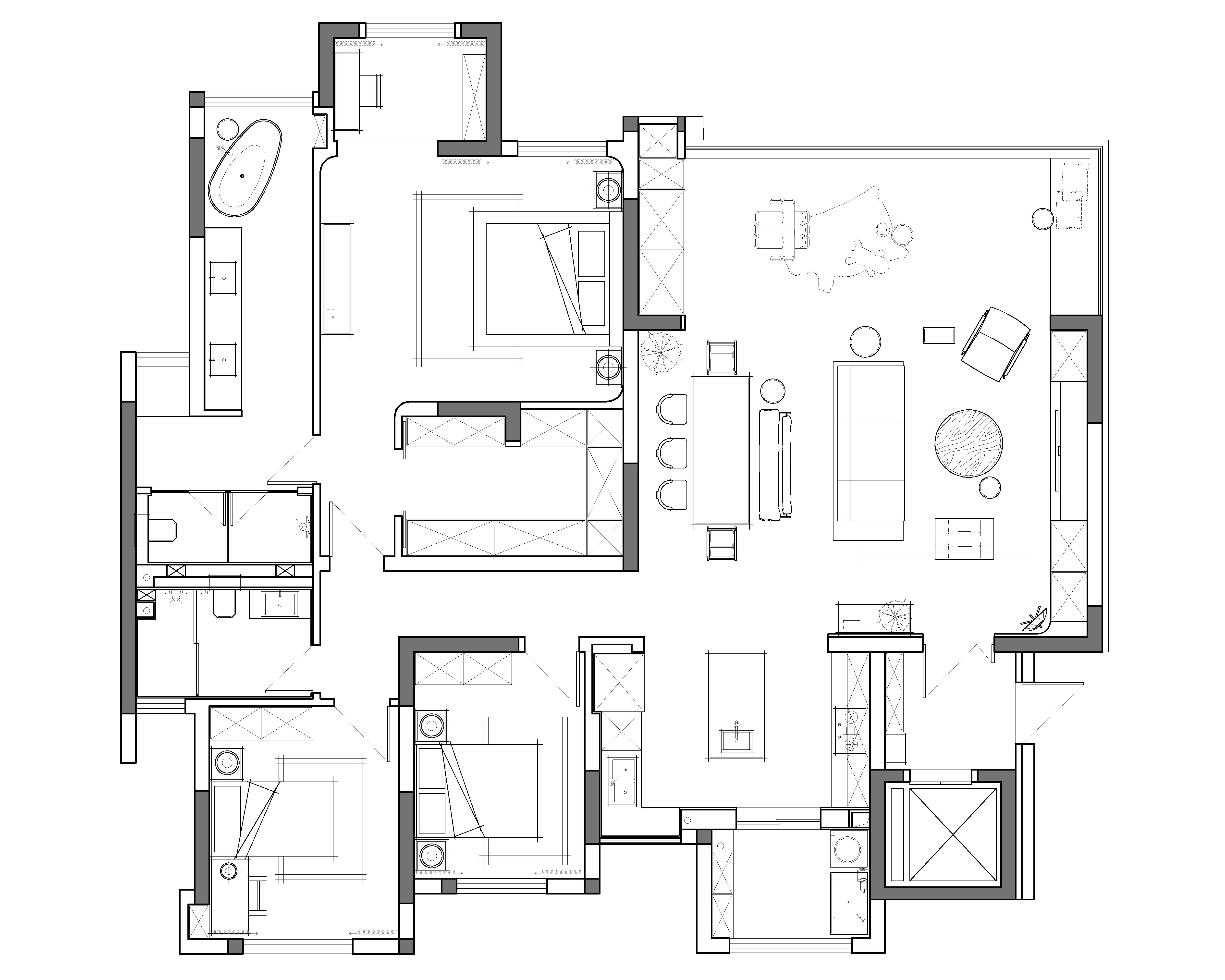
    参赛作品: 阿排的家
    空间类型:公寓(150㎡以下)
    个人/公司简介:
    毕业于四川美术学院,从业 12 年,现任重庆凸沃装饰设计有限公司 设计总监; 所获荣誉: 德国 iF DESIGN AWARD 2020 意大利 A‘DESIGN AWARD 2020 银奖 IAI DESIGN AWARD 2019 室内设计金奖 2019 IDS 国际设计先锋榜 餐饮空间 银奖 IDEA-TOPS 艾特奖 餐饮空间设计 铜奖 2019 CIID 中国室内设计大奖赛 餐饮工程类 铜奖 WYDF2019 大中华区年度 100 大杰出设计青年 2017-2018 筑巢奖 商业空间 公众类别 提名奖 2020/2019 金堂奖 年度杰出餐饮空间设计 2018/2016 金堂奖 年度优秀零售空间设计 2019/2018 红棉中国设计奖 年度最美现代空间设计 40UNDER40 中国(重庆)设计杰出青年 2020/2019/2018/2017
    设计说明 | Design Instruction
  • 平面布局创意不随主流:把客厅阳台封闭到了室内,扩大客厅活动面积,然后打掉一个卫生间用于扩大厨房,实现了一个宽敞明亮的开放式厨房。为了得到一个酒店式套房体验感的主卧,用了半个卧室来做了主卫,剩下的半个卧室空间和次卧连通做了主卧和衣帽间,这样长期使用的主卧和主卫体验感好很多。次卧和儿童房平面上没有太大的改动,只是做了一些细节上的规整。 我希望整个空间是自然感性的,在日常喧嚣下藏匿着简素的淡雅,在闲适的日常中同时充满了生活的仪式感,所以在设计的时候,我摒弃了很多繁琐的设计手法,化繁为简,就想要一个现代感的自然空间,希望回到家后是一种放松的状态。 整个硬装部分都做的比较简约,立面上并没有做太多装饰,除了客厅电视墙做了一个现代风格的壁炉之外,电视墙的这一排实木柜子都是为了满足必要的储物功能需求,墙面和顶面大面积采用了复古奶油色的艺术涂料,但是在简约的同时做了很多细节上的收口处理,一个空间的精致和品质往往就体现着这些不太引人注意的小细节上面。整个房子做了全套智能灯光设计,能够实现不同的场景需求。 在软装家具上也是选用了一些偏自然风的买手家具,墙面上也没有像传统的做法去挂一些装饰画,而是大面积留白,用少量的植物和灯光去点缀,为的就是营造除一种放松的自然感,因为平时工作的压力大,希望回到家后有一个放松的环境,也是一种精神的释放。
  • 图片
  • 图片
  • 图片
  • 图片
  • 图片
  • 图片
  • 图片
  • 图片
  • 图片
  • 图片
  • 图片
  • 图片
  • 图片
  • 图片
  • 图片
  • 图片
  • 图片
  • 图片
  • 图片
  • 上一个 下一个
    《金腾奖优秀作品年鉴》 私宅丨地产丨餐饮丨酒店丨办公丨商业丨公共丨产品丨公益丨人气 jintengAWARD(小金_金腾奖组委会) 广州市海珠区琶洲大道68号华新中心21楼
    金腾奖视频号 金腾奖小红书号 监制:闫虹
    统筹:吴佳佳
    运营:朱倩仪 王赫萱 张芷莹 胡岚恩 小金
    新媒体:王贝贝 严洁 侯乐 鹅姐
    经纪:刘译遥 石征 曹凯月
    技术:张桐 黄天佑
    最终解释权归金腾奖主办方所有