Erhai Lake
作品详情
  • Details of the work 标题横线
    头像或者logo
    图片 辰陈设 贰拾柒设计经纪特约推荐
    城市:重庆
    公司:辰陈设
    参赛作品: 洱海
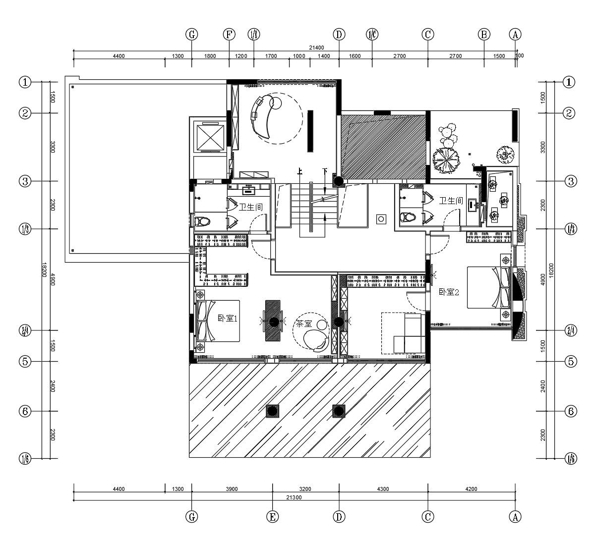
    空间类型:公寓(150㎡以下)
    个人/公司简介:
    辰陈设室内设计重庆有限公司(CHEN design)致力于高端私宅软装项目设计,当代与复古,建筑与自然,理性与感性结合,用丰富的经验将不同文化元素相互融合交叠,呈现多元的艺术空间,让人耳目一新。
    设计说明 | Design Instruction
  • “顺其自然”是整个空间的精神内核,每扇门窗都是一个取景器,将光影、蓝天碧海、自然万物的姿态恰到好处地收录于「盒子」中,撇下更多自然的注脚。 会客厅空间里,辰陈设甄选极具力量感、包裹感却不显笨重的软装产品,佐以曲线元素柔和内部方正的空间架构,恰到好处的留白塑造出简约而隽永的空间气质。落地月亮灯静静搁置在一角,月出皎兮,体量轻薄的休闲桌椅衬得自然之景愈加灵动,在柔软的触感下纵享一段舒适、惬意的休闲时光。辰陈设表达出通透可视的空间关系,让建筑与自然,空间与人建构出更亲密的美妙联系。 雾霾蓝的藤织椅与山海形成视觉上的连贯、律动感,由远及近,由近及远,在寄情山水间,氤氲出“我是人间客”的恣意洒脱。错落、变幻的空间在通透的视窗关系中交互、关联,任意一隅定格,皆是生动的取景框。 卧室承袭雅致韵味,经由影木质地的柜体吐露温润质感,透散宁静柔和的内敛,围筑倦鸟归巢的情境。自成完整体系的垫床为重舒适度的卧室提供了最优质的休息性能。 在静谧的木色与蓝调包裹下,静止的插花置入生命力的质感。命力的质感。在素色的基底下,如天鹅绒般的尖尾芋和空濛的山海构筑起空间流动的诗性。朴质为表,内里追求自然、艺术、美学的浸润,延续空间的精神内核。造型简约的折线型书桌将人的思绪让渡给清风 辰陈设将业主足以慰藉心灵的热爱装进「白盒子」里,在绝美的自然风光与妥帖的美学平衡之间,找回生命力、疗愈自我的场域,层层叠叠,温情而治愈。
  • 图片
  • 图片
  • 图片
  • 图片
  • 图片
  • 图片
  • 图片
  • 图片
  • 图片
  • 图片
  • 图片
  • 图片
  • 图片
  • 图片
  • 图片
  • 图片
  • 图片
  • 图片
  • 图片
  • 图片
  • 图片
  • 图片
  • 图片
  • 图片
  • 图片
  • 图片
  • 图片
  • 图片
  • 图片
  • 图片
  • 图片
  • 图片
  • 图片
  • 图片
  • 图片
  • 图片
  • 图片
  • 图片
  • 图片
  • 图片
  • 图片
  • 图片
  • 图片
  • 图片
  • 图片
  • 图片
  • 图片
  • 图片
  • 图片
  • 图片
  • 图片
  • 图片
  • 图片
  • 图片
  • 图片
  • 上一个 下一个
    《金腾奖优秀作品年鉴》 私宅丨地产丨餐饮丨酒店丨办公丨商业丨公共丨产品丨公益丨人气 jintengAWARD(小金_金腾奖组委会) 广州市海珠区琶洲大道68号华新中心21楼
    金腾奖视频号 金腾奖小红书号 监制:闫虹
    统筹:吴佳佳
    运营:朱倩仪 王赫萱 张芷莹 胡岚恩 小金
    新媒体:王贝贝 严洁 侯乐 鹅姐
    经纪:刘译遥 石征 曹凯月
    技术:张桐 黄天佑
    最终解释权归金腾奖主办方所有