Tianlang
作品详情
  • Details of the work 标题横线
    头像或者logo
    图片 敬燕 贰拾柒设计经纪特约推荐
    城市:重庆
    公司: 山米空间设计
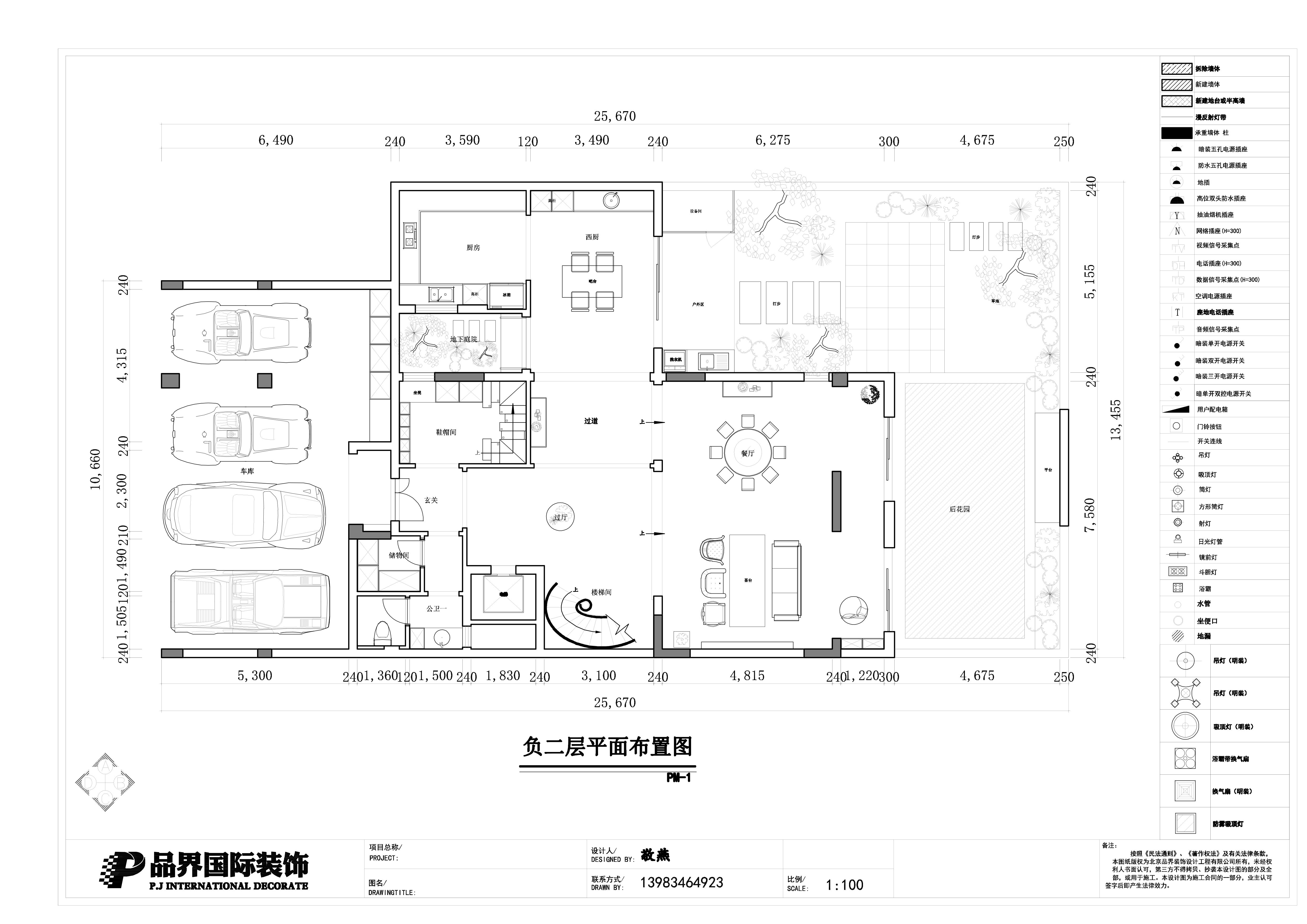
    参赛作品: 天琅
    空间类型:公寓(150㎡以下)
    个人/公司简介:
    设计理念: 给人温暖的设计。 所获荣誉: 2021中国新地产设计大会·年度别墅优秀设计师提名; 2021芒果奖入围; 2021红棉中国设计奖-最美雅奢奖; 2021设计有思想设计大奖提名奖 2021设计有思想设计大奖提名奖
    设计说明 | Design Instruction
  • 本案中设计师以业主的喜好和态度为设计原点,大胆用色,将缤纷元素植入日常,串联起反映生活的场景与片段,实现色彩与艺术交融的空间内涵。每个空间,都有着自己的表达语言与生长形式,以一致的步调串联,却不失独特的个性。设计师以巧妙而简约的搭配,色彩的丰富层叠赋予着生活情趣,然而更多的还是留白设计,让空间能够以可持续的形态去承载居者未来生活的痕迹。
  • 图片
  • 图片
  • 图片
  • 图片
  • 图片
  • 图片
  • 图片
  • 图片
  • 图片
  • 图片
  • 图片
  • 图片
  • 图片
  • 图片
  • 图片
  • 图片
  • 图片
  • 图片
  • 图片
  • 图片
  • 图片
  • 图片
  • 图片
  • 图片
  • 图片
  • 上一个 下一个
    《金腾奖优秀作品年鉴》 私宅丨地产丨餐饮丨酒店丨办公丨商业丨公共丨产品丨公益丨人气 jintengAWARD(小金_金腾奖组委会) 广州市海珠区琶洲大道68号华新中心21楼
    金腾奖视频号 金腾奖小红书号 监制:闫虹
    统筹:吴佳佳
    运营:朱倩仪 王赫萱 张芷莹 胡岚恩 小金
    新媒体:王贝贝 严洁 侯乐 鹅姐
    经纪:刘译遥 石征 曹凯月
    技术:张桐 黄天佑
    最终解释权归金腾奖主办方所有