Half Quiet
作品详情
  • Details of the work 标题横线
    头像或者logo
    图片 杨冬青 安徽ASDA 言设特约推荐
    城市:合肥
    公司: 安徽之间装饰设计
    参赛作品: 一半静谧
    空间类型:公寓(150㎡以下)
    个人/公司简介:
    姓名:杨冬青 公司名称: 安徽之间装饰设计 职位:设计总监 从业年限:13年 设计理念:了解客户对设计的核心诉求,以使用者为中心,来设计建筑物和室内空间。 个人介绍:从业十二年来设计完成200多例作品,包含了私宅空间,商业空间,文化空间,教育空间等。我认为设计师要想成为各行各业的“专家”几乎是不可能的事,因此,开放、分享、连接、协作,建立一套完善服务系统是帮助我们设计公司更好的发展,协助我们将速度、规模和品质发生质的改变。未来规划发展方向将致力于全案落地,更精准化系统化的交付出品优质的设计作品。 个人经历及荣誉: 2019年至今 安徽之间装饰设计有限公司法人兼设计总监 2011年至2019年 个人独立设计师 2010年至2011年 成都川豪装饰合肥分公司设计师  2009年至2010年 广东星艺装饰合肥分公司设计师 安徽ASDA 言設理事会员 金堂奖2022年度城市(合肥)十佳 广州设计周40UNDER40 中国(蚌埠)设计杰出青年2022 2022年度Hi-Design室内设计大奖赛 合肥设计精英奖 上海国际设计周 金梁设计奖 上海国际设计周 人居住房设计奖 广东省IBID设计专委会城际执行长 网易2022 城市设计精英榜TOP50 阿里巴巴每平每屋星级 设计师 望湖美家居2022 设计之星 2022中国国际空间设计大赛 优秀奖 2022首届“徽匠杯”空间设计大赛 三等奖 2022上海国际设计周 金梁设计奖 2021上海国际设计周 人居住房设计奖
    设计说明 | Design Instruction
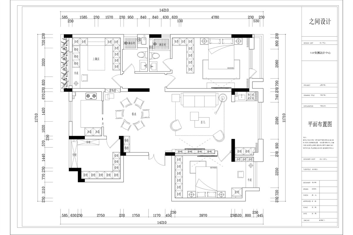
  • 本方案为安徽合肥湖山源著小区140㎡四室两厅一厨两卫的空间设计。业主为一家三口居住,业主对房间的收纳功能也有较高要求,希望设计师能够为家庭带来更多的收纳空间,将生活杂物收纳起来,让收纳空间也能够为极简风格起作用。针对业主的生活习惯及喜好,本案设计师采用简洁的线条及色块,将空间进行合理的分割。整体色调以暗色为主色调,这样的设计使业主在应对扰攘的都市生活种,可以有一处让心灵沉淀的生活空间,是业主心中一份渴望。没有夸张,不显浮华,干净的设计手法,将业主的向往的生活巧妙融入到室内空间中。所有空间在灯光设计上采用无主灯的设计,让整个空间看起来更加干净利落。
  • 图片
  • 图片
  • 图片
  • 图片
  • 图片
  • 图片
  • 图片
  • 图片
  • 图片
  • 图片
  • 图片
  • 图片
  • 上一个 下一个
    《金腾奖优秀作品年鉴》 私宅丨地产丨餐饮丨酒店丨办公丨商业丨公共丨产品丨公益丨人气 jintengAWARD(小金_金腾奖组委会) 广州市海珠区琶洲大道68号华新中心21楼
    金腾奖视频号 金腾奖小红书号 监制:闫虹
    统筹:吴佳佳
    运营:朱倩仪 王赫萱 张芷莹 胡岚恩 小金
    新媒体:王贝贝 严洁 侯乐 鹅姐
    经纪:刘译遥 石征 曹凯月
    技术:张桐 黄天佑
    最终解释权归金腾奖主办方所有