Time love letter
作品详情
  • Details of the work 标题横线
    头像或者logo
    图片 王志强&李姗珊 室内设计联盟特约推荐
    城市:潍坊
    公司: 壹米设计事务所
    参赛作品: 时光情书
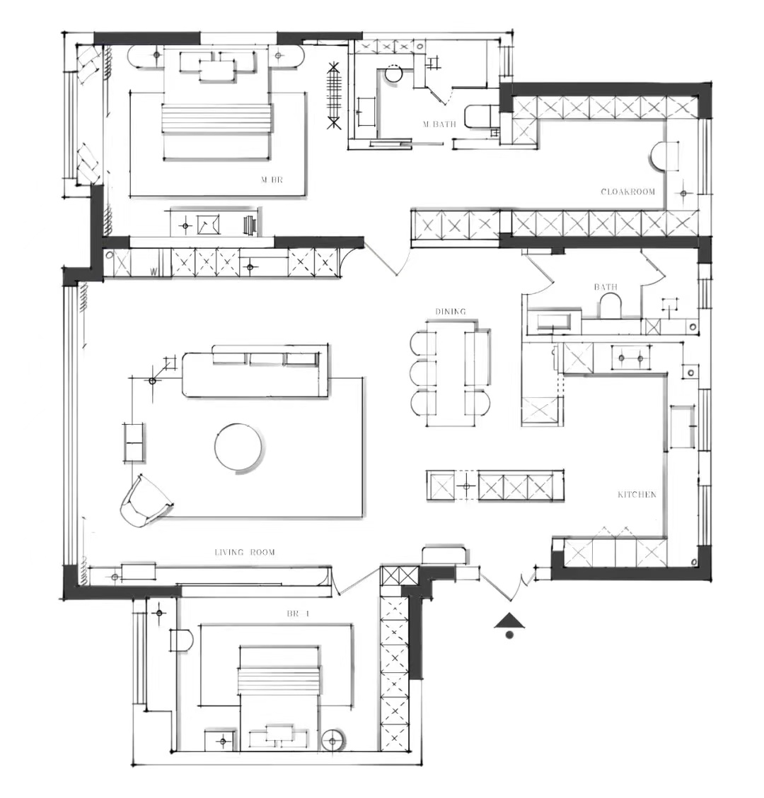
    空间类型:公寓(150㎡以下)
    个人/公司简介:
    2010年参加工作 2018年创办壹米设计事务所担任主案设计师 荣获奖项 2022 芒果奖 住宅/公寓类空间 全国Top100 红棉设计奖项·2022年度最美极简空间设计奖 2022 芒果奖·十间坊实战赛事入围奖 2022 金住奖-中国(黄岛)十大居住空间设计师 2022-2023 40 UNDER 40 中国(青岛)设计杰出青年 2022年度(青岛)老宅新生设计奖 · 十大改造设计师 2022 最有温度私宅设计Top 500 2022金案奖 · 全国优胜 2022 每平每屋 Top 300 2021 金住奖-中国(潍坊)十大居住空间设计师 2021 我要去米兰 Top 100 2021 营造家奖 Top 500 设计理念:每套房子每个家,都应该有屋主自己的模样。
    设计说明 | Design Instruction
  • 三口之家,四室改两室,女主人知性优雅,拥有各式各样的衣物,独立的衣帽间更加方便存放和打理。 男主人爱好烹饪,是一个能够将茶米油盐变为琴棋书画的人,精心的设计让他能够更好的享受制作美食的快乐。女儿尤其喜好做手工,一张大长桌满足对手工制作的需求。 整体风格以现代风格为基调,软装产品上加入了一些复古的元素。硬装做了一些减法,以点线面来表达空间的功能划分,色彩方面以暖棕色贯穿整体,藤编门板,牛蜡皮沙发,这么元素的揉入让整体氛围多了复古的味道,给整个家营造一种放松慵懒的感觉。
  • 图片
  • 图片
  • 图片
  • 图片
  • 图片
  • 图片
  • 图片
  • 图片
  • 图片
  • 图片
  • 图片
  • 图片
  • 图片
  • 图片
  • 图片
  • 图片
  • 图片
  • 图片
  • 图片
  • 图片
  • 图片
  • 图片
  • 上一个 下一个
    《金腾奖优秀作品年鉴》 私宅丨地产丨餐饮丨酒店丨办公丨商业丨公共丨产品丨公益丨人气 jintengAWARD(小金_金腾奖组委会) 广州市海珠区琶洲大道68号华新中心21楼
    金腾奖视频号 金腾奖小红书号 监制:闫虹
    统筹:吴佳佳
    运营:朱倩仪 王赫萱 张芷莹 胡岚恩 小金
    新媒体:王贝贝 严洁 侯乐 鹅姐
    经纪:刘译遥 石征 曹凯月
    技术:张桐 黄天佑
    最终解释权归金腾奖主办方所有