Jinke Times Center
作品详情
  • Details of the work 标题横线
    头像或者logo
    图片 李晓丽 贰拾柒设计经纪特约推荐
    城市:重庆
    公司: 重庆贝恩设计
    参赛作品: 金科时代中心
    空间类型:公寓(150㎡以下)
    个人/公司简介:
    工作年限:17年 社会职务:中国精英设计师国际俱乐部 ICCED(重庆)城市合伙人 毕业院校:重庆大学 所学专业:室内装潢设计专业 设计宣言:细节成就大局,设计远见未来! 擅长空间类别:现代、轻奢、简美、新中式、 主要成就:国家注册高级室内设计师 国家注册二级照明设计师 国家注册三级心理咨询师 获奖经历:格美设计特驱2019年度最佳新锐设计师 2019中国金鹰设计大赛金奖 代表作品:保利高尔夫、庆隆高尔夫、 融创国博城、远洋高尔夫金茂墅、碧桂园清水溪、金茂茂悦府、恒大世纪城、中铁山语城、渝能嘉湾壹号、金茂墅、御景湖山、望江府、约克郡、星麓原、中骏天玺、金开融府 、南山郡、金科时代中心、铂悦滨江等等。
    设计说明 | Design Instruction
  • 设计师与本案业主意外相识,相谈甚欢,在审美意趣上有着高度的契合。业主双方则默契十足,认为家不仅是满足居住的功能空间,更是爱与诚的浪漫之所。将经典艺术与现代设计结合,以二次创作的画作致敬经典,注入澄净秀雅的主基调,艺术化地展现独到的品味。极简线条勾勒墙面纹理,突出中心轴线的对称布局,顶面设计的圆形雕花灯盘,于细微处渲染法式优雅,随着轻盈吊灯的光影赋予空间流动的浪漫。以几何形态伫立的灯具打破沉闷,在变幻中寻求一种生长的平衡,淡雅的光线自带家的温馨。设计师在极致严谨的细节把控下,造就专属的美学生活方式,将视觉元素植入多重空间,以高级设计感传递优雅、浪漫的生活格调。
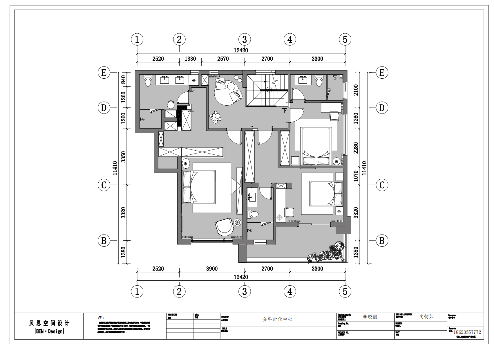
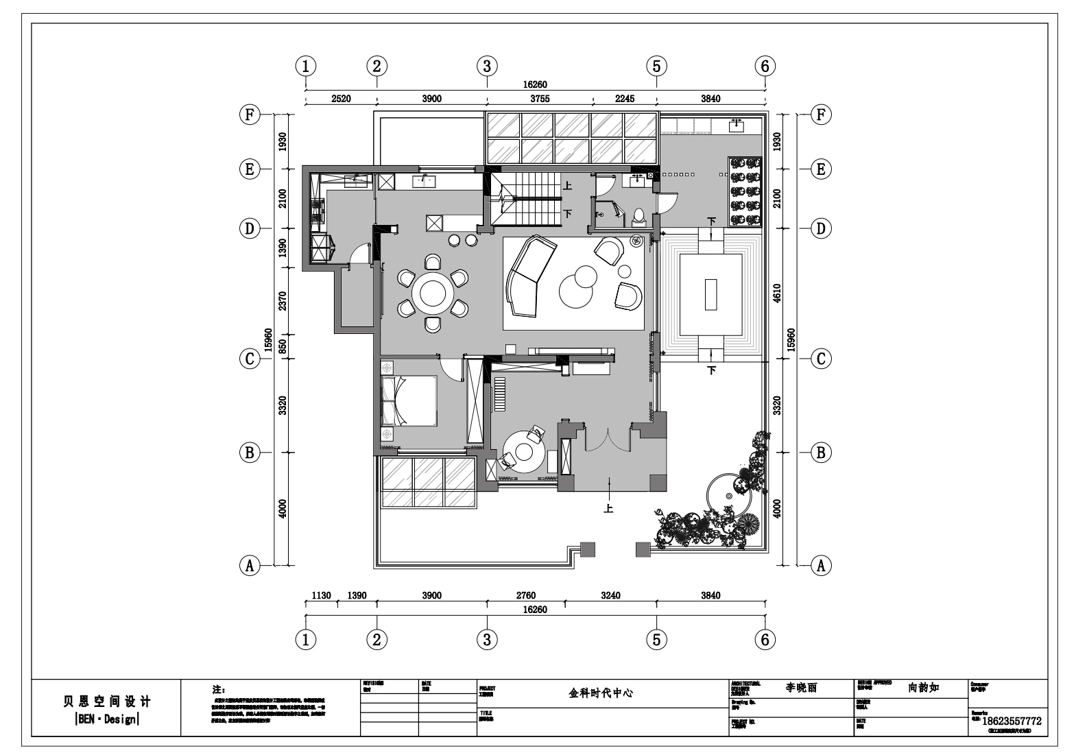
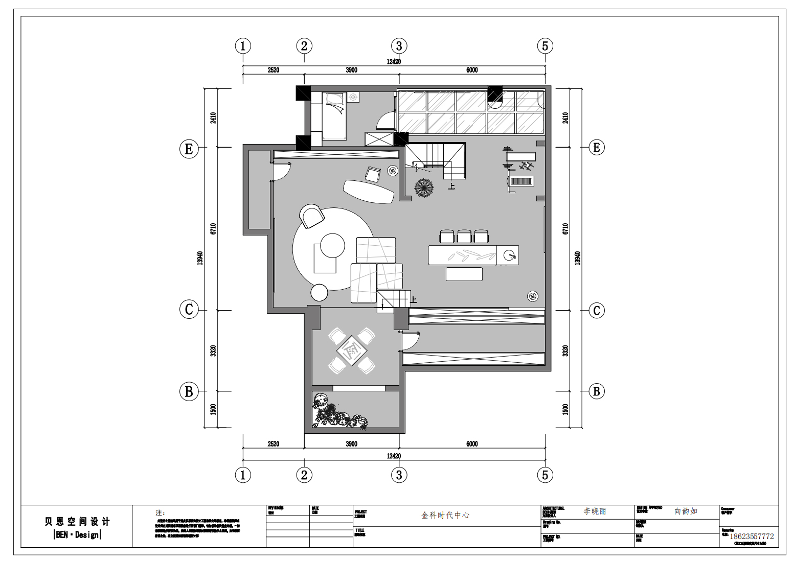
  • 图片
  • 图片
  • 图片
  • 图片
  • 图片
  • 图片
  • 图片
  • 图片
  • 图片
  • 图片
  • 图片
  • 图片
  • 图片
  • 图片
  • 图片
  • 图片
  • 图片
  • 图片
  • 图片
  • 图片
  • 图片
  • 图片
  • 图片
  • 上一个 下一个
    《金腾奖优秀作品年鉴》 私宅丨地产丨餐饮丨酒店丨办公丨商业丨公共丨产品丨公益丨人气 jintengAWARD(小金_金腾奖组委会) 广州市海珠区琶洲大道68号华新中心21楼
    金腾奖视频号 金腾奖小红书号 监制:闫虹
    统筹:吴佳佳
    运营:朱倩仪 王赫萱 张芷莹 胡岚恩 小金
    新媒体:王贝贝 严洁 侯乐 鹅姐
    经纪:刘译遥 石征 曹凯月
    技术:张桐 黄天佑
    最终解释权归金腾奖主办方所有