Undecided meaning-surging space
作品详情
  • Details of the work 标题横线
    头像或者logo
    图片 卢维涛 贰拾柒设计经纪特约推荐
    城市:广州
    公司: G.M INTERIORS
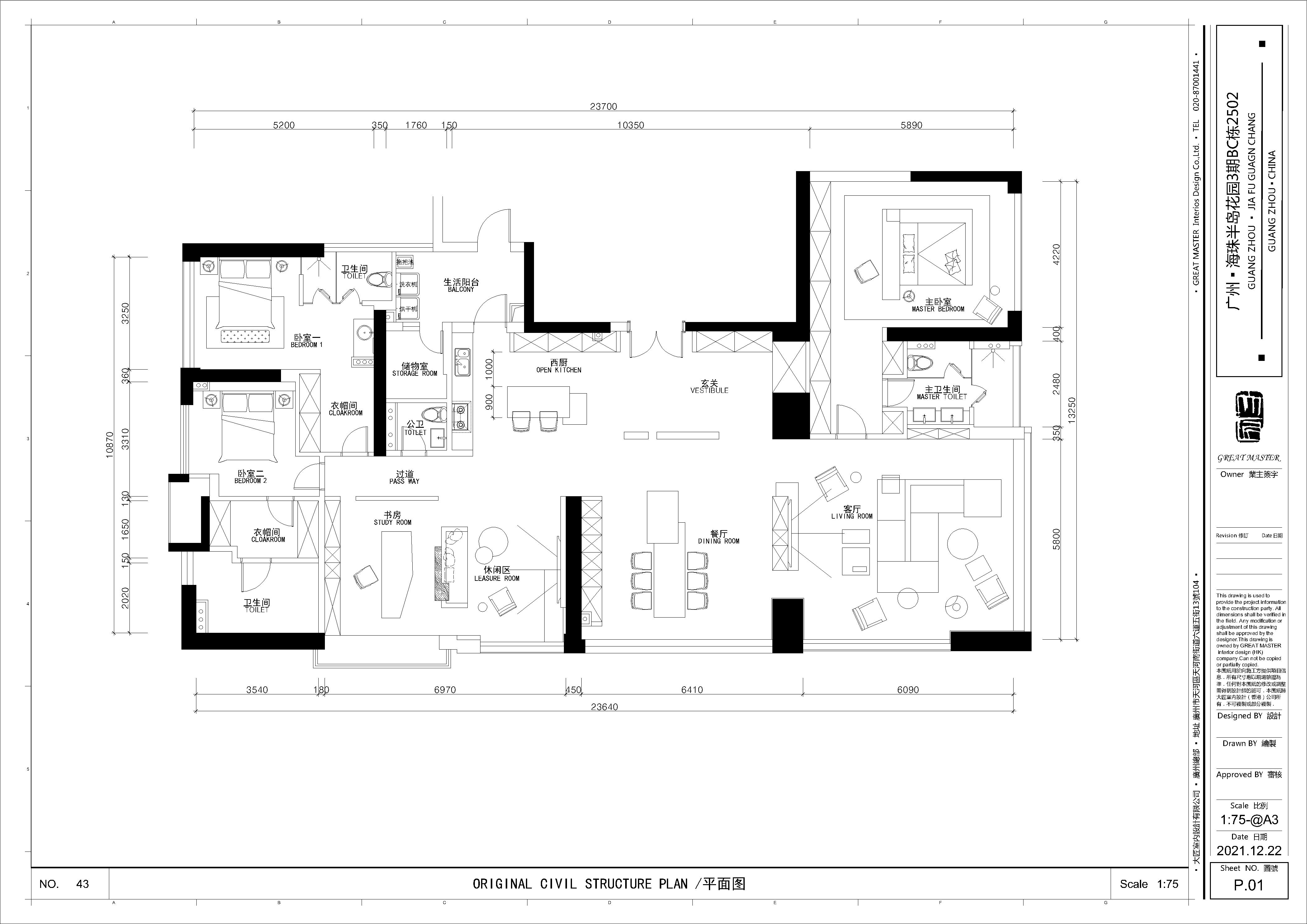
    参赛作品: 未 决 之 意 ——涌动的空间
    空间类型:公寓(150㎡以下)
    个人/公司简介:
    卢维涛 资深与杰出室内建筑师 国际建筑装饰协会认证专业设计师 中国高级室内建筑师 G.M INTERIORS创始人
    设计说明 | Design Instruction
  • 清醒与陷入 无论是设计语言,还是空间建构,我们都在试图营造一个新的叙事结构。 当空间中的火苗冉冉升起,随之而来的是空间交错的穿越感。暂别俗事,精神愉悦,周 身溢满当年尼采转译的“酒神精神”。 主城中芯,珠江之上,兼收繁华城市的自然盛景。城市之下,涌动着一个充满张力的摩 登之域。 我们希望它既满足业主生活中的诸多爱好,惬意自在,又不脱离住宅本身的属性。和窗 外的景色相比,它基调温和。远离尘嚣,笃定地坐拥城市之繁华。 在隐藏着静谧的空间语言之中,生活与爱好充分交融,深入体验,皆是轻叩五感的舒适。 界限与渗透 将中规中矩的原平面解构、分离、再萃取,组合成一种全新的空间体验。 玄关通过对直观视线的扰动,诠释了不同视角的“看与被看”,相互渗透之间,空间上 的界限消弭。 自客餐厅为始直至书房、休闲区,动与静之间形成有节奏的空间律动,清晰分明的功能 区域又保证了空间本身的利用率。以醇厚的摩卡棕为主调,克制的配色与温柔细腻的材料质 感构建出摩登的调性。配饰在意趣盎然之间,引人挖掘具象事物与抽象情感之间的共鸣。结 合空间平面的舒展,设计打破了住宅空间寻常的刻板印象,呈现出如艺术展厅的沉静感。 都市生活,辗转至内心深处,是一种迷醉后精神上的自省。正如我们昔日地融入,或许 是为了能在某些时刻,可以与它保持微妙而适当的距离。 舒展与暧昧 以情绪和欲望的积累为起点,理想的居住空间,包容着人们对生活的热望。 正如壁炉在有限的空间尺度下参与到整个形体建构中,赋予场所更多想象与趣味。 兼具了美观和功能,摩登和实用,颇具内涵且不矫饰。对于设计而言,能够灵活转换在 不同生活模式间的住宅,视觉和心理感受都需要关照、呼应与过渡。我们选择将人性中的慵 懒与探知的欲望碰撞糅合,在舒展和暧昧之间,感官上的愉悦互相加持,空间得以包容更多 情绪。 摩登与隽永 今天的住宅,并不嵌套在五花八门的“风格”公式之下,更多的是对人内心本源欲望的 唤醒,开启与居住者身心契合、且随生活脉络的延续而持续生长的隽永生命体。
  • 图片
  • 图片
  • 图片
  • 图片
  • 图片
  • 图片
  • 图片
  • 图片
  • 图片
  • 图片
  • 图片
  • 图片
  • 图片
  • 图片
  • 图片
  • 图片
  • 图片
  • 图片
  • 图片
  • 图片
  • 图片
  • 图片
  • 图片
  • 图片
  • 图片
  • 图片
  • 图片
  • 图片
  • 图片
  • 图片
  • 图片
  • 图片
  • 图片
  • 图片
  • 图片
  • 上一个 下一个
    《金腾奖优秀作品年鉴》 私宅丨地产丨餐饮丨酒店丨办公丨商业丨公共丨产品丨公益丨人气 jintengAWARD(小金_金腾奖组委会) 广州市海珠区琶洲大道68号华新中心21楼
    金腾奖视频号 金腾奖小红书号 监制:闫虹
    统筹:吴佳佳
    运营:朱倩仪 王赫萱 张芷莹 胡岚恩 小金
    新媒体:王贝贝 严洁 侯乐 鹅姐
    经纪:刘译遥 石征 曹凯月
    技术:张桐 黄天佑
    最终解释权归金腾奖主办方所有