The river and the mountain Yue
作品详情
  • Details of the work 标题横线
    头像或者logo
    图片 七卡全案设计 贰拾柒设计经纪特约推荐
    城市:重庆
    公司:七卡全案设计
    参赛作品: 江山樾
    空间类型:公寓(150㎡以下)
    个人/公司简介:
    七卡全案设计,2019年创立于重庆,是一个专注高端私宅设计、商业空间设计及地产项目设计的多元化创意整合服务机构。
    设计说明 | Design Instruction
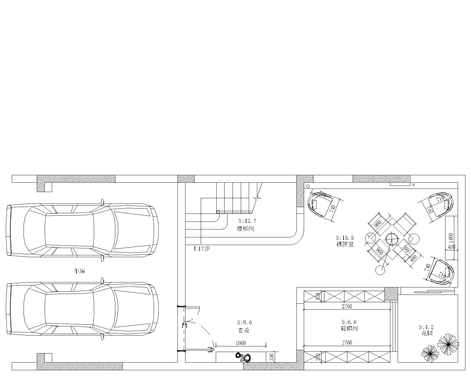
  • 设计师在细节上的巧妙设计,独具特色与深意。以铜饰面为视觉主导的玄关处质感十足,深沉的黑色搭配着铜元素,细微之处流露着高贵典雅,彰显着主人的品味与内涵。金色的木雕手工肌理画作为空间形象墙立于墙面,富含人文情愫,装饰柜上点缀着同色系的拉手,柜边是黑色的衬线,与铜门互为映衬,整体空间更加协调统一。 室内采用爵士白石为主要用材,蜿蜒的山水肌理清晰、流畅,自带一种极简且丰盈的奢华气质。楼梯下方则采用山林造景,与石阶纹理相融合,呈现出寄情于山水之意,将自然植入生活。以石材、玻璃组合的半旋转式楼梯,线条利落大方,轻盈透气。拾阶而上,感官的漂浮与脚底的实感交汇,颇具意趣。 客厅整体以雅致的灰白为主基调,百叶窗沉淀下的光影恰到好处的温润。客餐厅像是咬合的齿轮,开放式设计,家庭的氛围温馨且融洽。周边的布景可随时间的推移任意搭配,呈现四季的变换,打造适宜的用餐环境。 卧室主要采用护墙,饰面的天然木皮,让居者从大自然中汲取灵感,并将其转化为生活的艺术。卫生间延续了寝具的统一格调,极简、干净、通透、动静分区。 孩房以灰绿色为主,在延续简洁的设计基础上,增添绿植、书桌等定制化配置,书柜+收纳架的隔断设计不仅方便整理,更有一丝文艺气息。女孩房将温和的粉色、金橘色作为主色,用浅色系调和,安谧且梦幻。
  • 图片
  • 图片
  • 图片
  • 图片
  • 图片
  • 图片
  • 图片
  • 图片
  • 图片
  • 图片
  • 图片
  • 图片
  • 图片
  • 图片
  • 图片
  • 图片
  • 图片
  • 图片
  • 图片
  • 图片
  • 图片
  • 图片
  • 图片
  • 图片
  • 图片
  • 图片
  • 图片
  • 图片
  • 图片
  • 图片
  • 图片
  • 图片
  • 图片
  • 图片
  • 图片
  • 上一个 下一个
    《金腾奖优秀作品年鉴》 私宅丨地产丨餐饮丨酒店丨办公丨商业丨公共丨产品丨公益丨人气 jintengAWARD(小金_金腾奖组委会) 广州市海珠区琶洲大道68号华新中心21楼
    金腾奖视频号 金腾奖小红书号 监制:闫虹
    统筹:吴佳佳
    运营:朱倩仪 王赫萱 张芷莹 胡岚恩 小金
    新媒体:王贝贝 严洁 侯乐 鹅姐
    经纪:刘译遥 石征 曹凯月
    技术:张桐 黄天佑
    最终解释权归金腾奖主办方所有