River and city · Tianyi
作品详情
  • Details of the work 标题横线
    头像或者logo
    图片 悦空间设计 贰拾柒设计经纪特约推荐
    城市:重庆
    公司:悦空间设计
    参赛作品: 江与城·天奕
    空间类型:公寓(150㎡以下)
    个人/公司简介:
    悦空间成立于2011年,专注于室内设计、建筑设计、景观设计。始终将热爱与专业,匠造于每个作品让你透过设计,感知生活美好。
    设计说明 | Design Instruction
  • 设计师在本案的塑造上,取其意、去其形,将流畅的居家动线,疏朗的生活格局一一还原,让空间在素净的基调下尽显随性自由。简而明朗的线条与色泽,木调的温润平静、金属的高质光感,在克制与平衡间,让家似岁月沉淀后散发出内敛之美,居于此,任凭感官跟随空间沉浸游走,铺展出一处隐逸于自然的疗愈之境。 玄关处茂盛的绿植将空间的生命之感呈现得淋漓尽致,透露的光影映入眼帘,让家在“光合作用”间,呈现一幅生活生长延续的自在画面。玄关处恰将会客厅与西厨空间区分开来,隐秘中似有“曲径通幽”的戏剧意蕴,在这种合理的“窥探”设置中,也让空间的不同高质感在若隐若现中呈显着惊喜。向左步入,疏朗高挑的会客厅堆叠出空间与视觉的界面平衡,意式极简彰显着沉稳大气的精英格局,木制格栅盛放居者所藏,一体到顶的灰粽调柜体诠释着现代简约时尚的高品位追求。以精致的软装凸显质感,沉稳中略带轻奢华丽,奶白色的沙发、单椅在一日光影的流转中变幻着不同写意。背靠会客厅,落地窗巧妙框景,将室外园林纳入,让休闲区域更显得惬意舒适。此刻,意式美学和东方意趣开启了无限的对话,生活的气息缱绻相融,唯美且浪漫。西厨空间运用不同材质做了完美融合,大尺寸落地窗的搭配无限放大景观界面,光景被最大化地保留于空间之中。硬朗的岛台与造型感十足的吧椅带来结构力道,玫瑰金色系的装饰点缀着空间,体现灵动的层次感,光在室内跳跃,延伸了空间视觉上的深度与广度,塑造出冷与暖的优雅平衡。 拾阶而上,一层家庭厅则更为融合,全开放的客餐厅布局极大地延伸了空间感,调动了客餐厅与厨房的互动与联系。恬淡雅致的空间气质则藏于细节之处,客厅在奶白的肌理之下,以墨绿的单椅与绿植点缀其间,厨房空间则选用黄铜质感的灯具,透露出空间个性,象征着对未来感的触碰。 简约所呈现的状态,便是心安稳,亦身体自在,卧室空间虽选用沉稳质感的灰调,柔软床头背靠、床品却也无形中增添了一份舒适的包裹感。
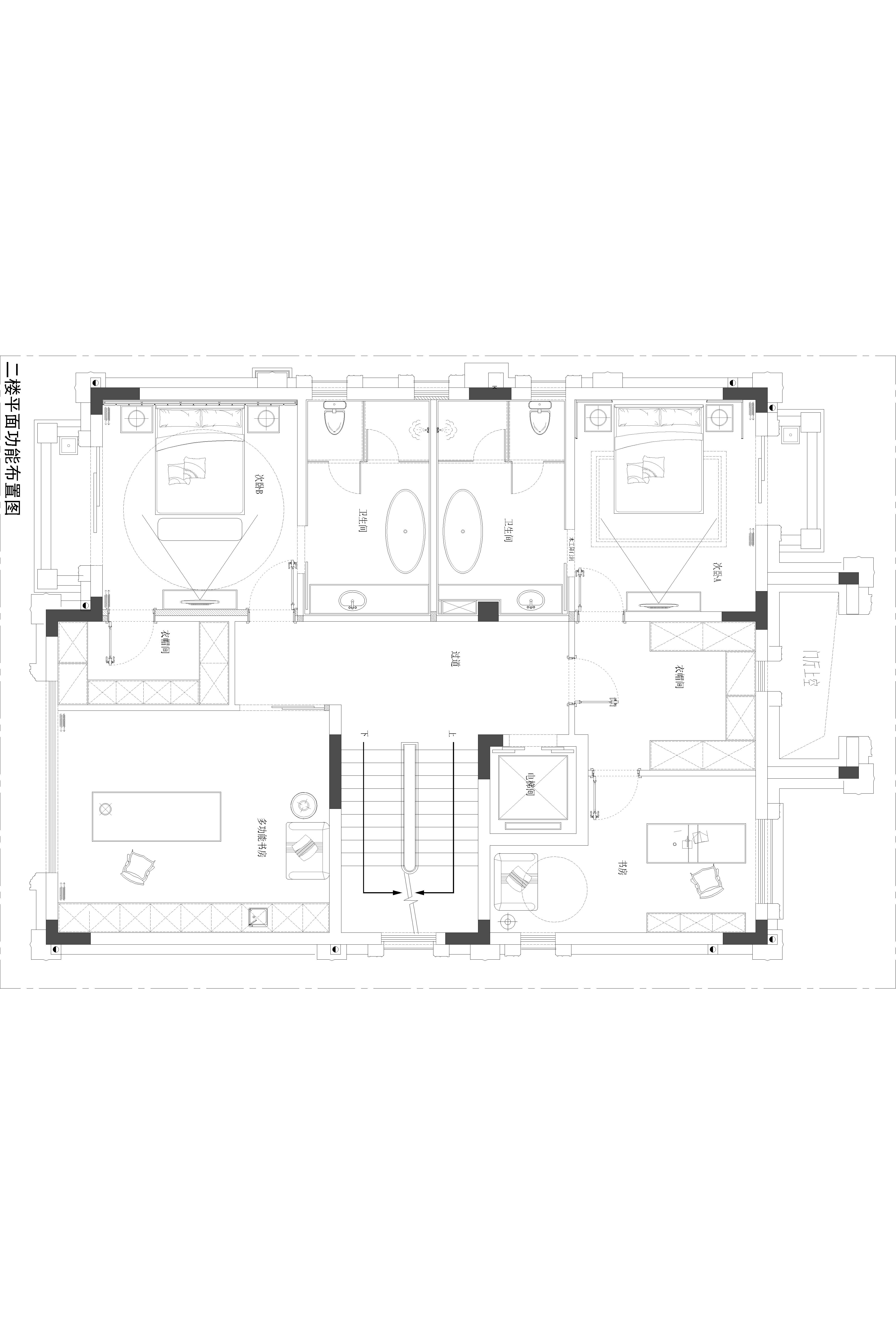
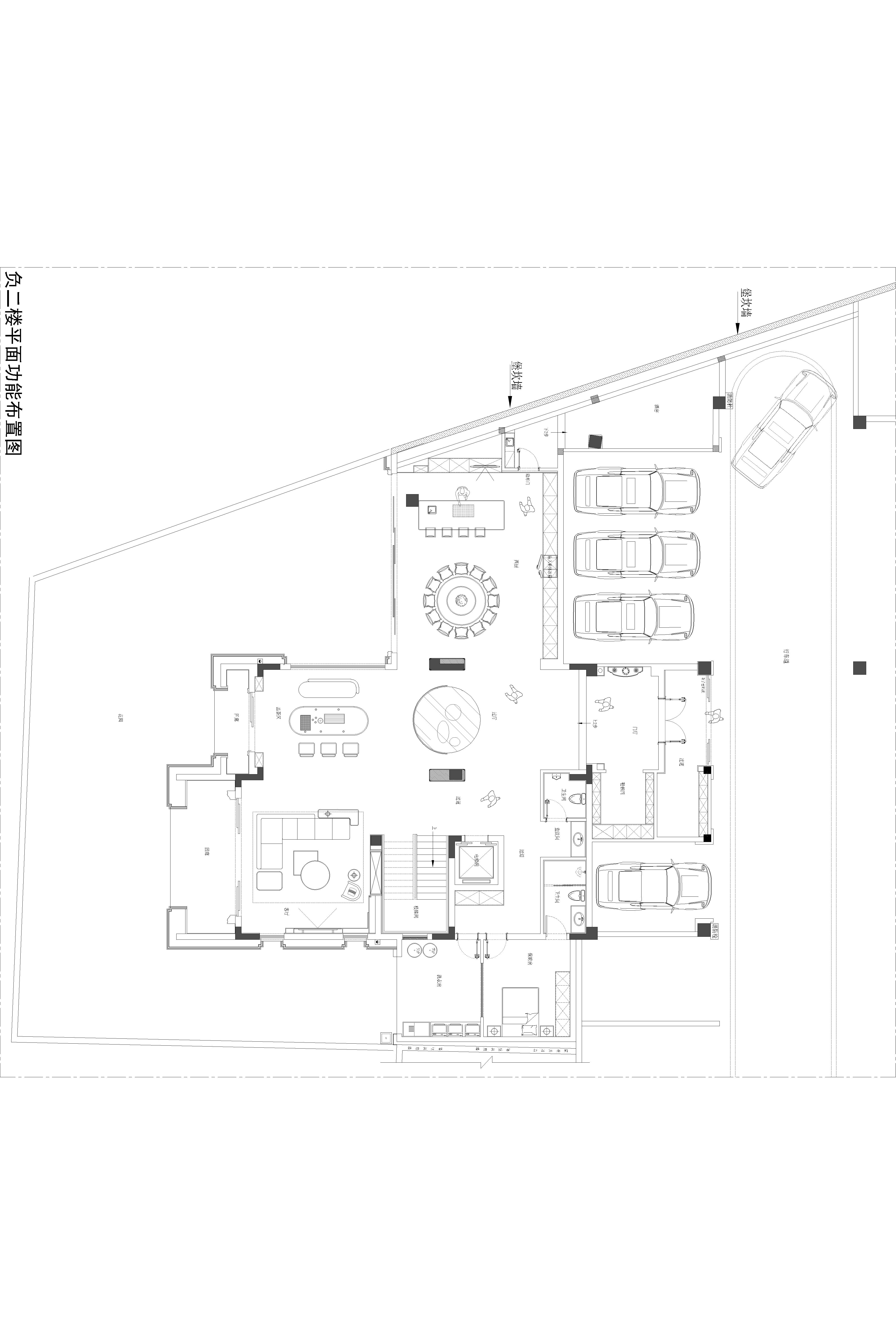
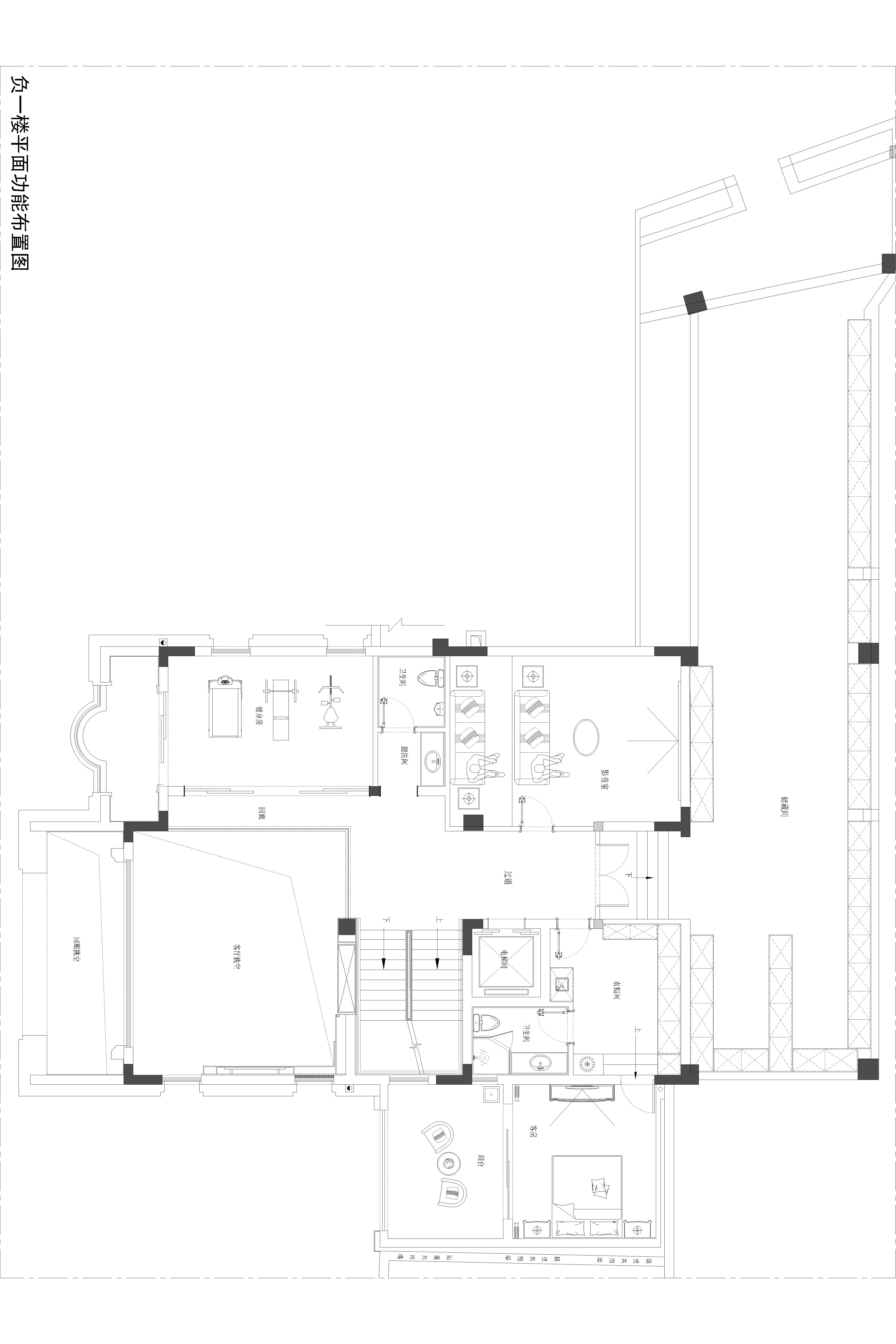
  • 图片
  • 图片
  • 图片
  • 图片
  • 图片
  • 图片
  • 图片
  • 图片
  • 图片
  • 图片
  • 图片
  • 图片
  • 图片
  • 图片
  • 图片
  • 图片
  • 图片
  • 图片
  • 图片
  • 图片
  • 图片
  • 图片
  • 图片
  • 图片
  • 图片
  • 图片
  • 图片
  • 图片
  • 图片
  • 图片
  • 上一个 下一个
    《金腾奖优秀作品年鉴》 私宅丨地产丨餐饮丨酒店丨办公丨商业丨公共丨产品丨公益丨人气 jintengAWARD(小金_金腾奖组委会) 广州市海珠区琶洲大道68号华新中心21楼
    金腾奖视频号 金腾奖小红书号 监制:闫虹
    统筹:吴佳佳
    运营:朱倩仪 王赫萱 张芷莹 胡岚恩 小金
    新媒体:王贝贝 严洁 侯乐 鹅姐
    经纪:刘译遥 石征 曹凯月
    技术:张桐 黄天佑
    最终解释权归金腾奖主办方所有