Light and shadow reconstruction
作品详情
  • Details of the work 标题横线
    头像或者logo
    图片 悦空间设计 贰拾柒设计经纪特约推荐
    城市:重庆
    公司:悦空间设计
    参赛作品: 光影重塑
    空间类型:公寓(150㎡以下)
    个人/公司简介:
    悦空间成立于2011年,专注于室内设计、建筑设计、景观设计。始终将热爱与专业,匠造于每个作品让你透过设计,感知生活美好。
    设计说明 | Design Instruction
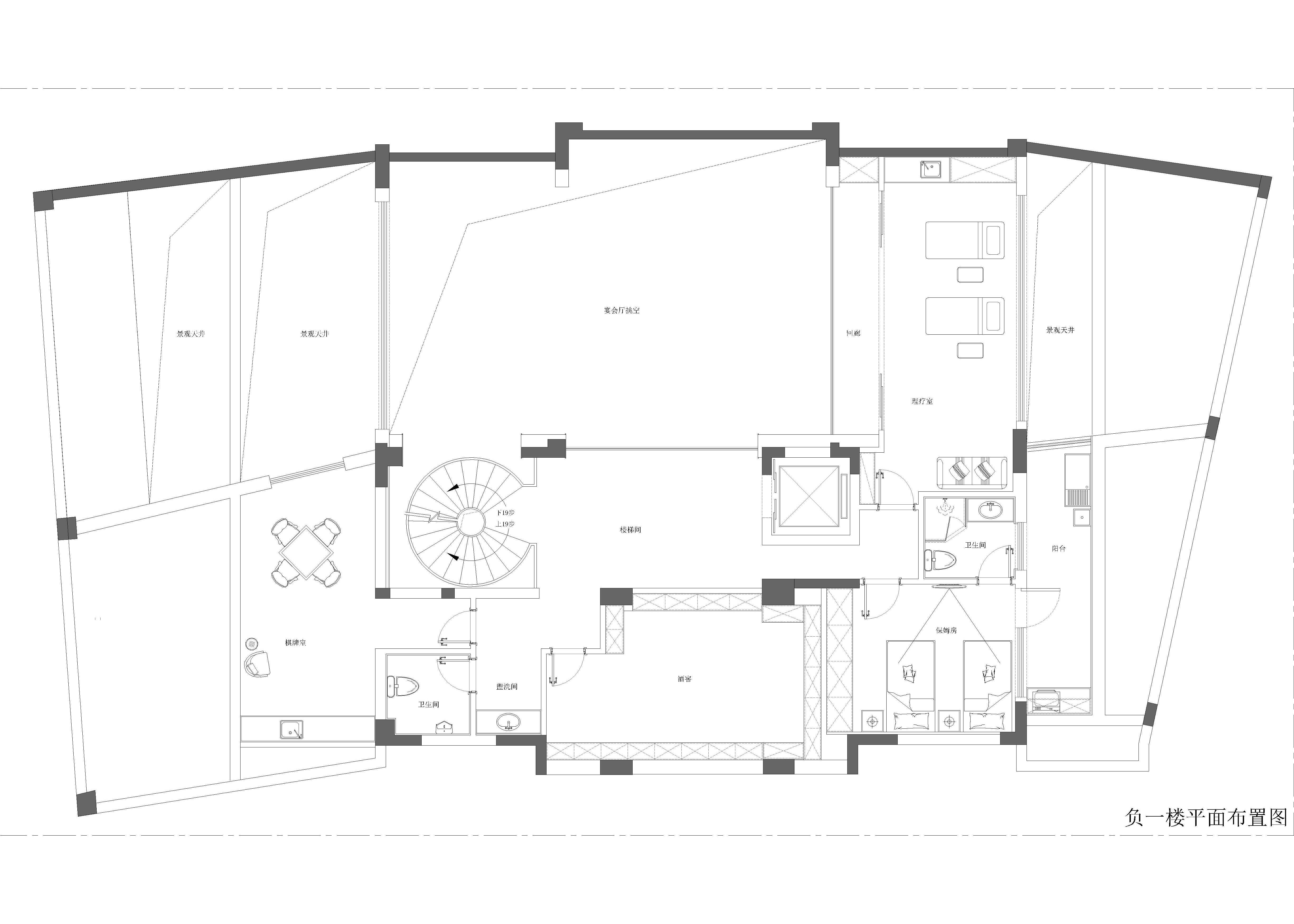
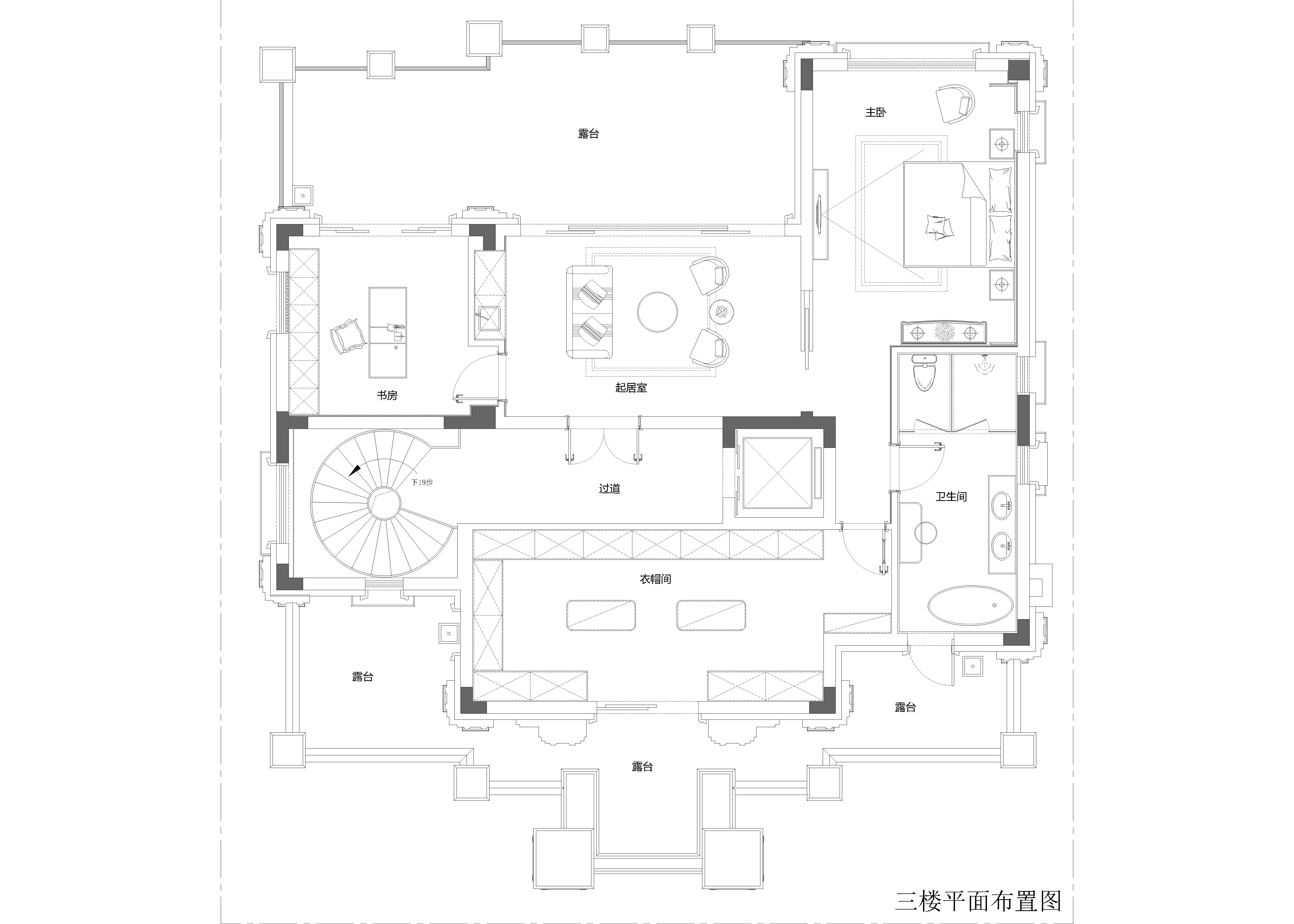
  • 我们将原本较小的天井做出扩大设计,在不破坏原始梁位的前提下,通过专业计算,拆除部分楼板,对天井进行了最大化的扩大。我们更将一抹白色的旋转楼梯坐落于空间之中,作为点睛之笔。在光影的呼应下,那份伴随着旋转与螺旋产生的线条感,赋予空间以生命与活力,实现了实用和艺术的完美结合。天井的改动实现了地下室休闲区域的全采光,不仅保证了空气的自然流通,也让空间更加的宽敞明亮、温馨大气。 负二楼挑空区域约70㎡,前后花园的自然格局加上天井的采光,使空间的通透感展现得更为饱满,这里包含的会客厅与西厨区域皆选用了黑色、深灰的背景墙和柜体,更显沉稳轻奢质感。会客厅内配以白色弧形沙发、绿色丝绒沙发凳,在绿植的点缀间,让空间独添了一份奢雅和柔和;玻璃落地灯在黑色背景墙的映照下更显清透,配以暖意的壁炉设计,一动一静,也能充分感受到光影在空间的流动与韵味。在西厨区域,大理石的清新肌理与稳重木纹吊顶相得益彰,配合金属质感的吊灯,让极简的空间多了一分温暖质感和烟火气息,岛台的绿植灵动活泼,在每日时光的流逝中,也仿佛随着光影的变化轻轻摇曳。就餐区域里精致典雅的圆桌满足亲友日常聚会所需,光影此刻引景入室,绿植的点映与窗外的花园景致相得益彰,时尚而简约的玻璃酒柜,呈现出气质出众的立体线条,勾勒着整个空间的超凡格调。 对光影的引导,是美化空间的妙笔,而将光藏于室内和谐共生,才能让家拥有无限的生机。在一层的客厅空间,同样奢阔的挑空格局,光影透过窗纱打在背景墙上,凸出墙体的肌理线条,呈现着大宅的厚重分量。在主卧的起居室里,拉上轻纱般的窗帘,则将光藏于空间中。
  • 图片
  • 图片
  • 图片
  • 图片
  • 图片
  • 图片
  • 图片
  • 图片
  • 图片
  • 图片
  • 图片
  • 图片
  • 图片
  • 图片
  • 图片
  • 图片
  • 图片
  • 图片
  • 图片
  • 图片
  • 图片
  • 图片
  • 图片
  • 图片
  • 图片
  • 图片
  • 上一个 下一个
    《金腾奖优秀作品年鉴》 私宅丨地产丨餐饮丨酒店丨办公丨商业丨公共丨产品丨公益丨人气 jintengAWARD(小金_金腾奖组委会) 广州市海珠区琶洲大道68号华新中心21楼
    金腾奖视频号 金腾奖小红书号 监制:闫虹
    统筹:吴佳佳
    运营:朱倩仪 王赫萱 张芷莹 胡岚恩 小金
    新媒体:王贝贝 严洁 侯乐 鹅姐
    经纪:刘译遥 石征 曹凯月
    技术:张桐 黄天佑
    最终解释权归金腾奖主办方所有