ONE53-Tranquility Amidst the Din
作品详情
  • Details of the work 标题横线
    头像或者logo
    图片 胡晓君 江南名师汇特约推荐
    城市:杭州
    公司: GREENJUN DESIGN
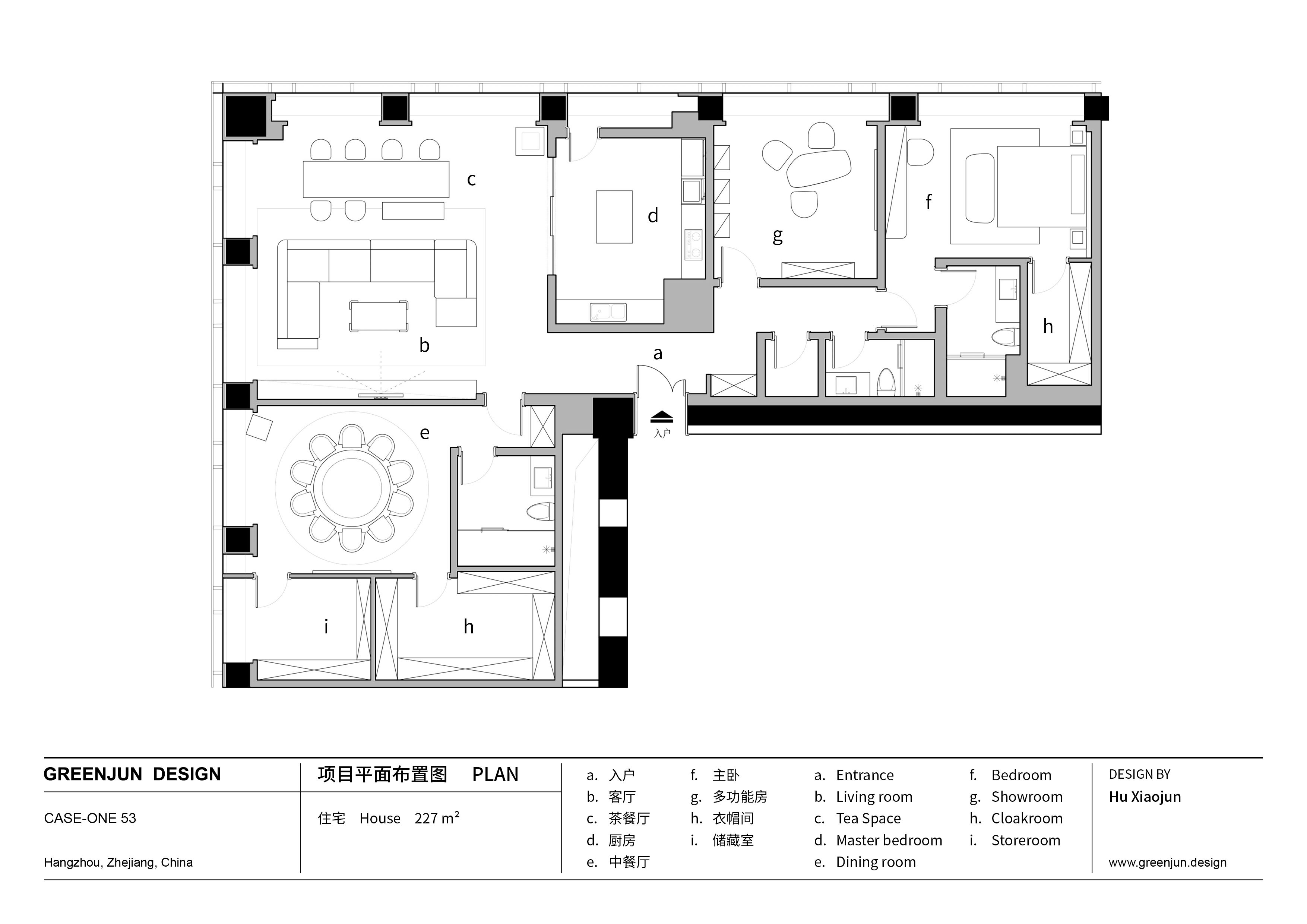
    参赛作品: ONE53 喧谧里
    空间类型:公寓(150㎡以下)
    个人/公司简介:
    胡晓君设计事务所(GREENJUN DESIGN)由胡晓君女士创立于2019年。团队致力于私人住宅、办公、餐厅、展厅等空间设计与商业品牌顶层设计,结合项目特点与业主需求产出高度定制化空间作品与系统化强商业IP。秉承“分寸感”的设计主张,以无痕、可持续、留有余地的设计特征组织材料表达,塑造细节丰富、质感饱满、情绪充盈的空间格调。 在温和的设计笔触中,有序与克制成为了贯穿胡晓君设计事务所(GREENJUN DESIGN)空间设计与品牌设计的核心宗旨;同时基于生活形态的本真面貌阐释美学意识与当代审美,不断打破固有观念,持续探索新的设计思考。
    设计说明 | Design Instruction
  • 本案为浙江省杭州市上城区的一处私宅。在设计边界中,静谧与喧嚣并不是对立的存在。“蜃楼”中的沉淀空间,安静与喧嚣相互融合,以艺术、形态和层次为基础,贯穿其中,创造出一种平衡和谐的氛围。 似由光线折射产生的楼阁、城市等虚幻景象穿透光源与视线展露眼前,序幕揭开,如平行宇宙显现之间,明暗交迭的落地灯以其独一无二的光源变幻叙述故事,空间的阴影和光束勾画出迷人的动态弧线和形状,与居者形成更深层次的连接。 客厅大理石材茶几释放柔和光泽,营造松弛氛围。数种材料的过渡与融入,碰撞出多维度感官体验,在反差中奏响精致与舒适的双重曲。近乎木质感纹理的岩板材料层次递进,不同材质组合生动表现空间肌理,在内敛含蓄的收放自如间增加视觉丰富性,呈现恰如其分的简约。内嵌式电视凝练空间质感,将墙体空间进行物理分割。同频色系的一体勾勒赋予空间流动感,亦将由远及近的逻辑动线有序定义为线形流动,流畅的简洁结构和丰富的材质肌理形成了反差,生活方式也因此相对应。 客厅一侧的茶餐厅空间,以现代手法演绎中式风格,大理石表面穿插其间,叠加了空间的流畅感和立体感,木质与皮质的结合、石材与布艺的融合,勾勒出空间细腻的平整度。经得起时间沉淀的细部,在技术和材质的表达上,塑造出别样的美学属性,投射出饱满的细节与细碎的颗粒质感,表达出空间的艺术性和层次感。 餐厅手工蚕丝布艺吊灯在中餐厅空间焕发浪漫触感,木质地面与石材餐桌的融合构建出规则的秩序感,一方光感交替的用餐空间散发静谧温馨的用餐氛围,牵引出一种独特的轻盈之境,保留了居者对人间烟火的向往。 空间陈列映衬出居者内心独白和叙事的交错,温暖的暗调削弱了几分材质延展的秩序感,多层叙事时空的穿插让空间更含沉浸式意味,在这里体验情绪的放松舒展,定义不同情绪下的框架。在设计中融入艺术元素,一抹亮色出现在素雅低调的空间环境,在碰撞间让生活氛围在空间中流动起来,自由地呼吸。 通过艺术品的陈设、家具的选择和空间的布局,运用了不同的形态,如曲线、直线、对称和不对称等,使空间更具艺术性和立体感,传达出独特的氛围和情境。理解空间艺术和设计语言的运用,创造有序而宁静的氛围。
  • 图片
  • 图片
  • 图片
  • 图片
  • 图片
  • 图片
  • 图片
  • 图片
  • 图片
  • 图片
  • 图片
  • 图片
  • 图片
  • 图片
  • 图片
  • 图片
  • 图片
  • 图片
  • 图片
  • 图片
  • 图片
  • 图片
  • 图片
  • 上一个 下一个
    《金腾奖优秀作品年鉴》 私宅丨地产丨餐饮丨酒店丨办公丨商业丨公共丨产品丨公益丨人气 jintengAWARD(小金_金腾奖组委会) 广州市海珠区琶洲大道68号华新中心21楼
    金腾奖视频号 金腾奖小红书号 监制:闫虹
    统筹:吴佳佳
    运营:朱倩仪 王赫萱 张芷莹 胡岚恩 小金
    新媒体:王贝贝 严洁 侯乐 鹅姐
    经纪:刘译遥 石征 曹凯月
    技术:张桐 黄天佑
    最终解释权归金腾奖主办方所有