春之物语
作品详情
  • Details of the work 标题横线
    头像或者logo
    图片 庄婷 南京云上设计师俱乐部特约推荐
    城市:南京
    公司: DoLong董龍设计
    参赛作品: 春之物语
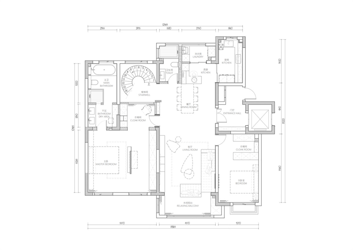
    空间类型:公寓(150㎡以下)
    个人/公司简介:
    首席设计师:庄婷 从业年限:12年 代表作:《轻 喃》 《玄 彩》 《角 色》 《青 禺》 《微 光》 《弦娴》 《侧颜》 …… 设计理念:推敲人与环境的关系,将装饰美学、生活结合再创作,实现人与环境最优的居住空间 工作经历: 2010年6月-2011年6月  南京某装饰设计公司   2011年8月-2013年4月  南京某装饰设计公司  设计师   2013年5月至今DoLong 董龍设计 主案设计师→ 主任设计师→首席设计师 主要荣誉: 1、4040 中国设计杰出青年(2022-2023) 2、《筑梦家.2022人居空间设计大奖》厨房命题年度杰出设计奖 3、4040 中国(南京)设计杰出青年(2022-2023) 4、荣获上海国际设计周 新锐设计师 2021-2022年度省际榜 5、2021年“星空间杯”江苏省室内设计大赛 获得优秀奖 6、2021上海国际设计周新锐设计奖 7、4040 中国(南京)设计杰出青年(2020-2021) 8、Hi-Design 第八届室内设计大赛华东区设计精英奖 9、江苏省室内、陈设设计大奖赛 优秀奖 10、DESIGN FOCUS 国际空间设计大奖 优秀奖(实景类)
    设计说明 | Design Instruction
  • 前言 设计始终需要贯穿一种合理又兼具创造性的想象,要让房主人看到蓝色沙发,眼前便呈现自己端坐于此、陷入阅读和思考的投入情景,生活的美丽便藏在这样的深刻体验之中。而越深刻的哲思,往往寓意于最简单的事物。 纯净空间的私藏与创造 环视本案空间,平顺的如抚摸猫身一般;色彩纯净,浸透如水的心灵。外部世界越简练,精神深处就越自由。“主黑白灰+蓝棕点缀”的色彩融合,前者让故事的讲述贴近真实的生活,后者升华对家庭的纯挚爱意。 传统的餐厨空间比较注重功能,较易放松与家庭整体氛围的联系。本案借助平顺的线条延伸和色彩统一的面块关系设计,让此空间承接客厅的纯净意境,从而提高空间的艺术色彩。 从某种角度说,淡化不同空间的功能属性,实际上有助于拓展空间的外延。生活方式的诸多可能性就在于打破墨守陈规的认知。当然,这更加考验动线设计的紧密衔接、自然过渡。 旋转、蜿蜒、向上的生活互联 说到过度,本案上下层的连接利用了流畅的曲面曲线。楼梯一如生命核心——DNA双螺旋结构,又如流水的自然截面,轻盈地蜿蜒而上。 在连接点的休憩与玩耍,谁说不是一处难得的悠闲时光。拾级而上,生活的美好落实在一步一个脚印的温润阶梯上。 感受最松弛的生活状态 阁楼的不规则空间关系,是制造惊喜的客观存在;而那份对生活的好奇和热情之光主观地由内而外地散发。 此处更加私密的休憩环境,用温馨的火光照耀自由与舒适,照耀更真实的自我妆容。 我们对待生活的爱意,展现在对生活空间的氛围把控和设计之中,展现在对一猫一狗的细心养宠之旅途中,展现在对伴侣和家人的赤诚与用心上;灯光洒落的角落里,书本页与页的拥抱中,皆有迹可循。 卧室将一切生命中不能承受之重倾卸,所以,轻盈的浅色往上漂浮,深色的往下部沉落,要在这里感受生命之初的松弛,并从其中汲取生活的强大动能。
  • 图片
  • 图片
  • 图片
  • 图片
  • 图片
  • 图片
  • 图片
  • 图片
  • 图片
  • 图片
  • 图片
  • 图片
  • 图片
  • 图片
  • 图片
  • 图片
  • 图片
  • 图片
  • 图片
  • 图片
  • 图片
  • 图片
  • 图片
  • 图片
  • 图片
  • 图片
  • 图片
  • 图片
  • 图片
  • 图片
  • 图片
  • 图片
  • 图片
  • 图片
  • 图片
  • 图片
  • 上一个 下一个
    《金腾奖优秀作品年鉴》 私宅丨地产丨餐饮丨酒店丨办公丨商业丨公共丨产品丨公益丨人气 jintengAWARD(小金_金腾奖组委会) 广州市海珠区琶洲大道68号华新中心21楼
    金腾奖视频号 金腾奖小红书号 监制:闫虹
    统筹:吴佳佳
    运营:朱倩仪 王赫萱 张芷莹 胡岚恩 小金
    新媒体:王贝贝 严洁 侯乐 鹅姐
    经纪:刘译遥 石征 曹凯月
    技术:张桐 黄天佑
    最终解释权归金腾奖主办方所有