「Alter Ego·另一个我」
作品详情
  • Details of the work 标题横线
    头像或者logo
    图片 颜旭 南京云上设计师俱乐部特约推荐
    城市:南京
    公司: DoLong董龍设计
    参赛作品: 「Alter Ego·另一个我」
    空间类型:公寓(150㎡以下)
    个人/公司简介:
    颜旭 DoLong董龍设计 联合创始人/设计总监 南京DoLong董龍设计 成立于2008年 设计为本 工程直营 将客户满意度作为唯一标准 专注大宅别墅高端项目 服务过1000多位尊贵业主 客户满意度数据: “优秀”92% “满意”100% 80%+客户来自口碑 累计实景作品300+套 获国内外重要设计奖项100+座
    设计说明 | Design Instruction
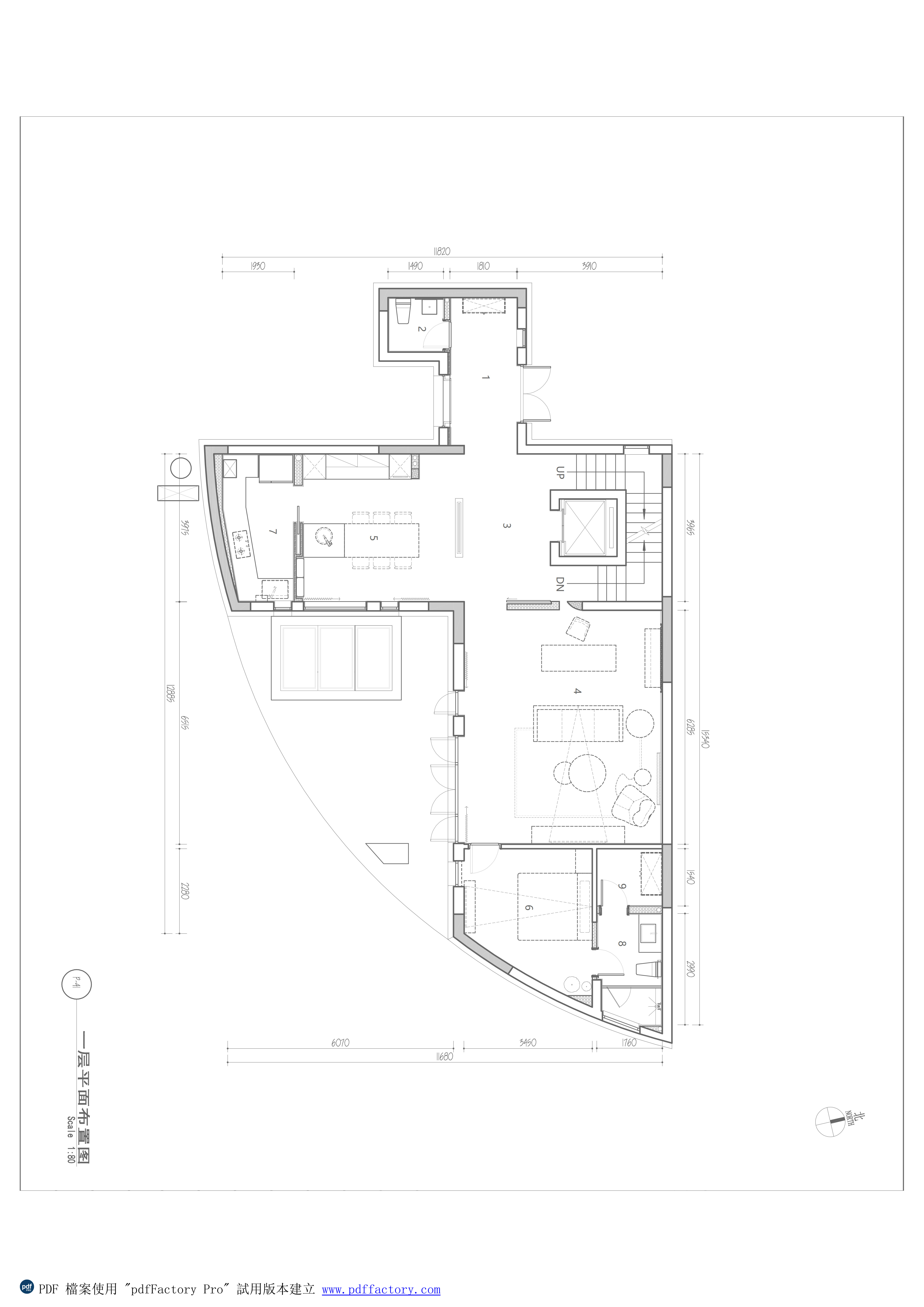
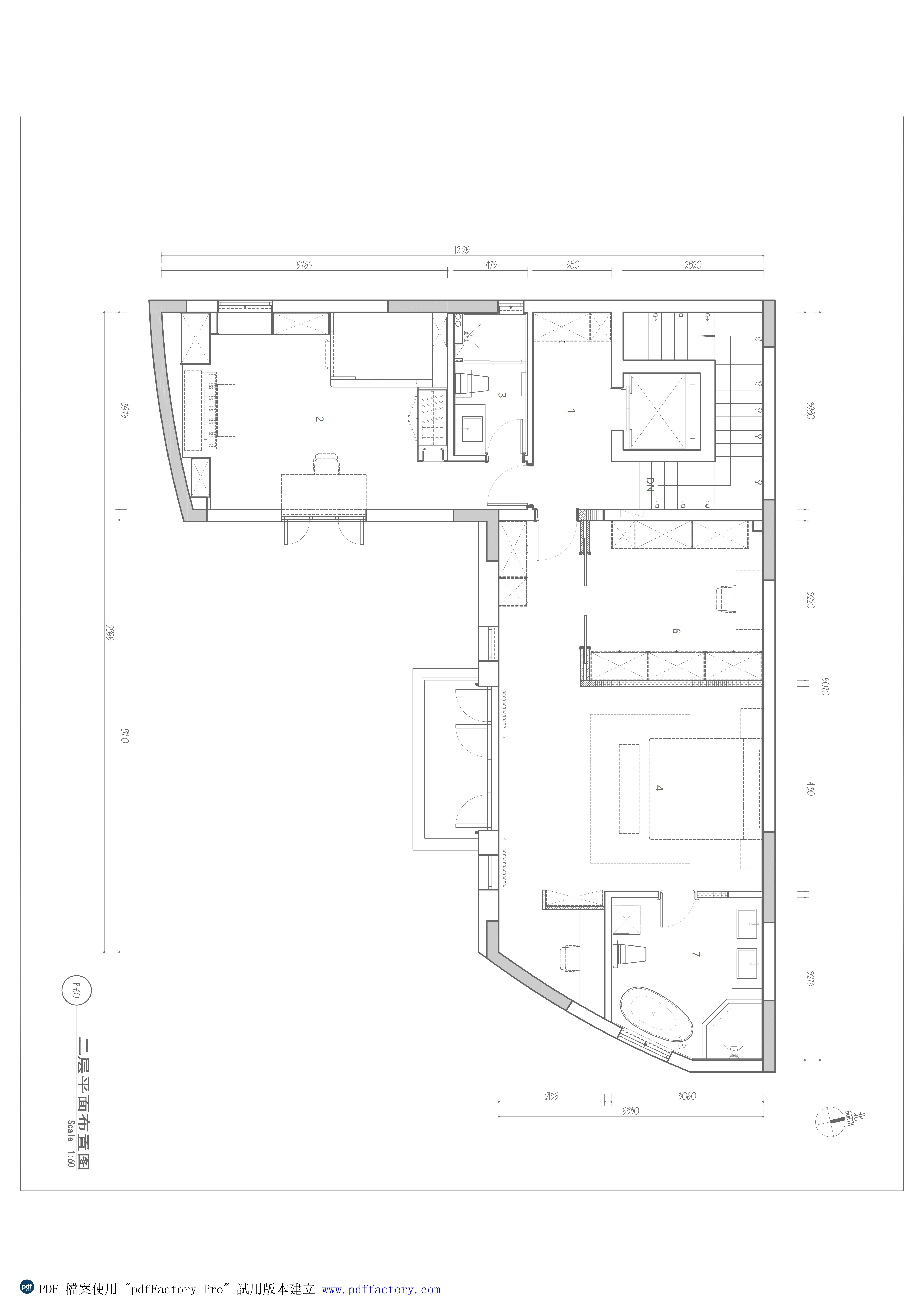
  • 房屋是位于南京的朝天宫安品街闹市区的别墅,在喧闹的城市中心街区,寻求内心的安宁,寂静,大道至简。 设计师把空间的延展性做到极致,呈浑朴状态,线与面都是极度伸展流畅的,简而不空,静而不寂,加上光的运用,可冷可暖,可静可动,整个空间在形体上不受束缚与禁锢,精神层面高蹈独往,姿态萧然自得。 包容性强的空间氛围应该是处于一种动态平衡状态,时而稍左,时而稍右,时而恬静,时而深刻,但始终不偏不倚,落落大方,表达顺势而为的心境。 空间的动线衔接自然有序,化繁为简,像五线谱一般编织着婉转悦耳的音符。同时,每个空间的立面和结构都经得起多维度的推敲和欣赏,这是艺术作品完成度颇高的表现。 艺术作品追求真实,对于空间或人来说,真实的模样往往无法定义,或者说真实就是所有可能性,光线的微妙变化,都将展示空间不同的美。正如本次设计加入的绘画作品——杨媛媛画家的《另一个我》,“你眼前的我,就是你自己。让情绪自由跳跃,去理解,去感受。” 厅里的沙发,书桌,玩偶,都是呈开放式无序的陈列,随性洒脱,包容自然,反而是餐厨空间,以交流,聚集为主,成为热闹的地方。 地面与墙面为统一的微水泥材质,无缝,无痕,简单自然,将不同空间依次连接,体现富有质感的整体性。
  • 图片
  • 图片
  • 图片
  • 图片
  • 图片
  • 图片
  • 图片
  • 图片
  • 图片
  • 图片
  • 图片
  • 图片
  • 图片
  • 图片
  • 图片
  • 图片
  • 图片
  • 图片
  • 图片
  • 图片
  • 图片
  • 上一个 下一个
    《金腾奖优秀作品年鉴》 私宅丨地产丨餐饮丨酒店丨办公丨商业丨公共丨产品丨公益丨人气 jintengAWARD(小金_金腾奖组委会) 广州市海珠区琶洲大道68号华新中心21楼
    金腾奖视频号 金腾奖小红书号 监制:闫虹
    统筹:吴佳佳
    运营:朱倩仪 王赫萱 张芷莹 胡岚恩 小金
    新媒体:王贝贝 严洁 侯乐 鹅姐
    经纪:刘译遥 石征 曹凯月
    技术:张桐 黄天佑
    最终解释权归金腾奖主办方所有