造梦天堂
作品详情
  • Details of the work 标题横线
    头像或者logo
    图片 颜旭 南京云上设计师俱乐部特约推荐
    城市:南京
    公司: DoLong董龍设计
    参赛作品: 造梦天堂
    空间类型:公寓(150㎡以下)
    个人/公司简介:
    颜旭 DoLong董龍设计 联合创始人/设计总监 南京DoLong董龍设计 成立于2008年 设计为本 工程直营 将客户满意度作为唯一标准 专注大宅别墅高端项目 服务过1000多位尊贵业主 客户满意度数据: “优秀”92% “满意”100% 80%+客户来自口碑 累计实景作品300+套 获国内外重要设计奖项100+座
    设计说明 | Design Instruction
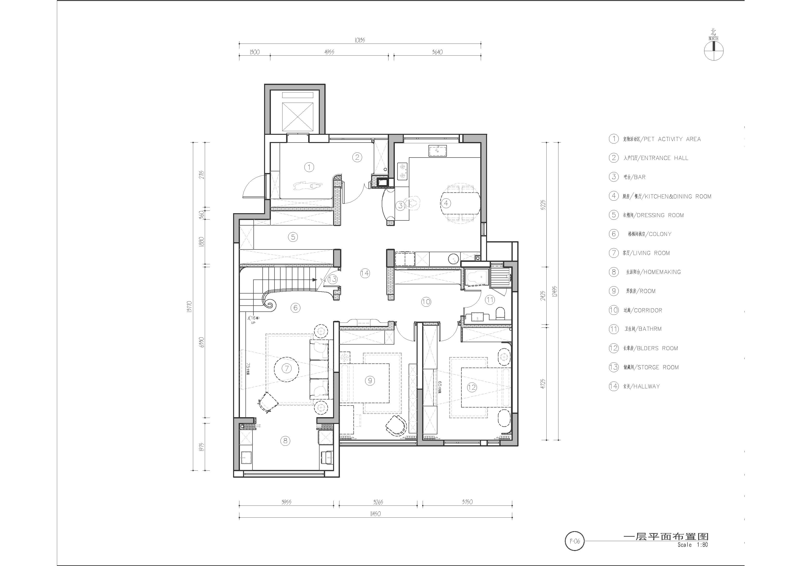
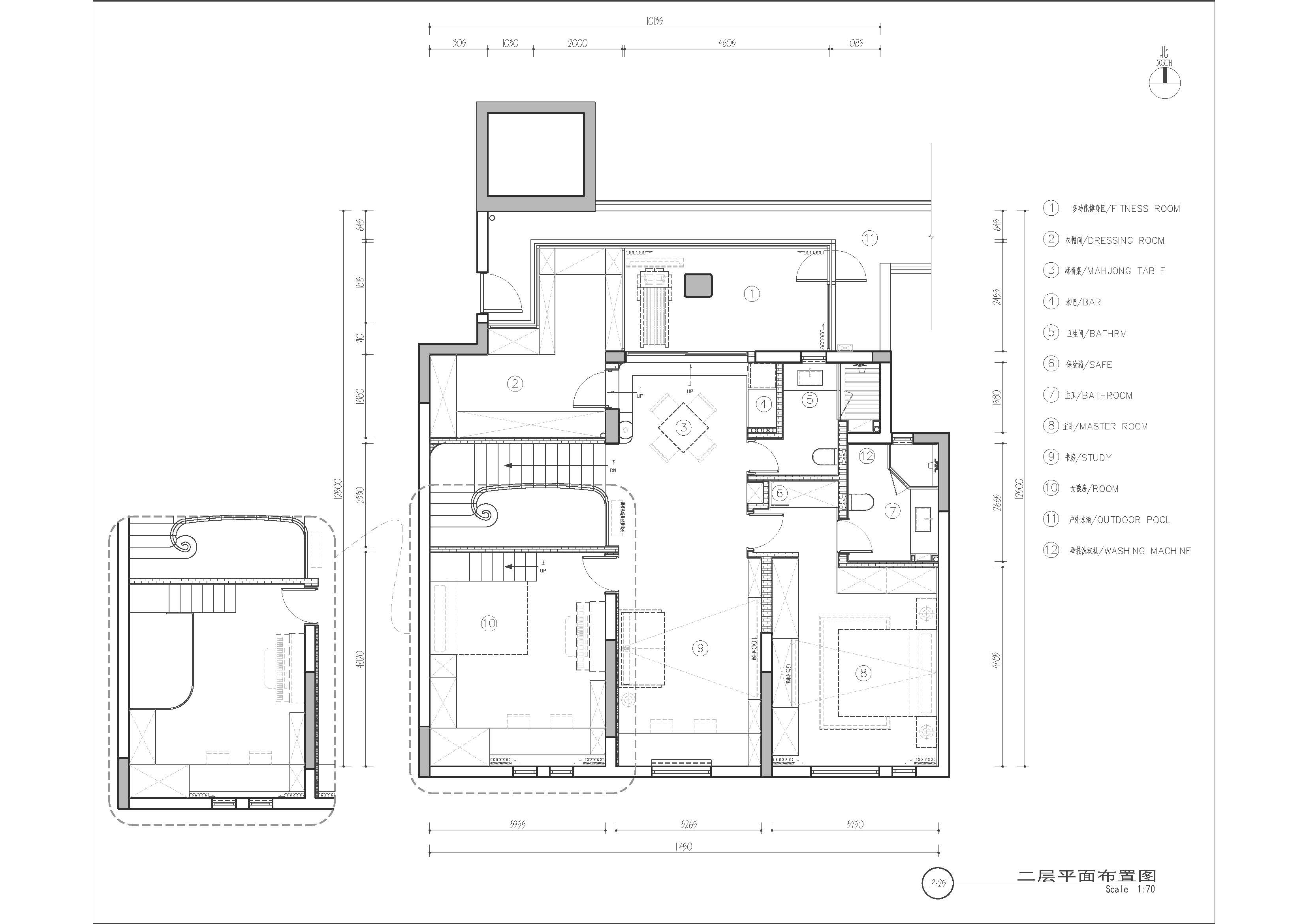
  • 壹 . 家的N次方 每一个家都有自己独特的属性,随着时间的交替,家庭成员的成长,空间的居住要求也逐渐变高,于是屋主在21年找到相处了十多年的老朋友——室内设计师颜工,开始精心策划一场关于“梦幻城堡”的演变。 贰 . 空间重塑 步入室内,设计通过纯色刻画出立体空间的明净透亮,软装的大面积留白给予居所无限的想象,用心勾勒出所向往的梦和远方。 大面积的奶油底色让空间充满梦幻色彩,低饱和度的沙发地毯在阳光的倾照下柔软温和,中和了大理石茶几的冷清硬朗,不同层次的工艺肌理和软装饰品的层层叠加,细腻无声地塑造出空间的城堡主基调,赋予室内充满悸动的生命力。 “四方食事,不过一碗人间烟火。”与文字一样历经千年变迁的还有饮食文化,四季三餐围桌而食,说不完的家常琐碎,分得明的礼义廉信。 设计将带原本厚重狭窄的楼梯改建成旋转形式,带有灯光的弧面玻璃扶手让楼梯宛如天阶般轻盈的悬浮在空间中,水晶吊灯以梦幻般地姿态垂泄在厅内,与自然光交织出熠熠生辉的烂漫。 叁 . 造梦天堂 蜿蜒而上,二楼是开阔的多功能厅,宽敞的空间格局,让视野更加开阔,流畅的动线为家庭成员创造了更多互动可能,无论是看书还是游戏,陪伴式成长都是给孩子最好的礼物。 家是遮风避雨的城堡,在这一方世界里,空间被合理地安排,每个人都有一个属于自己的独立空间。主卧充满法式浪漫,脱离了钢筋混泥土的嘈杂,室内的情感归于静谧,闲适与安宁缓慢充盈心灵。 粉色是不可或缺的童话颜色,极具跳跃性的趣味笔触构建出孩子心中的梦幻城堡,元素的驰骋演绎和色彩的沉淀安静,在不经意间触摸孩子心底的童趣。 充满质感的墙纸和艺术摆件点缀房间的各个角落,打造一个时尚而有活力、阳光与朝气并存的科技感的卧室,简约的灯光装饰和几何线条营造出的未来感和整面墙的书架,是可以安放整个青春的天地。 为了创造更多的收纳空间,设计解构了原有的房间布局,删繁就简,还原空间的本质,同时重建出深蕴魔法气息的梦幻世界,让童话森林生长在家的每一个角落。
  • 图片
  • 图片
  • 图片
  • 图片
  • 图片
  • 图片
  • 图片
  • 图片
  • 图片
  • 图片
  • 图片
  • 图片
  • 图片
  • 图片
  • 图片
  • 图片
  • 上一个 下一个
    《金腾奖优秀作品年鉴》 私宅丨地产丨餐饮丨酒店丨办公丨商业丨公共丨产品丨公益丨人气 jintengAWARD(小金_金腾奖组委会) 广州市海珠区琶洲大道68号华新中心21楼
    金腾奖视频号 金腾奖小红书号 监制:闫虹
    统筹:吴佳佳
    运营:朱倩仪 王赫萱 张芷莹 胡岚恩 小金
    新媒体:王贝贝 严洁 侯乐 鹅姐
    经纪:刘译遥 石征 曹凯月
    技术:张桐 黄天佑
    最终解释权归金腾奖主办方所有