风华万象
作品详情
  • Details of the work 标题横线
    头像或者logo
    图片 颜旭 南京云上设计师俱乐部特约推荐
    城市:南京
    公司: DoLong董龍设计
    参赛作品: 风华万象
    空间类型:公寓(150㎡以下)
    个人/公司简介:
    颜旭 DoLong董龍设计 联合创始人/设计总监 南京DoLong董龍设计 成立于2008年 设计为本 工程直营 将客户满意度作为唯一标准 专注大宅别墅高端项目 服务过1000多位尊贵业主 客户满意度数据: “优秀”92% “满意”100% 80%+客户来自口碑 累计实景作品300+套 获国内外重要设计奖项100+座
    设计说明 | Design Instruction
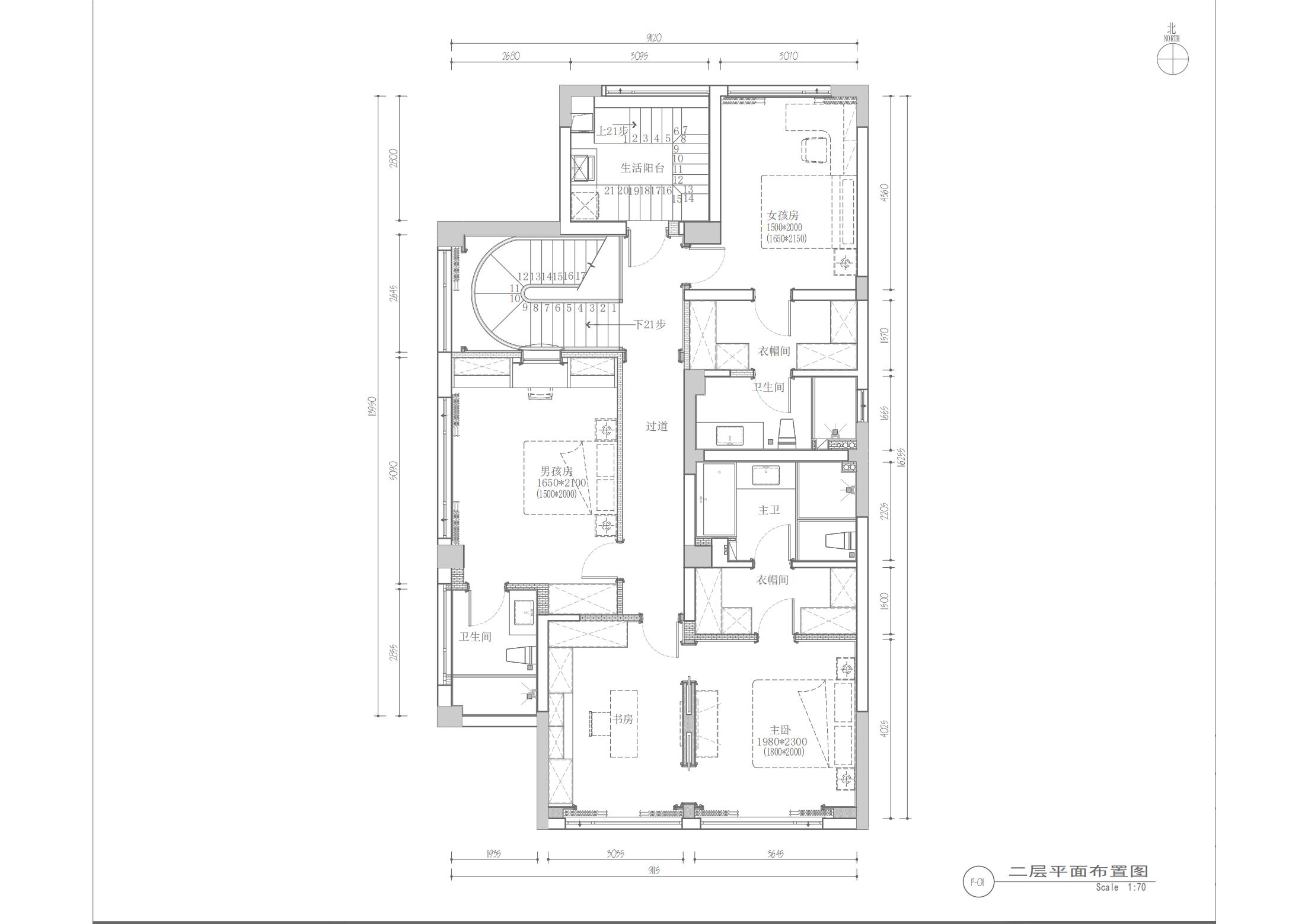
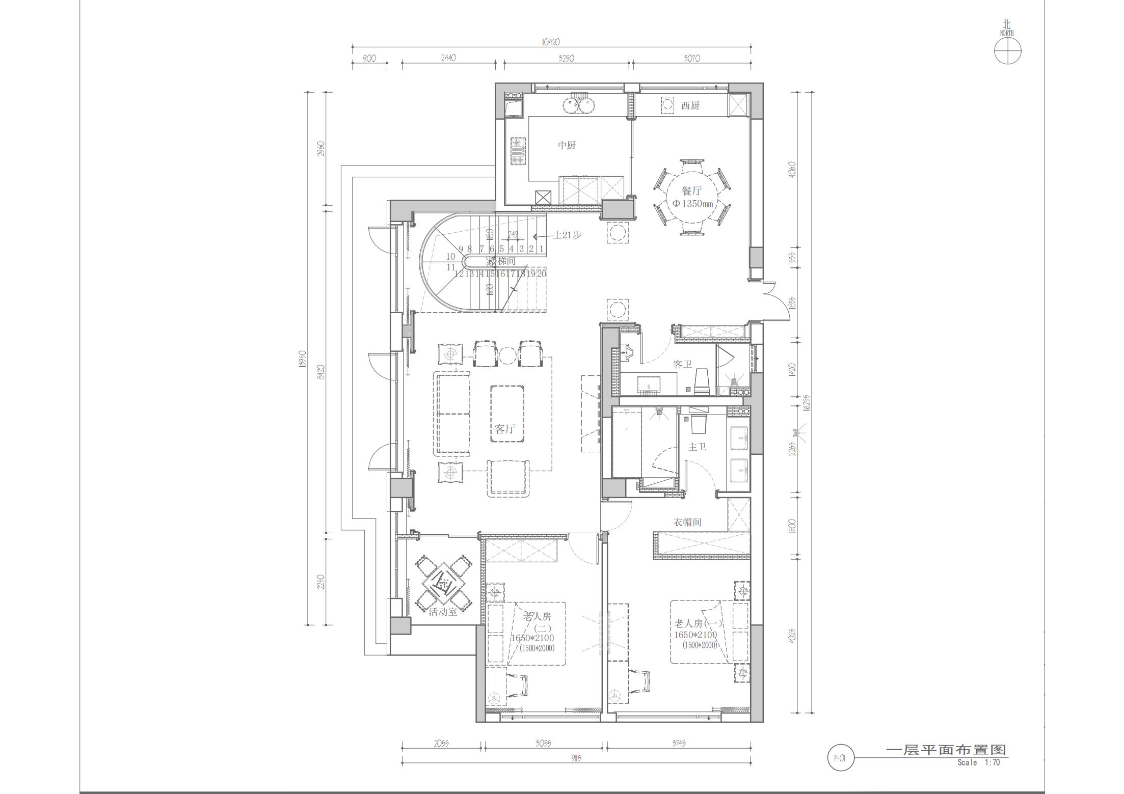
  • 家的风格,从不该被定义成为某一种形式。关于家的模样,每个人心中都有不同的期许和向往。 这个项目是一个顶楼跃层住宅,将要入住一家六口三代人,业主夫妻经营着一家高档龙虾馆,因为工作的原因,经常要到深夜才能回来。为了不影响父母和孩子的休息,所以从一开始的空间布局规划上,业主就希望每一位家庭成员都能有独属于自己的洗漱空间,这样可以很大程度上保证三代人的作息互不干扰。 空间的整体色调以业主喜欢的成熟稳重地绅士黑为主,金色做为配色。做为时尚感较强的颜色,金色具有很强的攻击性,而黑色能吸收这一切,把金色的浮躁感去除,只保留它的奢华感。两种颜色的碰撞,加上新古典风格的基调,反而让空间显出一种慵懒和放松的氛围。这一点在一层尤为突出。 烟火气的聚散之处,人们称之为“家”。 进门的右手边便是餐厅,黑色其实也是一个很有仪式感的颜色,用餐区域的穹顶象征着我们国人特有的团圆情结,与整面黑色光亮的雀眼相结合后,光影、材质、情感在这片区域跃动,创造了空间、人和自然三者之间的连接互动。 在硬装结构中,除了顶面雕刻的饱满地角花和灯盘带来的精致奢华感,还有简约的石膏线条和叠级吊顶带来的空间序列感,天花顶面的块状分割式设计也让空间的立体感和功能区域更加鲜明起来。 餐厨区和客厅区交界处的两个立柱成为了一层空间中不可忽视的存在,立柱在这个空间中的审美意义远不如功能意义深刻,它承担着这个家庭迎来送往的作用。 客厅的墙面以水墨纹的岩板和温润的木饰面为主,每一块岩板的纹路都是经过精心挑选的,二者的结合平衡了空间的繁与简。在软装的沙发座椅选择上,我们也是挑选了线条柔软的新古典造型家具进入了这个家,营造出温馨舒适又不失奢华的空间氛围感。 为了保证整个客厅的视觉完整性,两间长辈房的房门采用的是隐藏式按压开合设计,兼具美观和实用性。 我们为了最大程度保留客餐厅连通区域的采光和客厅的通透感,楼梯的方案进行了多次改动,最后由已经浇筑好的样式改成了现在的悬浮造型。 黑金的楼梯扶手在空间中的感觉是比较沉稳硬朗的,为了中和这种感觉,我们在二层的窗户位置增加了一个线条柔和的浮雕造型的窗台设计,这个窗台也成为这一片区域的视觉亮点之一。 因为每位成员喜欢的风格不同,这就决定了每一个卧室的风格也比较个性化。 奶奶的房间是偏向法式宫廷风格的,空间中的气质融合了古典美学与当代质感。房间硬装的背景墙颜色用是孔雀蓝,这个颜色十分优雅且鲜明,与软装的金色家具组合在一起后,让空间的法式浪漫韵味更加浓郁起来。 爷爷的房间不管是色彩的运用上还是家具的造型,在一定程度上都与奶奶的房间形成互补,视觉上更干净简洁些。 顺着充满仪式感的楼梯向上,是业主夫妻和一双儿女的起居空间。 书房的设计手法,从光线上打造虚实之感,使其成为走廊视觉焦点。 主卧顶面叠级线条与层次丰富的背景墙拉深了空间的视觉进深感,黑金的色调在米白的空间里更显生活品质,空间物品环环相扣,营造温馨雅致的轻奢质感。 不管是女儿房的粉色童话,亦或是男孩房的蔚蓝蓬勃。我们都通过平衡人与空间的设计美学张力,来满足不同年岁居者的审美和居住需求,展现出独属于个人的安静场域。 生活空间不是要使一切都最大化,而是要让每一位成员都能享受悦动的居家生活,在多元化的场景内,让人卸下疲惫,感受纯粹的生活。
  • 图片
  • 图片
  • 图片
  • 图片
  • 图片
  • 图片
  • 图片
  • 图片
  • 图片
  • 图片
  • 图片
  • 图片
  • 图片
  • 图片
  • 图片
  • 图片
  • 图片
  • 图片
  • 图片
  • 图片
  • 图片
  • 图片
  • 图片
  • 图片
  • 图片
  • 图片
  • 图片
  • 图片
  • 图片
  • 图片
  • 图片
  • 图片
  • 图片
  • 图片
  • 图片
  • 上一个 下一个
    《金腾奖优秀作品年鉴》 私宅丨地产丨餐饮丨酒店丨办公丨商业丨公共丨产品丨公益丨人气 jintengAWARD(小金_金腾奖组委会) 广州市海珠区琶洲大道68号华新中心21楼
    金腾奖视频号 金腾奖小红书号 监制:闫虹
    统筹:吴佳佳
    运营:朱倩仪 王赫萱 张芷莹 胡岚恩 小金
    新媒体:王贝贝 严洁 侯乐 鹅姐
    经纪:刘译遥 石征 曹凯月
    技术:张桐 黄天佑
    最终解释权归金腾奖主办方所有