踏着踢踏舞上班
作品详情
  • Details of the work 标题横线
    头像或者logo
    图片 各色空间设计 南京云上设计师俱乐部特约推荐
    城市:南京
    公司:各色空间设计
    参赛作品: 踏着踢踏舞上班
    空间类型:餐饮
    个人/公司简介:
    上海各色空间设计,致力于为各行各业定制各具特色设计方案。公司是一家拥有资深背景、年轻、多元化的设计师团队,引进了国际流行设计的室内设计管理新理念,专注于办公空间、餐饮店、酒店及样板房等领域,拥有优质设计施工团队及配套高端材料资源,为客户创造更大的商业价值。 团队荣誉 2015作品获中国室内设计《金堂奖》年度优秀餐饮空间2015作品评为中国室内《设计总评榜》年度休闲空间设计奖2015作品入选《中国室内设计师》 2016年中国(南京)总评榜空间设计奖 2017作品《现代装饰》等专业刊物 2018年中国(南京)总评榜空间设计奖 2019金尺奖优秀空间设计奖 2019金住奖评为中国(南京)十大居住空间设计师2019年度青年设计师优秀作品奖2019广州设计周概念创意作品一等奖
    设计说明 | Design Instruction
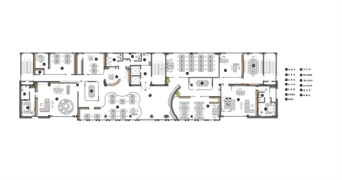
  • 设计灵感来于初到时见到就要落山的太阳将露台染的绮丽绯红,远处的丹阳大桥、京杭运河和晚霞遥交相辉映。置身风景如画的办公场所,让人不知不觉便放松下来。或是因为绚烂的夕阳,或许是因为四周弥漫的青草味,内心立马被各种涌思所填满。主题便油然而生,设计一个能配得上“跳着踢踏舞去上班”员工的办公空间。 一踏入这个空间,首先映入眼帘的是高度开放共享区,原本不高的层高,顶面利用镜面不锈钢的反射,形成了挑高空间既视感。巨大的玻璃幕墙将窗外的自然光线和自然景观引入室内,立面采用富有流动感的曲线设计,形成了一种特殊的节奏感,使整个空间欢快灵动、时尚、有趣起来,同时隐喻着该公司不拘一格的精神特质。空间主色调用白色和木纹搭配,营造出一种轻松、愉悦的办公氛围。该办公空间还置了健身房、高尔夫球室、顶楼空中花园等多个社交空间,满足工作需求的同时促进集体员工之间的凝聚。
  • 图片
  • 图片
  • 图片
  • 图片
  • 图片
  • 图片
  • 图片
  • 图片
  • 图片
  • 图片
  • 图片
  • 图片
  • 图片
  • 图片
  • 图片
  • 图片
  • 图片
  • 图片
  • 图片
  • 上一个 下一个
    《金腾奖优秀作品年鉴》 私宅丨地产丨餐饮丨酒店丨办公丨商业丨公共丨产品丨公益丨人气 jintengAWARD(小金_金腾奖组委会) 广州市海珠区琶洲大道68号华新中心21楼
    金腾奖视频号 金腾奖小红书号 监制:闫虹
    统筹:吴佳佳
    运营:朱倩仪 王赫萱 张芷莹 胡岚恩 小金
    新媒体:王贝贝 严洁 侯乐 鹅姐
    经纪:刘译遥 石征 曹凯月
    技术:张桐 黄天佑
    最终解释权归金腾奖主办方所有