流光
作品详情
  • Details of the work 标题横线
    头像或者logo
    图片 姜向东 南京云上设计师俱乐部特约推荐
    城市:南京
    公司: 南舍空间设计
    参赛作品: 流光
    空间类型:公寓(150㎡以下)
    个人/公司简介:
    南舍空间设计,拥有一群热爱设计的年轻人,因为热爱所以更专注 往期荣誉: 2019 芒果奖 2020金堂奖 年度优秀作品 2021金堂奖南京十大设计师 2022金堂奖年度优秀作品 设计理念:致力于营造空间氛围,深度体验空间感受。
    设计说明 | Design Instruction
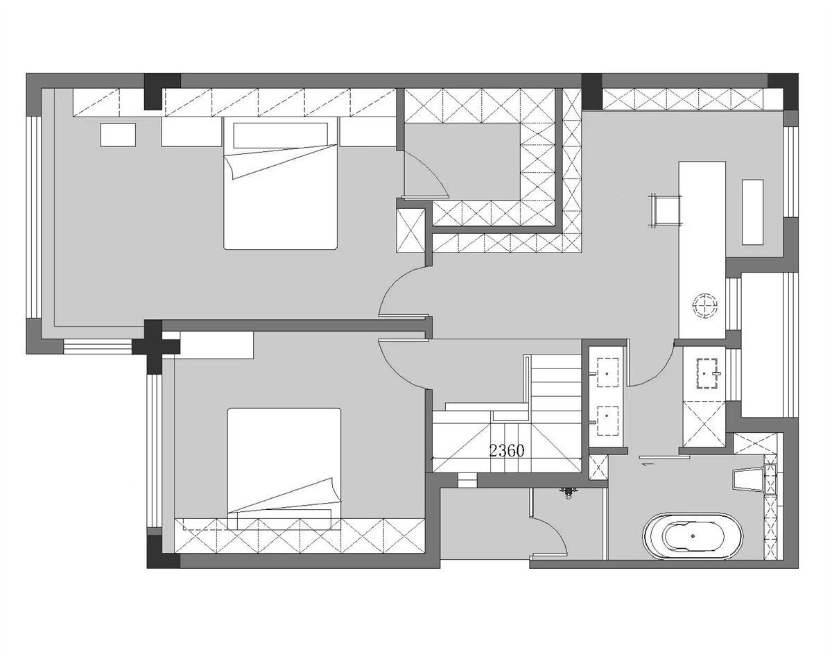
  • 业主年龄:55岁 女,作为退休时居住,喜欢喝茶写作,家里两个孩子,需要三间卧室。书特别多,周末的时候也会教小朋友写作,书法,平时基本都是一个人在家,儿女都在国外工作。 原始户型:一层餐厅位置固定,主过道狭小,厨房与餐厅空间比例不和谐,餐厅过小,阳台位置比较大,二层卧室房间过大,书房较小。楼梯位置没有光线 平面方案:入户设置了换鞋区,空间视觉延申,厨房餐厅用中岛与餐桌的结合方式,形成整体,由于整个客餐厅比较长,我们将原本的阳台改造成了茶室,利用抬高将茶室与客餐厅区域性划分,且在整个空间层次上看起来比较精神,上楼梯的位置将储物柜与楼梯框架做了盒子的体块,好像通过一道门,进入另外一个空间。楼梯采用木质的结构,温润舒适,踏步的延申可以供小朋友看书,沿着楼梯进入二层的空间,将室外的光线,延申到楼梯的位置,我们希望通过时间轴,光线移动,人在走动,形成流动的光影效果,二层将原本封闭的书房打造成开放书房,因为整个房屋空间在南京老山区域,我们将书桌面对窗户可直视老山风景,主卧室的设计主要以业主喜欢看书的习惯来去做的,我们设想在卧室床头变成书海,可以随意拿书去看。延申到阳台的部分做了梳妆台,也可兼用瑜伽锻炼镜面。
  • 图片
  • 图片
  • 图片
  • 图片
  • 图片
  • 图片
  • 图片
  • 图片
  • 图片
  • 图片
  • 图片
  • 图片
  • 图片
  • 图片
  • 图片
  • 图片
  • 图片
  • 图片
  • 上一个 下一个
    《金腾奖优秀作品年鉴》 私宅丨地产丨餐饮丨酒店丨办公丨商业丨公共丨产品丨公益丨人气 jintengAWARD(小金_金腾奖组委会) 广州市海珠区琶洲大道68号华新中心21楼
    金腾奖视频号 金腾奖小红书号 监制:闫虹
    统筹:吴佳佳
    运营:朱倩仪 王赫萱 张芷莹 胡岚恩 小金
    新媒体:王贝贝 严洁 侯乐 鹅姐
    经纪:刘译遥 石征 曹凯月
    技术:张桐 黄天佑
    最终解释权归金腾奖主办方所有